1216 E Stallion Lane
ActiveMustang, OK 73064
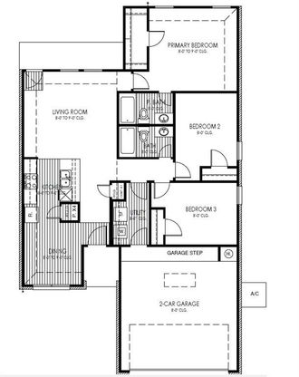
Welcome to the Ashton floor plan in Mustang, OK-a thoughtfully designed new construction home that offers the perfect balance of comfort, style, and functionality. This open-concept layout features a spacious living area that flows seamlessly into the kitchen and dining space, creating an ideal setting for both everyday living and entertaining. The kitchen is the heart of the home, showcasing modern finishes, ample cabinet storage, quality appliances, and a large center island perfect for meal prep and gathering with family and friends. The private primary suite provides a relaxing retreat with a generous bedroom, walk-in closet, and a well-appointed en-suite bath. Secondary bedrooms are comfortably sized and offer flexibility for guests, a home office, or growing household needs. Built with quality craftsmanship and energy-efficient features, this home is designed for lasting comfort and value. Located in the desirable Mustang area, residents enjoy convenient access to schools, shopping, dining, and major highways while being part of a welcoming and growing community. Don't miss your opportunity to own a brand-new home in Mustang-schedule your private tour today!

1/3
1216 E Stallion Lane
$236,990
- 3 bedrooms
- 2 baths
- 1301 sq ft
- MLS# : 1216047
- Built in 2026
Nearby schools
- Mustang Public Schools
Actual schools may vary. We recommend verifying with the local school district, the school assignment and enrollment process.
Map & directions
Mortgage rates & offers
Contact
FPO
Central Oklahoma Real Estate Group, Inc.
Copyright © 2026 MLSOK, Inc.. All rights reserved. All information provided by the listing agent/broker is deemed reliable but is not guaranteed and should be independently verified.
Discover More Great Communities
Select additional listings for more information
By providing your name and contact information and clicking the I'm Interested! button, you consent and agree to receive marketing communications from NewHomeSource and the builder(s) selected above, including emails, calls or text messages using an automatic telephone dialing system or an artificial or prerecorded voice. Your agreement is not a condition to purchasing any property, goods or services, and you may call us instead of submitting the information online. You also acknowledge and agree that you can revoke your authorization at any time. Your consent herein also applies to any future registration on national or state Do-No-Call lists. For mobile phones, standard message and data charges apply. Consult our Privacy Policy for additional information, including unsubscribe options. You also agree to our Privacy Policy, including TCPA Policy and Terms of Use.
Way to Go!
An agent will be in contact soon!