365 Golden Eye Court
ActiveStaunton, IL 62088
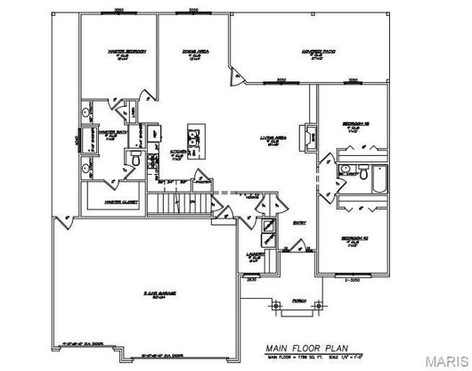
This 1,786 square foot, could-be-built home is located in the desirable Canadian Crossing subdivision and offers outstanding quality construction throughout. The thoughtfully designed floor plan includes a spacious three-car attached garage, a private primary suite with a full master bathroom and large walk-in closet, and a generous great room with fireplace that serves as the heart of the home. The kitchen features upgraded cabinetry, an island, and quality finishes, opening to the dining area and flowing nicely into the living space. Two additional bedrooms and a full bathroom complete the main level. A covered patio extends the living space outdoors, and the private backyard backs to open fields, offering peaceful views of farmland and crops—an ideal setting for relaxation and privacy. A full basement provides additional storage and future finishing potential. Exterior highlights include a brick front with stone accents, gray Dutchlap vinyl siding, black aluminum soffit and gutters, architectural shingles, fiberglass exterior doors, and black insulated garage doors. The home also features Quaker single-hung windows with prairie-style grilles, black exterior and white interior finishes, Craftsman-style interior trim, smooth drywall with bullnose corners, Waypoint cabinets with soft-close doors and dovetail drawers, granite countertops, vinyl plank flooring in main living areas, carpeted bedrooms, and Alterna vinyl tile in bathrooms. Energy efficiency is supported by a comprehensive insulation package, including R-49 attic insulation, R-13 exterior wall insulation, R-19 garage attic insulation, and an R-10 foundation wall blanket in the unfinished basement. A high-quality home with excellent craftsmanship, a functional layout, and a hard-to-beat setting—offered as a proposed, could-be-built home.

1/3
365 Golden Eye Court
$489,900
- 3 bedrooms
- 2 baths
- 1786 sq ft
- MLS# : 26007602
- Built in 2026
Nearby schools
- Staunton Community Unit School District 6
Actual schools may vary. We recommend verifying with the local school district, the school assignment and enrollment process.
Map & directions
Mortgage rates & offers
Contact
FPO
Cisler & Associates Real Estate Inc
Copyright © 2026 MARIS. All rights reserved. All information provided by the listing agent/broker is deemed reliable but is not guaranteed and should be independently verified.
Discover More Great Communities
Select additional listings for more information
By providing your name and contact information and clicking the I'm Interested! button, you consent and agree to receive marketing communications from NewHomeSource and the builder(s) selected above, including emails, calls or text messages using an automatic telephone dialing system or an artificial or prerecorded voice. Your agreement is not a condition to purchasing any property, goods or services, and you may call us instead of submitting the information online. You also acknowledge and agree that you can revoke your authorization at any time. Your consent herein also applies to any future registration on national or state Do-No-Call lists. For mobile phones, standard message and data charges apply. Consult our Privacy Policy for additional information, including unsubscribe options. You also agree to our Privacy Policy, including TCPA Policy and Terms of Use.
Way to Go!
An agent will be in contact soon!