4359 SW Rhyolite Place lot: 20
ActiveRedmond, OR 97756
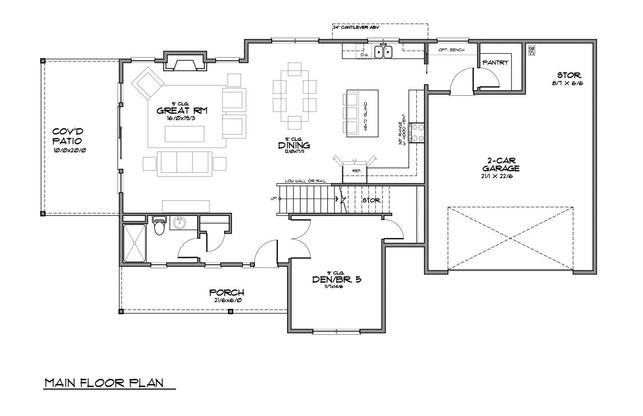
A great opportunity to select your finishes and make this new home your own. Welcome to this functional modern farmhouse in the Starview Community of SW Redmond. Enjoy quick access to Redmond's shopping, dining and schools, effortless community via Hwy 97, and a short drive to Bend. A welcoming covered front porch leads into bright, open concept living. Just off the entry, a flexible den or bedroom pairs with a full bath, ideal for guests or a home office. The great room centers around a cozy gas fireplace and flows seamlessly into a well pointed kitchen with a central island, timeless finishes, ample storage, and a spacious pantry. A functional mudroom connects to a dual oversized two car garage with extra storage. Upstairs, the serene primary suite features dual vanities, tiled shower, and a generous walk-in closet. Two additional bedrooms, full bath with dual vanities, utility room, and an optional bedroom or bonus room complete this thoughtfully designed home.

1/3
4359 SW Rhyolite Place lot: 20
$745,900
- 4 bedrooms
- 3 baths
- 2831 sq ft
- MLS# : 220213576
- Built in 2026
Nearby schools
- Redmond School District 2j
Actual schools may vary. We recommend verifying with the local school district, the school assignment and enrollment process.
Map & directions
Mortgage rates & offers
Contact
FPO
Harcourts The Garner Group Real Estate
Copyright © 2026 Oregon Data Share. All rights reserved. All information provided by the listing agent/broker is deemed reliable but is not guaranteed and should be independently verified.
Discover More Great Communities
Select additional listings for more information
By providing your name and contact information and clicking the I'm Interested! button, you consent and agree to receive marketing communications from NewHomeSource and the builder(s) selected above, including emails, calls or text messages using an automatic telephone dialing system or an artificial or prerecorded voice. Your agreement is not a condition to purchasing any property, goods or services, and you may call us instead of submitting the information online. You also acknowledge and agree that you can revoke your authorization at any time. Your consent herein also applies to any future registration on national or state Do-No-Call lists. For mobile phones, standard message and data charges apply. Consult our Privacy Policy for additional information, including unsubscribe options. You also agree to our Privacy Policy, including TCPA Policy and Terms of Use.
Way to Go!
An agent will be in contact soon!