251 Adkinson Road
ActiveNewton, AL 36352
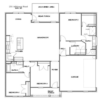
This thoughtfully designed 1,849 sq. ft. home features 3 bedrooms, 2 bathrooms, and a side-entry two-car garage, offering a perfect combination of style, comfort, and everyday functionality. A welcoming foyer opens into a spacious grandroom, creating an inviting atmosphere that flows seamlessly into the open-concept kitchen and dining area—ideal for both entertaining and daily living. The kitchen is beautifully appointed with granite countertops, stainless steel appliances, a built-in microwave, a large kitchen island, and a convenient corner pantry for extra storage. Durable vinyl plank and vinyl tile flooring provide a modern touch throughout the main living spaces, while carpeted bedrooms add warmth and comfort. The split floorplan design ensures privacy, with the primary suite featuring his and her sinks, a tile shower, a separate toilet closet, and ample storage including a linen cabinet. Additional highlights include a walk-in laundry room, a security system, and a heat pump for efficient climate control. Step outside to enjoy a covered rear patio plus an additional open patio area, perfect for relaxing or hosting gatherings, all complemented by a sprinkler system for easy lawn care. This home delivers practical design with stylish finishes for comfortable modern living. The rendering shown is a representation of the home and is not a depiction of the finished home.

1/3
251 Adkinson Road
$287,500
- 3 bedrooms
- 2 baths
- 1849 sq ft
- MLS# : 210053
- Built in 2026
Nearby schools
- Dale County
- Houston County
Actual schools may vary. We recommend verifying with the local school district, the school assignment and enrollment process.
Map & directions
Mortgage rates & offers
Contact
FPO
Coldwell Banker Alfred Saliba Realty
Copyright © 2026 Southeast Alabama Association of REALTORS®. All rights reserved. All information provided by the listing agent/broker is deemed reliable but is not guaranteed and should be independently verified.
Discover More Great Communities
Select additional listings for more information
By providing your name and contact information and clicking the I'm Interested! button, you consent and agree to receive marketing communications from NewHomeSource and the builder(s) selected above, including emails, calls or text messages using an automatic telephone dialing system or an artificial or prerecorded voice. Your agreement is not a condition to purchasing any property, goods or services, and you may call us instead of submitting the information online. You also acknowledge and agree that you can revoke your authorization at any time. Your consent herein also applies to any future registration on national or state Do-No-Call lists. For mobile phones, standard message and data charges apply. Consult our Privacy Policy for additional information, including unsubscribe options. You also agree to our Privacy Policy, including TCPA Policy and Terms of Use.
Way to Go!
An agent will be in contact soon!