4111 ARKANSAS AVENUE NE
ActiveSt Petersburg, FL 33703
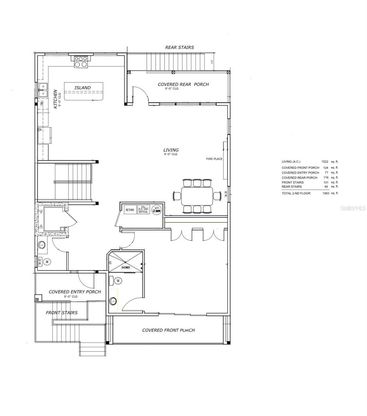
Pre-Construction. To be built. The ultimate luxury opportunity 15 minutes to downtown St. Petersburg. Skip the time of planning the construction, this project is fully permitted, documented, and ready for groundbreaking. This is a rare invitation to secure an exceptional, brand-new luxury residence at a preferred pre-construction price, giving you the unique advantage of influencing the final design to match your personal taste. Spanning three levels of refined living space, this 4-bedroom, 3.5-bath sanctuary seamlessly merges high-end aesthetics with everyday utility. For the ultimate convenience and longevity, a private elevator services the home, ensuring every floor is easily accessible. The floor plan was intentionally designed to adapt to a variety of lifestyles, featuring over 3,500 sf under A/C. Dual Primary Suites: Rare flexibility with a convenient master bedroom on the main level and a second grand luxury master suite on the upper floor. The Upper Level: In addition to two guest bedrooms and a convenient laundry hub, the top floor features a versatile bonus room. This expansive space is a blank canvas—perfect for a high-tech home office or a media lounge, or just a family room. The Ground Level: The massive garage level offers far more than just parking. It provides enough square footage for a fitness room, a workshop, or seasonal storage. Outdoor Oasis & Premium Finishes. The lifestyle extends outdoors to a private, heated pool and professionally landscaped grounds. Throughout the interior, expect a curated selection of high-end upgrades that define modern luxury. By engaging now, you have the opportunity to make the final selections that turn this house into your home. Perfectly positioned just a 15-minute drive from the heart of Downtown St. Petersburg, you are perfectly placed to enjoy the region’s best dining, culture, and waterfront activities while residing in a quiet, brand-new masterpiece. This is a unique window to buy into a "ready-to-go" project without the typical wait times. We invite you to reach out for a private consultation to review the plans, finishes, and customization options.

1/5
4111 ARKANSAS AVENUE NE
$1,790,000
- 4 bedrooms
- 3 baths
- 3556 sq ft
- MLS# : A4684205
- Built in 2027
Nearby schools
- Pinellas County School District
Actual schools may vary. We recommend verifying with the local school district, the school assignment and enrollment process.
Map & directions
Mortgage rates & offers
Contact
FPO
Real Estate Related, Inc dba RER International
Copyright © 2026 Sarasota Association of Realtors®. All rights reserved. All information provided by the listing agent/broker is deemed reliable but is not guaranteed and should be independently verified.
Discover More Great Communities
Select additional listings for more information
By providing your name and contact information and clicking the I'm Interested! button, you consent and agree to receive marketing communications from NewHomeSource and the builder(s) selected above, including emails, calls or text messages using an automatic telephone dialing system or an artificial or prerecorded voice. Your agreement is not a condition to purchasing any property, goods or services, and you may call us instead of submitting the information online. You also acknowledge and agree that you can revoke your authorization at any time. Your consent herein also applies to any future registration on national or state Do-No-Call lists. For mobile phones, standard message and data charges apply. Consult our Privacy Policy for additional information, including unsubscribe options. You also agree to our Privacy Policy, including TCPA Policy and Terms of Use.
Way to Go!
An agent will be in contact soon!