2853 FM 1333
ActivePoteet, TX 78065
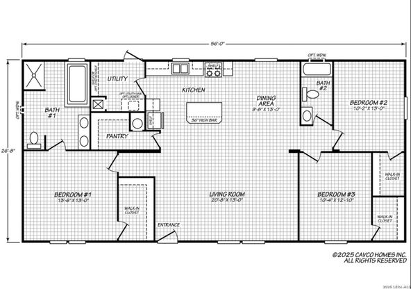
This stunning land and home package offers the opportunity to own a brand-new, open-concept double-wide manufactured home featuring 3 spacious bedrooms, situated on 1.34 acres of unrestricted land with beautiful bluff views and wide-open skies. Enjoy the perfect blend of modern comfort and peaceful country living. Step inside to a bright, airy layout designed for both everyday living and entertaining. The open living, dining, and kitchen areas create a seamless flow, complete with modern finishes, stylish fixtures, and abundant natural light. The split-bedroom design provides added privacy, while the primary suite serves as a relaxing retreat with a spacious bath and generous closet space. Please note: the manufactured home is not yet installed on the property. This is a customizable land and home package, giving buyers the unique opportunity to select interior and exterior finishes to match their style. Once under contract, the brand-new home will be delivered in approximately 4 weeks and professionally set up, offering a truly move-in ready, never-lived-in property. All components will come with warranties for added peace of mind. With 1.34 acres of unrestricted land, you have the freedom to bring your animals, build a workshop, park your RV, or simply enjoy the space and privacy-no HOA restrictions. If you've been searching for a brand-new home with land, flexibility, and scenic views, this is your opportunity. Schedule your showing today and experience the quiet beauty of Atascosa County living!

1/17
2853 FM 1333
$224,990
- 3 bedrooms
- 2 baths
- 1493 sq ft
- MLS# : 1945086
- Built in 2026
Nearby schools
- Poteet Independent School District
Actual schools may vary. We recommend verifying with the local school district, the school assignment and enrollment process.
Map & directions
Mortgage rates & offers
Contact
FPO
Real Broker, LLC
Copyright © 2026 LERA MLS. All rights reserved. All information provided by the listing agent/broker is deemed reliable but is not guaranteed and should be independently verified.
Discover More Great Communities
Select additional listings for more information
By providing your name and contact information and clicking the I'm Interested! button, you consent and agree to receive marketing communications from NewHomeSource and the builder(s) selected above, including emails, calls or text messages using an automatic telephone dialing system or an artificial or prerecorded voice. Your agreement is not a condition to purchasing any property, goods or services, and you may call us instead of submitting the information online. You also acknowledge and agree that you can revoke your authorization at any time. Your consent herein also applies to any future registration on national or state Do-No-Call lists. For mobile phones, standard message and data charges apply. Consult our Privacy Policy for additional information, including unsubscribe options. You also agree to our Privacy Policy, including TCPA Policy and Terms of Use.
Way to Go!
An agent will be in contact soon!