540 Bienville Place
ActiveTallahassee, FL 32317
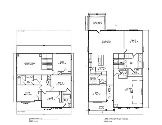
Now pre selling in Fallschase! The Embry is a 5-bedroom, 3.5-bathroom two-story home with over 2800 Sq. Ft. and a two-car garage. The Embry floorplan is a versatile and thoughtfully designed layout that caters to all stages of life, featuring a convenient first-floor primary bedroom suite. Upon entering the home, you'll be greeted by a spacious flex space off the foyer, ideal for a home office, formal dining room, or a cozy sitting area. As you continue through the home, the kitchen becomes the heart of the space, complete with sleek stainless-steel appliances, white cabinetry, and ample counter space for meal preparation. The large center island effortlessly connects the kitchen to the expansive great room, creating an open, flowing space perfect for both everyday living and entertaining guests. The private first-floor primary suite serves as a retreat, offering a peaceful haven for rest and relaxation. The en-suite bathroom is designed with both functionality and comfort in mind, featuring a double vanity, a private water closet, a spacious shower, a separate garden tub for soaking, and an oversized walk-in closet for all your storage needs. Upstairs, the home provides even more space for relaxation and recreation. The upstairs living area is perfect for unwinding with family or hosting additional gatherings. Four generously sized bedrooms and two full bathrooms complete the second floor. Each bedroom is spacious, with plenty of closet space. The second full bath includes a double vanity and a shower/tub combo. Additionally, one of the bedrooms features an ensuite bathroom, providing a private and comfortable guest retreat.

1/2
540 Bienville Place
$690,900
- 5 bedrooms
- 3 baths
- 2890 sq ft
- MLS# : 396812
- Built in 2026
Nearby schools
- Leon County School District
Actual schools may vary. We recommend verifying with the local school district, the school assignment and enrollment process.
Map & directions
Mortgage rates & offers
Contact
FPO
DR Horton Realty North West FL
Copyright © 2026 Tallahassee Board of Realtors. All rights reserved. All information provided by the listing agent/broker is deemed reliable but is not guaranteed and should be independently verified.
Discover More Great Communities
Select additional listings for more information
By providing your name and contact information and clicking the I'm Interested! button, you consent and agree to receive marketing communications from NewHomeSource and the builder(s) selected above, including emails, calls or text messages using an automatic telephone dialing system or an artificial or prerecorded voice. Your agreement is not a condition to purchasing any property, goods or services, and you may call us instead of submitting the information online. You also acknowledge and agree that you can revoke your authorization at any time. Your consent herein also applies to any future registration on national or state Do-No-Call lists. For mobile phones, standard message and data charges apply. Consult our Privacy Policy for additional information, including unsubscribe options. You also agree to our Privacy Policy, including TCPA Policy and Terms of Use.
Way to Go!
An agent will be in contact soon!