57 COPPER MEADOWS Drive
ActiveAuburn, AL 36830
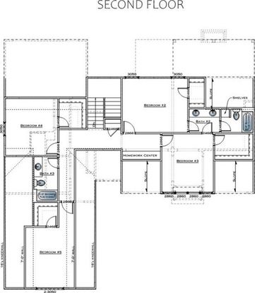
Are you looking for the perfect home to customize, move in this October & grow with capabilities of effortless entertaining? Look no further, The Holly, 5 bedroom, 3 and a half bathroom, 3,216 square foot home offers a thoughtfully designed two-story layout that blends everyday functionality with elegant living spaces. The first floor features a private primary suite tucked away for a quiet retreat, complete with a spacious ensuite bath, walk-in closet, and convenient access to the laundry room and drop zone. The heart of the home showcases an open-concept kitchen, dining, and great room, anchored by a large island and walk-in pantry-ideal for hosting and daily living alike. A welcoming foyer leads to a flexible front flex room, perfect for a home office, playroom, or formal sitting area. Enjoy seamless indoor-outdoor living with a covered back porch, creating the perfect space for relaxing or entertaining year-round. Upstairs, you'll find four generously sized bedrooms, thoughtfully arranged for privacy and comfort, along with two full bathrooms and a centrally located homework/tech center-perfect for studying, remote work, or creative projects. The layout provides both shared and private spaces, giving everyone room to spread out while staying connected. With smart flow, ample storage, and versatile living areas, the Holly A is designed to grow with your lifestyle-offering comfort, style, and functionality in every square foot. Future community amenities include a pool, pavilion, pickleball courts, bocce ball, playground, and a community fire pit.

1/12
57 COPPER MEADOWS Drive
$587,621
- 5 bedrooms
- 3 baths
- 3216 sq ft
- MLS# : 179206
- Built in 2026
Nearby schools
- Auburn City Schools
Actual schools may vary. We recommend verifying with the local school district, the school assignment and enrollment process.
Map & directions
Mortgage rates & offers
Contact
FPO
HOLLAND HOME SALES
Copyright © 2026 Lee County Association of Realtors. All rights reserved. All information provided by the listing agent/broker is deemed reliable but is not guaranteed and should be independently verified.
Discover More Great Communities
Select additional listings for more information
By providing your name and contact information and clicking the I'm Interested! button, you consent and agree to receive marketing communications from NewHomeSource and the builder(s) selected above, including emails, calls or text messages using an automatic telephone dialing system or an artificial or prerecorded voice. Your agreement is not a condition to purchasing any property, goods or services, and you may call us instead of submitting the information online. You also acknowledge and agree that you can revoke your authorization at any time. Your consent herein also applies to any future registration on national or state Do-No-Call lists. For mobile phones, standard message and data charges apply. Consult our Privacy Policy for additional information, including unsubscribe options. You also agree to our Privacy Policy, including TCPA Policy and Terms of Use.
Way to Go!
An agent will be in contact soon!