518 36TH AVENUE NE
ActiveSt Petersburg, FL 33704
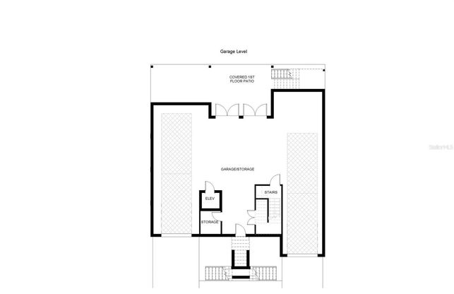
Under Construction. Experience the pinnacle of craftsmanship and design in this truly one of a kind custom estate offering over 6,500 square feet under roof in one of St. Petersburg’s most coveted locations — just steps from the water and the prestigious Vinoy Golf Club. From the moment you enter, soaring 20-foot ceilings in the great room create a dramatic architectural statement, flooding the space with natural light and setting the tone for refined yet comfortable living. Every detail has been thoughtfully curated — from custom cabinetry throughout, to a chef’s kitchen appointed with premium appliances designed to impress and perform. This expansive residence features 5 bedrooms, 3.5 baths, and a dedicated office, 6 car garage, Elevator offering flexibility for both everyday living and grand entertaining. The private primary retreat is a sanctuary of its own, complete with a separate balcony entrance — the perfect setting for quiet mornings or evening unwinding. Designed for seamless indoor-outdoor living, the home boasts over 1,000 square feet of covered patios, an impressive outdoor kitchen, and both an outdoor gas fireplace and indoor gas/wood-burning fireplace, creating inviting gathering spaces year-round. The resort-style backyard showcases a saltwater pool and spa surrounded by a travertine deck, lush landscaping, delivering a true private oasis experience. Wine enthusiasts will appreciate the dedicated wine room, while everyday convenience is elevated with a private elevator and an extraordinary 6-car garage — ideal for collectors, hobbyists, or those who simply value space and flexibility. Architecturally striking. Thoughtfully engineered. Perfectly positioned. This is more than a home — it’s a statement.

1/4
518 36TH AVENUE NE
$2,400,000
- 5 bedrooms
- 3 baths
- 3776 sq ft
- MLS# : TB8483226
- Built in 2026
Nearby schools
- Pinellas County School District
Actual schools may vary. We recommend verifying with the local school district, the school assignment and enrollment process.
Map & directions
Mortgage rates & offers
Contact
FPO
Dalton Wade, Inc.
Copyright © 2026 Stellar MLS. All rights reserved. All information provided by the listing agent/broker is deemed reliable but is not guaranteed and should be independently verified.
Discover More Great Communities
Select additional listings for more information
By providing your name and contact information and clicking the I'm Interested! button, you consent and agree to receive marketing communications from NewHomeSource and the builder(s) selected above, including emails, calls or text messages using an automatic telephone dialing system or an artificial or prerecorded voice. Your agreement is not a condition to purchasing any property, goods or services, and you may call us instead of submitting the information online. You also acknowledge and agree that you can revoke your authorization at any time. Your consent herein also applies to any future registration on national or state Do-No-Call lists. For mobile phones, standard message and data charges apply. Consult our Privacy Policy for additional information, including unsubscribe options. You also agree to our Privacy Policy, including TCPA Policy and Terms of Use.
Way to Go!
An agent will be in contact soon!