10515 Willow Avenue
ActivePoncha Springs, CO 81201
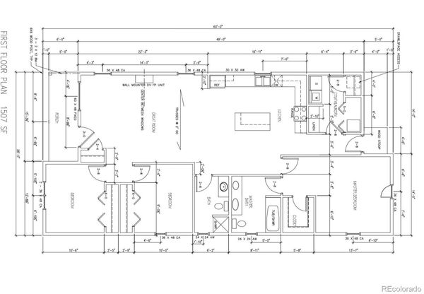
** 2462 SQFT NEW CONSTRUCTION FINISH DATE MAY/JUNE ** Single Story House 1507 sqft + Two Bed ADU 955 sqft -- Construction is underway in Poncha Meadows at 10515 Willow Avenue, with expected completion in early June. This thoughtfully designed property will offer a single-story main home plus a separate ADU above an oversized detached two-car garage, creating an ideal setup for flexible living, guests, multigenerational living, or income potential. Early buyers may also have the opportunity to personalize select finishes, adding a BUILT-TO-SUIT component to the purchase. Appliance and fixture selections may be available with decisions made by the third week of March, while flooring, counters and bathroom tile selections will need to be finalized by the second week of April. The main residence will feature approximately 1,500 square feet with three bedrooms and two bathrooms, all on one level. The primary suite will include a patio door opening to the backyard, bringing in natural light and easy outdoor access. The ADU will offer two bedrooms and one bathroom, along with a south-facing balcony and a heated laundry room on the main level. A dedicated exterior-access storage closet attached to the garage will provide convenient space for bikes, outdoor gear, and seasonal equipment. With new construction, versatile living options, and a desirable Poncha Meadows location, this property presents a rare opportunity to enjoy modern design and added functionality in one complete package.

1/6
10515 Willow Avenue
$838,000
- 3 bedrooms
- 2 baths
- 2462 sq ft
- MLS# : 1556302
- Built in 2026
Nearby schools
- Salida School District No. R-32
Actual schools may vary. We recommend verifying with the local school district, the school assignment and enrollment process.
Map & directions
Mortgage rates & offers
Contact
FPO
Pinon Real Estate Group
Copyright © 2026 ROCC/REColorado. All rights reserved. All information provided by the listing agent/broker is deemed reliable but is not guaranteed and should be independently verified.
Discover More Great Communities
Select additional listings for more information
By providing your name and contact information and clicking the I'm Interested! button, you consent and agree to receive marketing communications from NewHomeSource and the builder(s) selected above, including emails, calls or text messages using an automatic telephone dialing system or an artificial or prerecorded voice. Your agreement is not a condition to purchasing any property, goods or services, and you may call us instead of submitting the information online. You also acknowledge and agree that you can revoke your authorization at any time. Your consent herein also applies to any future registration on national or state Do-No-Call lists. For mobile phones, standard message and data charges apply. Consult our Privacy Policy for additional information, including unsubscribe options. You also agree to our Privacy Policy, including TCPA Policy and Terms of Use.
Way to Go!
An agent will be in contact soon!