230 Washington St unit: 7
ActiveBoston, MA 02135
Over 54 % under agreement. 230 Washington St exemplifies contemporary urban living, offering 11 exclusive one-, two-, and three-bedroom condominiums in the heart of Brighton. Each unit within this brand-new building blends aesthetic appeal with functionality, boasting open-concept layouts, wood flooring, custom cabinetry, laundry hook-up, and eco-friendly features. All units also feature balconies or decks that give residents outdoor space. Building features include an elevator and garage parking. Commuting is a breeze with quick access to the Green Line and many bus routes. Located in Brighton Center, residents are also minutes away from boutique shopping and diverse dining options. Each unit at 230 Washington St offers a convenient lifestyle amidst Brighton's urban charm.

1/7
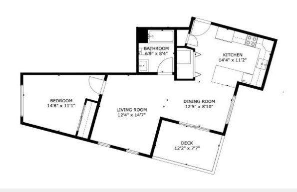
230 Washington St unit: 7
$650,000
- 1 bedroom
- 1 bath
- 712 sq ft
- MLS# : 73485772
- Built in 2025
Nearby schools
- Boston Public Schools
Actual schools may vary. We recommend verifying with the local school district, the school assignment and enrollment process.
Map & directions
Mortgage rates & offers
Contact
FPO
Keller Williams Chestnut Hill
Copyright © 2026 MLS Property Information Network Inc. All rights reserved. All information provided by the listing agent/broker is deemed reliable but is not guaranteed and should be independently verified.
Discover More Great Communities
Select additional listings for more information
By providing your name and contact information and clicking the I'm Interested! button, you consent and agree to receive marketing communications from NewHomeSource and the builder(s) selected above, including emails, calls or text messages using an automatic telephone dialing system or an artificial or prerecorded voice. Your agreement is not a condition to purchasing any property, goods or services, and you may call us instead of submitting the information online. You also acknowledge and agree that you can revoke your authorization at any time. Your consent herein also applies to any future registration on national or state Do-No-Call lists. For mobile phones, standard message and data charges apply. Consult our Privacy Policy for additional information, including unsubscribe options. You also agree to our Privacy Policy, including TCPA Policy and Terms of Use.
Way to Go!
An agent will be in contact soon!