2531 Bos Landen Drive
ActivePella, IA 50219
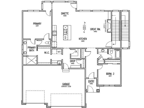
Welcome to the brand new Turnberry Plan home by Genesis Homes, perfectly situated on a walkout lot in Pella's Southview Ridge development. This impressive property offers a spacious and beautifully appointed living space, with 1800+ sq ft on the main one-level living with two Bedrooms on the Main Floor. Elevate your lifestyle with the finished lower level, which includes a recreation-ready space and a sleek wet bar and two Bedrooms. The gourmet kitchen is a chef's dream, featuring Legacy Dublin & Lee cabinetry with soft-close doors and stylish Shaker styling. Enjoy the luxury of quartz countertops throughout and a beautifully coordinated island with site-built wainscoting . This home is designed for both style and function, boasting Hardie siding and accents, a stunning stone front, and black garage doors and trim. Luxury Vinyl Plank flooring flows seamlessly through the kitchen, great room, entry, and drop zone. The primary suite is a private retreat with an elegant tray ceiling and a luxurious master bath featuring Emser Nobleza tile, a tile shower with a mosaic accent, and a clear glass doors. The exterior is equally impressive, with a composite deck and black railing, a 17x12 patio, and full sod with irrigation and a charming landscape package. Don't miss this opportunity to own a meticulously crafted home in a prime location on Bos Landen Golf Course? schedule your showing today! All information obtained from seller and public record.

1/7
2531 Bos Landen Drive
$629,900
- 4 bedrooms
- 3 baths
- 1803 sq ft
- MLS# : 736100
- Built in 2026
Nearby schools
- Pella Community School District
Actual schools may vary. We recommend verifying with the local school district, the school assignment and enrollment process.
Map & directions
Mortgage rates & offers
Contact
FPO
RE/MAX Precision
Copyright © 2026 Des Moines Area Association of REALTORS®, Inc.. All rights reserved. All information provided by the listing agent/broker is deemed reliable but is not guaranteed and should be independently verified.
Discover More Great Communities
Select additional listings for more information
By providing your name and contact information and clicking the I'm Interested! button, you consent and agree to receive marketing communications from NewHomeSource and the builder(s) selected above, including emails, calls or text messages using an automatic telephone dialing system or an artificial or prerecorded voice. Your agreement is not a condition to purchasing any property, goods or services, and you may call us instead of submitting the information online. You also acknowledge and agree that you can revoke your authorization at any time. Your consent herein also applies to any future registration on national or state Do-No-Call lists. For mobile phones, standard message and data charges apply. Consult our Privacy Policy for additional information, including unsubscribe options. You also agree to our Privacy Policy, including TCPA Policy and Terms of Use.
Way to Go!
An agent will be in contact soon!