16837 Cottage Shores Drive
ActiveSpring Lake, MI 49456
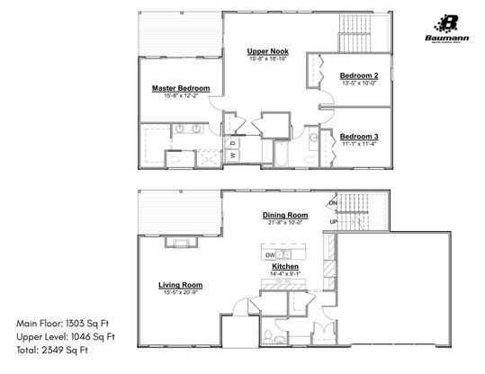
Your Waterfront Dream Awaits at Cottage Shores! Are you ready to trade the daily grind for life at the lake? Welcome to Cottage Shores, an exclusive new 9-home condo community nestled on the serene waters of Smith Bayou and Spring Lake. This isn't just a home; it's an all-access pass to the ultimate Michigan lifestyle. Every residence at Cottage Shores is designed for those who love the water. Your new lifestyle includes: - Your Own Boat Slip: Each home comes with a dedicated 40' dock. - Sandy Toes & Sunsets: Enjoy a shared sandy beach swim area and cozy firepits set within an acre of lush, open green space. - Maintenance-Free Living: Forget the mower and the snowblower! Landscaping, irrigation, dock maintenance, and snow removal are all handled for you. With association fees estimated at less than $300/mo, you get to spend your time on the boat, not on chores. Custom-Built Excellence: Your home should be as unique as your lifestyle. Each stand-alone residence is masterfully crafted by the award-winning Baumann Building, Inc. Starting at 1,968 sq. ft. with a two-stall garage. " Total Creative Control: Need a first-floor primary suite? A dedicated home office or a flexible guest wing? We will design and build the exact layout you've been dreaming of. " The Perfect Location: Situated on the quiet, no-wake waters of Smith Bayou, you have a safe haven for kayaking and paddleboarding right in your backyard. When you're ready for more speed, you are just minutes away from all-sports Spring Lake, the Grand River, and the majestic Lake Michigan. Everything is at your fingertips: " Adventure: Access the local bike path right at our entrance--perfect for trekking into Grand Haven or Spring Lake. " Convenience: Minutes from local shopping, Costco, and easy highway access (US-31 and I-96). Don't Wait--Only 8 Opportunities Remain Available! Reservations are being taken now, and they include designated dock and green space

1/8
16837 Cottage Shores Drive
$1,289,900
- 3 bedrooms
- 2 baths
- 2349 sq ft
- MLS# : 26009740
- Built in 2026
Nearby schools
- Grand Haven Area Public Schools
- Spring Lake Public Schools
Actual schools may vary. We recommend verifying with the local school district, the school assignment and enrollment process.
Map & directions
Mortgage rates & offers
Contact
FPO
West Edge Real Estate LLC
Copyright © 2026 Michigan Regional Information Center, LLC.. All rights reserved. All information provided by the listing agent/broker is deemed reliable but is not guaranteed and should be independently verified.
Discover More Great Communities
Select additional listings for more information
By providing your name and contact information and clicking the I'm Interested! button, you consent and agree to receive marketing communications from NewHomeSource and the builder(s) selected above, including emails, calls or text messages using an automatic telephone dialing system or an artificial or prerecorded voice. Your agreement is not a condition to purchasing any property, goods or services, and you may call us instead of submitting the information online. You also acknowledge and agree that you can revoke your authorization at any time. Your consent herein also applies to any future registration on national or state Do-No-Call lists. For mobile phones, standard message and data charges apply. Consult our Privacy Policy for additional information, including unsubscribe options. You also agree to our Privacy Policy, including TCPA Policy and Terms of Use.
Way to Go!
An agent will be in contact soon!