20 Cassidy Trail
ActiveCoventry, RI 02816
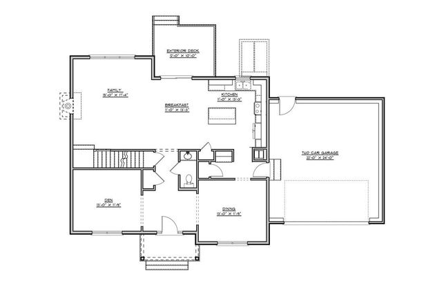
SEE AVAILABLE HOMES SUN 3/22 1 PM TO 2 PM 33 & 24 CASSIDY TRAIL, COVENTRY, RI. Imagine building your dream home in The Oaks at Hope Furnace, one of Kent County's most desirable new neighborhoods. This community of 32 homesites surrounded by 45+ acres of preserved open space has already sold 29 homes, leaving just three opportunities remaining. Two homes are completed & available for immediate occupancy, allowing buyers to tour finished floor plans & experience the craftsmanship firsthand. This Willow model is the final opportunity to build in the neighborhood, with the foundation already in place & the ability to personalize finishes including cabinetry, countertops, flooring, backsplash, appliances & paint. Set on a private 1+ acre homesite, this 4 bedroom, 2.5 bath Colonial with approx. 2,470 sq ft blends timeless architecture with modern living. The open first floor features a quartz kitchen with center island & breakfast area flowing into the fireplaced family room. Sliders from the dining area lead to a large composite deck overlooking the backyard. A formal dining room with tray ceiling & millwork plus a private office or den add flexibility. Upstairs offers a spacious primary suite with walk-in closet & tiled shower bath with double vanity, along with three additional bedrooms, full bath, 2nd floor laundry room. Minutes to Washington Oak Elementary School, the Washington Secondary Bike Path, Johnson's Pond, the Centre of New England & about 12 minutes to I-95.

1/3
20 Cassidy Trail
$839,900
- 4 bedrooms
- 2 baths
- 2470 sq ft
- MLS# : 1406395
- Built in 2025
Nearby schools
- Coventry Schools
Actual schools may vary. We recommend verifying with the local school district, the school assignment and enrollment process.
Map & directions
Mortgage rates & offers
Contact
FPO
Engel & Völkers East Greenwich
Copyright © 2026 Engel & Völkers. All rights reserved. All information provided by the listing agent/broker is deemed reliable but is not guaranteed and should be independently verified.
Discover More Great Communities
Select additional listings for more information
By providing your name and contact information and clicking the I'm Interested! button, you consent and agree to receive marketing communications from NewHomeSource and the builder(s) selected above, including emails, calls or text messages using an automatic telephone dialing system or an artificial or prerecorded voice. Your agreement is not a condition to purchasing any property, goods or services, and you may call us instead of submitting the information online. You also acknowledge and agree that you can revoke your authorization at any time. Your consent herein also applies to any future registration on national or state Do-No-Call lists. For mobile phones, standard message and data charges apply. Consult our Privacy Policy for additional information, including unsubscribe options. You also agree to our Privacy Policy, including TCPA Policy and Terms of Use.
Way to Go!
An agent will be in contact soon!