40 Ave I
ActiveMonroe, NJ 08831
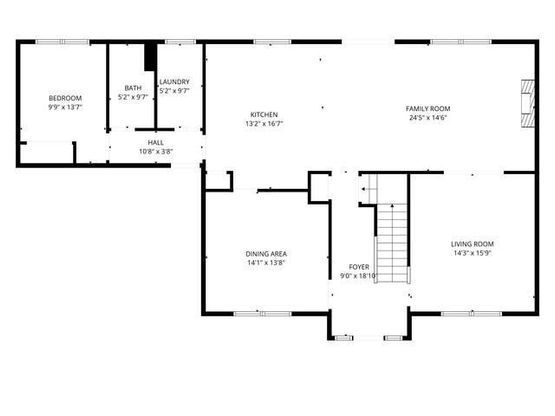
New Construction in Monroe Township! This thoughtfully designed 5 bedroom, 3 bath Custom Colonial is currently under construction, offering a perfect balance of classic style, quality workmanship, and modern comfort. Quick delivery. The inviting two-story foyer leads to a bright, open-concept main level ideal for everyday living and entertaining. The kitchen features a large center island, granite or quartz countertops, and custom cabinetry, opening to the adjoining dining area and gathering room with a state of the art electric fireplace. A formal dining room with tray ceiling adds elegance, while a front flex room provides versatility as a home office, library, or playroom. A convenient first floor bedroom and full bath and laundry room and access to the two-car garage complete the first floor. Upstairs, the spacious primary suite showcases a tray ceiling, two walk-in closets; one which could be used as an office or nursery, and a luxurious ensuite bath with free standing tub, stall shower, and double vanity. Three additional bedrooms, a full bath featuring a separate vanity area completes the upper level. The full unfinished basement offers endless potential for future living space, a recreation area, gym, or media room. Designed with efficiency and longevity in mind, this home features energy saving systems and quality construction throughout. Located on a quiet residential street, this new home provides easy access to Monroe Township's highly rated schools, nearby shopping and dining, and major commuter routes to Princeton, New Brunswick, and the Shore. Highlights include: Brand new construction by a well known respected local builder 5 Bedrooms 3 Baths 2 Car Garage Approx 3221sq ft (to be verified upon completion) Open concept kitchen, dining area, and great room Formal dining room and first floor flex space 9' ceilings on main level Electric fireplace in gathering room Primary suite with tray ceiling and dual walk in closets Spa style bath with free standing tub and separate shower Full unfinished basement Energy-efficient systems and new HVAC Buyer selections available depending on build stage Builder warranty included Taxes to be assessed upon completion. Renderings and photos shown are for illustration only and may depict optional upgrades or similar completed models. Dimensions and features subject to field variation. A wonderful opportunity to own new construction in one of Central Jersey's most desirable communities crafted for today's lifestyle with lasting quality and thoughtful design. For full specifications, floor plans, or builder details, contact the listing agent.

1/20
40 Ave I
$1,125,000
- 5 bedrooms
- 3 baths
- 3221 sq ft
- MLS# : 2612441R
- Built in 0
Nearby schools
- Jamesburg Public Schools
- Monroe Township School District
Actual schools may vary. We recommend verifying with the local school district, the school assignment and enrollment process.
Map & directions
Mortgage rates & offers
Contact
FPO
Coldwell Banker Residential Brokerage
Copyright © 2026 All Jersey MLS. All rights reserved. All information provided by the listing agent/broker is deemed reliable but is not guaranteed and should be independently verified.
Discover More Great Communities
Select additional listings for more information
By providing your name and contact information and clicking the I'm Interested! button, you consent and agree to receive marketing communications from NewHomeSource and the builder(s) selected above, including emails, calls or text messages using an automatic telephone dialing system or an artificial or prerecorded voice. Your agreement is not a condition to purchasing any property, goods or services, and you may call us instead of submitting the information online. You also acknowledge and agree that you can revoke your authorization at any time. Your consent herein also applies to any future registration on national or state Do-No-Call lists. For mobile phones, standard message and data charges apply. Consult our Privacy Policy for additional information, including unsubscribe options. You also agree to our Privacy Policy, including TCPA Policy and Terms of Use.
Way to Go!
An agent will be in contact soon!