810 Branding Iron Trail
ActiveGranbury, TX 76049
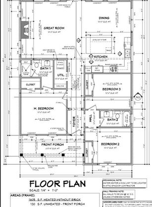
Experience the perfect blend of thoughtful design and energy-efficient living in this brand-new construction home, estimated for completion in June 2026. Offering 3 bedrooms, 2 bathrooms, and 1,605 square feet, this home delivers comfort, functionality, and modern appeal in one inviting package. Step inside to a well-designed single-story layout where open-concept living creates an easy flow between the kitchen, dining, and living areas—ideal for both everyday living and entertaining. The kitchen is equipped with stainless steel appliances, upgraded fixtures, and finishes that balance style and durability. Spray foam insulation and energy-efficient construction enhance year-round comfort while helping reduce utility costs. The private primary suite offers a relaxing retreat, complemented by two additional bedrooms that provide flexibility for guests, a home office, or hobbies. Outside, enjoy a yard with space to personalize and make your own. Located in Western Hills Harbor on the Fort Worth side of Granbury, residents enjoy access to community amenities including a pool, boat ramp, park, and more—bringing Lake Granbury living within reach. With low HOA dues and convenient access to nearby shopping, dining, and schools, this home combines lifestyle and value. Schedule your private tour today and secure this upcoming new construction before completion.

1/4
810 Branding Iron Trail
$288,000
- 3 bedrooms
- 2 baths
- 1605 sq ft
- MLS# : 21213177
- Built in 2026
Nearby schools
- Granbury Independent School District
Actual schools may vary. We recommend verifying with the local school district, the school assignment and enrollment process.
Map & directions
Mortgage rates & offers
Contact
FPO
Magnolia Realty Granbury
Copyright © 2026 North Texas Real Estate Information Systems, Inc.. All rights reserved. All information provided by the listing agent/broker is deemed reliable but is not guaranteed and should be independently verified.
Discover More Great Communities
Select additional listings for more information
By providing your name and contact information and clicking the I'm Interested! button, you consent and agree to receive marketing communications from NewHomeSource and the builder(s) selected above, including emails, calls or text messages using an automatic telephone dialing system or an artificial or prerecorded voice. Your agreement is not a condition to purchasing any property, goods or services, and you may call us instead of submitting the information online. You also acknowledge and agree that you can revoke your authorization at any time. Your consent herein also applies to any future registration on national or state Do-No-Call lists. For mobile phones, standard message and data charges apply. Consult our Privacy Policy for additional information, including unsubscribe options. You also agree to our Privacy Policy, including TCPA Policy and Terms of Use.
Way to Go!
An agent will be in contact soon!