3151 EMERSON TRAIL
ActiveSteamboat Springs, CO 80487
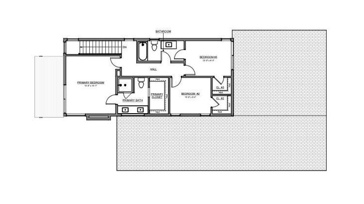
Welcome to The Glen, Steamboat Springs’ newest and most vibrant neighborhood! Situated on a desirable corner lot, this thoughtfully designed single-family home blends modern style with comfortable mountain living. The main level features a bright, open-concept layout that seamlessly connects the living room, dining area, and kitchen—perfect for both everyday living and entertaining. The kitchen is well appointed with soft-close cabinetry, quartz countertops, a spacious island, and a convenient reach-in pantry. Just off the two-car garage is a mudroom area with laundry hook-ups, ideal for keeping gear organized after a day outdoors. The main-level primary suite offers the ease of single-level living and includes a private ensuite bathroom and walk-in closet. Upstairs, you’ll find a second primary suite with its own ensuite bathroom, providing a comfortable and private retreat for guests or family members. Two additional bedrooms share a well-designed full bathroom, offering flexibility for family, visitors, or work-from-home needs. Located just three miles from downtown Steamboat Springs, less than seven miles from the Steamboat Ski Resort, and close to scenic trails and outdoor recreation, this home offers convenient access to everything that makes Steamboat such a special place to live. Enjoy the comfort of a modern floor plan, the benefits of a corner lot, and the opportunity to be part of one of Steamboat’s newest communities. The Glen isn’t just a neighborhood—it’s a lifestyle. Estimated completion is approximately 12 months after a signed contract, and buyers who purchase early in the process may have the opportunity to select certain finishes and purchase upgrades to personalize the home.

1/8
3151 EMERSON TRAIL
$1,695,000
- 4 bedrooms
- 3 baths
- 2096 sq ft
- MLS# : S1067704
- Built in 2026
Nearby schools
- Steamboat Springs School District No. Re 2
Actual schools may vary. We recommend verifying with the local school district, the school assignment and enrollment process.
Map & directions
Mortgage rates & offers
Contact
FPO
Steamboat Real Estate Professionals, LLC
Copyright © 2026 Altitude REALTORS ®. All rights reserved. All information provided by the listing agent/broker is deemed reliable but is not guaranteed and should be independently verified.
Discover More Great Communities
Select additional listings for more information
By providing your name and contact information and clicking the I'm Interested! button, you consent and agree to receive marketing communications from NewHomeSource and the builder(s) selected above, including emails, calls or text messages using an automatic telephone dialing system or an artificial or prerecorded voice. Your agreement is not a condition to purchasing any property, goods or services, and you may call us instead of submitting the information online. You also acknowledge and agree that you can revoke your authorization at any time. Your consent herein also applies to any future registration on national or state Do-No-Call lists. For mobile phones, standard message and data charges apply. Consult our Privacy Policy for additional information, including unsubscribe options. You also agree to our Privacy Policy, including TCPA Policy and Terms of Use.
Way to Go!
An agent will be in contact soon!