376 Summerville Lane
ActiveAthens, GA 30606
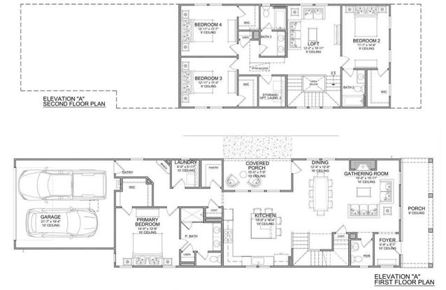
Welcome to Summerville! Our Chase floor plan is one of the homes in this charming neighborhood of southern style watercolor homes. Beautifully designed with modern finishes. Spacious and open for today's lifestyle. The first floor is an entertainers dream featuring 10' ceilings and plenty of natural light. Chef's kitchen with oversized island, double ovens and gas cooktop with vented hood. Family room with fireplace and dedicated breakfast area leading to the covered patio. Primary bedroom with spa inspired bath and walk in closet located on the main level. Laundry conveniently located off of the garage entrance. The second floor features 9'ceilings and open loft along with 3 secondary bedrooms and ample closet space. Optional laundry available upstairs or use the space for additional storage. Located minutes from downtown Athens and the UGA campus, shopping and dining with easy access to major roads. Offering a $10k incentive with one of our preferred lenders. We invite you to tour today! Home is under construction / estimated closing May - June 2026.

1/2
376 Summerville Lane
$528,342
- 4 bedrooms
- 3 baths
- 2549 sq ft
- MLS# : 7739656
- Built in 2026
Nearby schools
- Clarke County Schools
Actual schools may vary. We recommend verifying with the local school district, the school assignment and enrollment process.
Map & directions
Mortgage rates & offers
Contact
FPO
Ansley Real Estate Christie's International
Copyright © 2026 First Multiple Listing Service, Inc.. All rights reserved. All information provided by the listing agent/broker is deemed reliable but is not guaranteed and should be independently verified.
Discover More Great Communities
Select additional listings for more information
By providing your name and contact information and clicking the I'm Interested! button, you consent and agree to receive marketing communications from NewHomeSource and the builder(s) selected above, including emails, calls or text messages using an automatic telephone dialing system or an artificial or prerecorded voice. Your agreement is not a condition to purchasing any property, goods or services, and you may call us instead of submitting the information online. You also acknowledge and agree that you can revoke your authorization at any time. Your consent herein also applies to any future registration on national or state Do-No-Call lists. For mobile phones, standard message and data charges apply. Consult our Privacy Policy for additional information, including unsubscribe options. You also agree to our Privacy Policy, including TCPA Policy and Terms of Use.
Way to Go!
An agent will be in contact soon!