240 Pennington Road
ActiveHot Springs, AR 71913
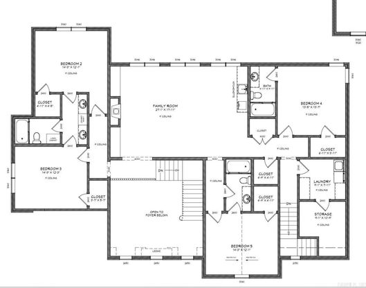
Proposed new construction by EY Custom Homes on Pennington Point, Lake Hamilton. This stunning 5,218 SF Transitional European residence designed by Tim Landreth Home Designs features 5 bedrooms, 4 full baths, and a half bath across two levels. Main level offers 10-ft ceilings, an open living area with two-story ceiling and stone fireplace, chef’s kitchen with gas cooktop, double ovens, butler’s pantry, and a hidden room. Luxurious owner’s suite with freestanding tub, oversized shower with bench, and walk-in closet. Covered porch with outdoor kitchen overlooks the lake. Upper level includes four additional bedrooms, a family room with vaulted ceilings, kitchenette, laundry, and generous storage. Dock with two covered boat slips. Office, built-ins, and thoughtful details throughout. Bring your buyers to Pennington Point — Lake Hamilton’s finest address.

1/6
240 Pennington Road
$2,400,000
- 5 bedrooms
- 5 baths
- 5218 sq ft
- MLS# : 26011391
- Built in 2026
Nearby schools
- Hot Springs School District
Actual schools may vary. We recommend verifying with the local school district, the school assignment and enrollment process.
Map & directions
Mortgage rates & offers
Contact
FPO
Rackley Realty
Copyright © 2026 Cooperative Arkansas Realtors Multiple Listing Service. All rights reserved. All information provided by the listing agent/broker is deemed reliable but is not guaranteed and should be independently verified.
Discover More Great Communities
Select additional listings for more information
By providing your name and contact information and clicking the I'm Interested! button, you consent and agree to receive marketing communications from NewHomeSource and the builder(s) selected above, including emails, calls or text messages using an automatic telephone dialing system or an artificial or prerecorded voice. Your agreement is not a condition to purchasing any property, goods or services, and you may call us instead of submitting the information online. You also acknowledge and agree that you can revoke your authorization at any time. Your consent herein also applies to any future registration on national or state Do-No-Call lists. For mobile phones, standard message and data charges apply. Consult our Privacy Policy for additional information, including unsubscribe options. You also agree to our Privacy Policy, including TCPA Policy and Terms of Use.
Way to Go!
An agent will be in contact soon!