302 Tremont Drive
ActiveFlorence, MS 39073
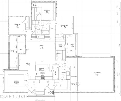
Great 4 Bedroom 3 Bathroom home in the Newest Neighborhood in Florence! This Open Concept Split Plan will feature quartz or granite countertops on all surfaces, island bar seating for 4, a walk in pantry in the kitchen as well as a Home office. The Primary Suite has a large ensuite bath that features a tile walk in shower, garden tub and access to the laundry room through the spacious walk in closet. There are 3 additional guest rooms opposite the living area. Two guest rooms share a bath in the adjacent hallway. The other guest room has a private hallway with bath adjacent to the bedroom. All Flooring will be LVP (White Oak finish). Back porch is ample size for entertaining and has a natural gas connection for grill. Waverly Subdivision has a community pool & cabana for all Residents, sidewalks, lushly landscaped entrance and green spaces! Located off Eagle Post & Williams Rd.

1/5
302 Tremont Drive
$355,800
- 4 bedrooms
- 3 baths
- 1944 sq ft
- MLS# : 4143539
- Built in 2026
Nearby schools
- Rankin County School District
Actual schools may vary. We recommend verifying with the local school district, the school assignment and enrollment process.
Map & directions
Mortgage rates & offers
Contact
FPO
Weaver and Associate
Copyright © 2026 MLS United. All rights reserved. All information provided by the listing agent/broker is deemed reliable but is not guaranteed and should be independently verified.
Discover More Great Communities
Select additional listings for more information
By providing your name and contact information and clicking the I'm Interested! button, you consent and agree to receive marketing communications from NewHomeSource and the builder(s) selected above, including emails, calls or text messages using an automatic telephone dialing system or an artificial or prerecorded voice. Your agreement is not a condition to purchasing any property, goods or services, and you may call us instead of submitting the information online. You also acknowledge and agree that you can revoke your authorization at any time. Your consent herein also applies to any future registration on national or state Do-No-Call lists. For mobile phones, standard message and data charges apply. Consult our Privacy Policy for additional information, including unsubscribe options. You also agree to our Privacy Policy, including TCPA Policy and Terms of Use.
Way to Go!
An agent will be in contact soon!