12818 Rock Creek Dr
ActivePasco, WA 99301
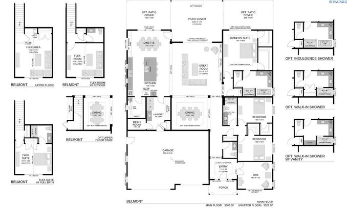
MLS# 291583 The Belmont is thoughtfully designed for those who want generous space with seamless flow. At the center of the home, the open-concept great room with 11-foot ceilings and an oversized fireplace is open to the kitchen and dining areas, creating an ideal setting for everyday living and easy entertaining. The spacious kitchen features a large pantry and optional windows for extra natural light. With a dinette that opens to the covered patio for relaxed indoor-outdoor living. Nearby, the oversized laundry room offers convenient access to the 3-car garage. The Owner’s Retreat provides a quiet escape with a spacious bedroom, dual walk-in closets, dual Quartz vanities, and a free standing tub. This side of the home also includes two secondary bedrooms, a full bath, a powder bath, and a dedicated den—perfect for a home office or flex space. The Belmont adds even more versatility with the upstairs. The standard layout includes an open rec room, with options to create an oversized bedroom and add a half or full bath—ideal for guests, hobbies, or multigenerational living. The Belmont offers the space to spread out, gather comfortably, and truly feel at home. With the New Heritage LX plan and elevations offering more customization to make this your forever home. Shop options available to build. This home is Energy Star Next-Gen, featuring LED disk lighting, energy efficient appliances, water conserving faucets, blown in bibb insulation and more. This is a TO BE BUILT listing, Spencer Estates lot 50 is also listed on the MLS to purchase just the land.

1/5
12818 Rock Creek Dr
$1,107,900
- 3 bedrooms
- 2 baths
- 3326 sq ft
- MLS# : 291583
- Built in 2026
Nearby schools
- Pasco School District
- Star School District
Actual schools may vary. We recommend verifying with the local school district, the school assignment and enrollment process.
Map & directions
Mortgage rates & offers
Contact
FPO
Windermere Group One, Tri-Cities
Copyright © 2026 PACMLS. All rights reserved. All information provided by the listing agent/broker is deemed reliable but is not guaranteed and should be independently verified.
Discover More Great Communities
Select additional listings for more information
By providing your name and contact information and clicking the I'm Interested! button, you consent and agree to receive marketing communications from NewHomeSource and the builder(s) selected above, including emails, calls or text messages using an automatic telephone dialing system or an artificial or prerecorded voice. Your agreement is not a condition to purchasing any property, goods or services, and you may call us instead of submitting the information online. You also acknowledge and agree that you can revoke your authorization at any time. Your consent herein also applies to any future registration on national or state Do-No-Call lists. For mobile phones, standard message and data charges apply. Consult our Privacy Policy for additional information, including unsubscribe options. You also agree to our Privacy Policy, including TCPA Policy and Terms of Use.
Way to Go!
An agent will be in contact soon!