4762 W Succulent Street
ActiveFayetteville, AR 72704
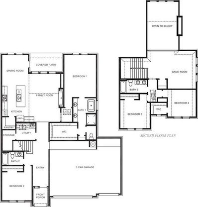
The Aurora plan in Hughmount South, in beautiful Fayetteville, AR! This two-story plan offers 4 bedrooms, 3 full bathrooms, and an upstairs game room! Upon entering, you will find a spacious open kitchen and living area with a beautiful, modern electric fireplace with a poplar mantle! The kitchen features quartz countertops, 42-inch cabinets, tile backsplash, and a gas range! This home will feature LVP throughout the first floor, and carpet on stairs and in all upstairs bedrooms and common areas! Each bedroom and the living room will have a ceiling fan. The primary suite features stunning beams, and a beautiful ensuite with a walk-in shower and freestanding tub! Each home in Hughmount South offers a 3-car garage, 4-sides brick with Hardie(R) siding per plan, and a covered patio per plan. These homes feature LED lighting throughout, and a high efficiency AC with a programmable Wi-Fi thermostat. Taxes and parcel TBD.

1/4
4762 W Succulent Street
$528,000
- 4 bedrooms
- 3 baths
- 2639 sq ft
- MLS# : 1341409
- Built in 2026
Nearby schools
- Fayetteville School District
Actual schools may vary. We recommend verifying with the local school district, the school assignment and enrollment process.
Map & directions
Mortgage rates & offers
Contact
FPO
D.R. Horton
Copyright © 2026 ArkansasONE MLS. All rights reserved. All information provided by the listing agent/broker is deemed reliable but is not guaranteed and should be independently verified.
Discover More Great Communities
Select additional listings for more information
By providing your name and contact information and clicking the I'm Interested! button, you consent and agree to receive marketing communications from NewHomeSource and the builder(s) selected above, including emails, calls or text messages using an automatic telephone dialing system or an artificial or prerecorded voice. Your agreement is not a condition to purchasing any property, goods or services, and you may call us instead of submitting the information online. You also acknowledge and agree that you can revoke your authorization at any time. Your consent herein also applies to any future registration on national or state Do-No-Call lists. For mobile phones, standard message and data charges apply. Consult our Privacy Policy for additional information, including unsubscribe options. You also agree to our Privacy Policy, including TCPA Policy and Terms of Use.
Way to Go!
An agent will be in contact soon!