8 Sera Avenue
ActiveIrving, TX 75063
Irving Valley Ranch’s best & last location for brand new construction. Modern designs. Mediterranean styles. Fantastic location. Stunning 14 floorplans to choose from 30 custom lot sizes. Impressive front elevations, elegant architectural designed floorplans come with 2 stories or 3 stories, hi-end finishes, Viking appliances, balconies, or terraces available per plans. Irving Las Colinas prime location. Easy access to shops, restaurants, Lifetime Fitness, multiple golf courses, Coming soon HEB, DFW airport… Note: The list price is for the construction of the house only. The lot price purchase will be separate. Buyer will need to select a lot & a house plan to build on. There will be two contracts (one for the lot and one for the house) to be signed before construction begins.

1/5
8 Sera Avenue
$1,421,400
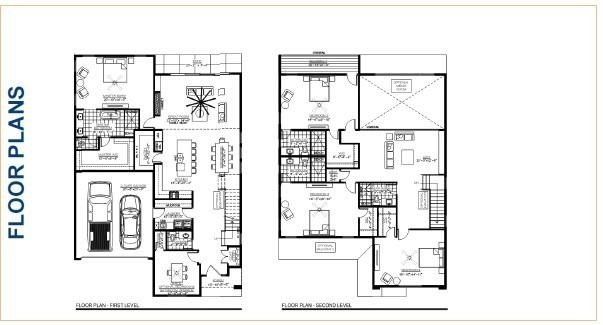
- 4 bedrooms
- 4 baths
- 3896 sq ft
- MLS# : 21230068
- Built in 2026
Nearby schools
- Carrollton-farmers Branch Independent School District
- Coppell Independent School District
Actual schools may vary. We recommend verifying with the local school district, the school assignment and enrollment process.
Map & directions
Mortgage rates & offers
Contact
FPO
Douglas Elliman Real Estate
Copyright © 2026 North Texas Real Estate Information Systems, Inc.. All rights reserved. All information provided by the listing agent/broker is deemed reliable but is not guaranteed and should be independently verified.
Discover More Great Communities
Select additional listings for more information
By providing your name and contact information and clicking the I'm Interested! button, you consent and agree to receive marketing communications from NewHomeSource and the builder(s) selected above, including emails, calls or text messages using an automatic telephone dialing system or an artificial or prerecorded voice. Your agreement is not a condition to purchasing any property, goods or services, and you may call us instead of submitting the information online. You also acknowledge and agree that you can revoke your authorization at any time. Your consent herein also applies to any future registration on national or state Do-No-Call lists. For mobile phones, standard message and data charges apply. Consult our Privacy Policy for additional information, including unsubscribe options. You also agree to our Privacy Policy, including TCPA Policy and Terms of Use.
Way to Go!
An agent will be in contact soon!