131 Laural Wood Road SE
ActiveAllenhurst, GA 31301
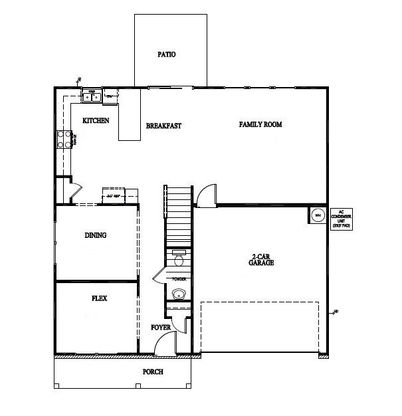
Welcome to the Duncan floor plan! This modern two-story home sits on a 0.55-acre homesite and offers 4 bedrooms, 2.5 bathrooms, and a spacious 2-car garage. A covered front porch opens to a welcoming foyer and versatile flex room, perfect for a home office, formal living, or playroom. A separate dining room is ideal for family meals and gatherings. The open-concept kitchen provides ample cabinets, generous counter space, and flows into the breakfast nook and large family room-great for entertaining. Upstairs, the private owner's suite features two walk-in closets and a luxurious bath with dual vanities, soaking tub, separate shower, and private water closet. Three additional bedrooms share a full bath with double sinks. A centrally located laundry room adds convenience. Artistic renderings may differ from actual features and layouts.

1/3
131 Laural Wood Road SE
$317,975
- 4 bedrooms
- 2 baths
- 2395 sq ft
- MLS# : SA353493
- Built in 2026
Map & directions
Mortgage rates & offers
Contact
FPO
RTS Realty LLC
Copyright © 2026 HIVE MLS. All rights reserved. All information provided by the listing agent/broker is deemed reliable but is not guaranteed and should be independently verified.
Discover More Great Communities
Select additional listings for more information
By providing your name and contact information and clicking the I'm Interested! button, you consent and agree to receive marketing communications from NewHomeSource and the builder(s) selected above, including emails, calls or text messages using an automatic telephone dialing system or an artificial or prerecorded voice. Your agreement is not a condition to purchasing any property, goods or services, and you may call us instead of submitting the information online. You also acknowledge and agree that you can revoke your authorization at any time. Your consent herein also applies to any future registration on national or state Do-No-Call lists. For mobile phones, standard message and data charges apply. Consult our Privacy Policy for additional information, including unsubscribe options. You also agree to our Privacy Policy, including TCPA Policy and Terms of Use.
Way to Go!
An agent will be in contact soon!