275 South Lake Court 50B
ActiveLexington, SC 29073
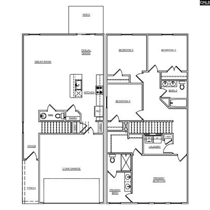
LOT 275 – THE LARCH | South Lake Commons. Completing June 2026 | 4 Bed | 2.5 Bath | 2-Car Garage. Special Promo: Up to $6,000 in closing costs with partner lender! Why You'll Love It: Low maintenance living in a convenient Lexington location — just off I-20 with Lexington One schools. Perfect for busy professionals, first-time buyers, or anyone looking to downsize without sacrificing comfort. Inside the Home: Modern, open layouts with stylish, energy-efficient finishes granite or quartz countertops & stainless steel appliances. Spacious primary suite with double vanity, private bath & large walk-in closet. HOA Covers: Lawn care & landscaping annual pressure washing & Termite bond (exterior). Special Financing Available — Down payment assistance options offered through preferred lending partners. GPS: 1223 South Lake Drive, Lexington, SC 29073. Buyer specials and contributions are subject to change or termination without notice. Specials vary by community and/or home and require use of a preferred lending partner. Not guaranteed until contract execution. Disclaimer: CMLS has not reviewed and, therefore, does not endorse vendors who may appear in listings.

1/4
275 South Lake Court 50B
$232,600
- 4 bedrooms
- 2 baths
- 1857 sq ft
- MLS# : 631701
- Built in 2026
Nearby schools
- Lexington 01 School District
Actual schools may vary. We recommend verifying with the local school district, the school assignment and enrollment process.
Map & directions
Mortgage rates & offers
Contact
FPO
Keller Williams Palmetto
Copyright © 2026 Consolidated MLS, SC. All rights reserved. All information provided by the listing agent/broker is deemed reliable but is not guaranteed and should be independently verified.
Discover More Great Communities
Select additional listings for more information
By providing your name and contact information and clicking the I'm Interested! button, you consent and agree to receive marketing communications from NewHomeSource and the builder(s) selected above, including emails, calls or text messages using an automatic telephone dialing system or an artificial or prerecorded voice. Your agreement is not a condition to purchasing any property, goods or services, and you may call us instead of submitting the information online. You also acknowledge and agree that you can revoke your authorization at any time. Your consent herein also applies to any future registration on national or state Do-No-Call lists. For mobile phones, standard message and data charges apply. Consult our Privacy Policy for additional information, including unsubscribe options. You also agree to our Privacy Policy, including TCPA Policy and Terms of Use.
Way to Go!
An agent will be in contact soon!