3338 ABBEY ROAD
ActiveSteamboat Springs, CO 80487
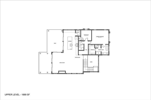
Welcome to Phase 3 of The Glen, Steamboat Springs’ newest and most exciting neighborhood. This 4-bed, 4-bath home offers a rare opportunity to secure an early release lot in this highly anticipated phase—positioned to capture beautiful views and exceptional surroundings. Thoughtfully designed for modern mountain living, the home features a spacious and functional layout with open-concept living areas, abundant natural light, and quality finishes throughout. In addition to the main living space, a lower-level family room provides a versatile area for entertaining, relaxing, or hosting guests. And with four bedrooms and four bathrooms, there is ample space for family, guests, and flexible living. Located just minutes from downtown Steamboat Springs, the Steamboat Ski Resort, and miles of trails and outdoor recreation, The Glen offers both convenience and lifestyle in one of the area’s fastest-growing communities. Estimated completion is approximately 12 months from contract, giving buyers the opportunity to plan ahead and, if under contract early enough, participate in finish selections to personalize the home. Don’t miss your chance to be part of Phase 3 at The Glen—where views, location, and new construction come together.

1/6
3338 ABBEY ROAD
$3,150,000
- 4 bedrooms
- 4 baths
- 3177 sq ft
- MLS# : S1068111
- Built in 2026
Nearby schools
- Steamboat Springs School District No. Re 2
Actual schools may vary. We recommend verifying with the local school district, the school assignment and enrollment process.
Map & directions
Mortgage rates & offers
Contact
FPO
Steamboat Real Estate Professionals, LLC
Copyright © 2026 Altitude REALTORS ®. All rights reserved. All information provided by the listing agent/broker is deemed reliable but is not guaranteed and should be independently verified.
Discover More Great Communities
Select additional listings for more information
By providing your name and contact information and clicking the I'm Interested! button, you consent and agree to receive marketing communications from NewHomeSource and the builder(s) selected above, including emails, calls or text messages using an automatic telephone dialing system or an artificial or prerecorded voice. Your agreement is not a condition to purchasing any property, goods or services, and you may call us instead of submitting the information online. You also acknowledge and agree that you can revoke your authorization at any time. Your consent herein also applies to any future registration on national or state Do-No-Call lists. For mobile phones, standard message and data charges apply. Consult our Privacy Policy for additional information, including unsubscribe options. You also agree to our Privacy Policy, including TCPA Policy and Terms of Use.
Way to Go!
An agent will be in contact soon!