428 W Lincoln
ActiveWildwood, NJ 08260
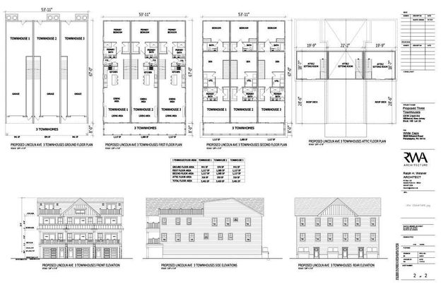
Wildwood Townhome With Waterview. 428 West Lincoln Avenue features three bedrooms with den, three and a half bathrooms, spacious open concept living area. Three private decks, two with water view, one rooftop, gourmet kitchen with custom cabinetry, stainless steel appliances and large island. Primary suite with private bath and private deck with water view, spacious bedrooms, large den, multi-zone HVAC system, private yard, exterior shower, private garage, three car parking. Elevator Option. One of a three townhome new construction development set in the recently re-developed heart of Wildwood bayside community. Perfect location for the peaceful bayside lifestyle yet close to all of your favorite seashore activities. Projected completion August 2026.

1/3
428 W Lincoln
$979,000
- 3 bedrooms
- 3 baths
- MLS# : 261048
- Built in 2026
Nearby schools
- North Wildwood City Schools
- Wildwood City Schools
- Wildwood Crest Schools
Actual schools may vary. We recommend verifying with the local school district, the school assignment and enrollment process.
Map & directions
Mortgage rates & offers
Contact
FPO
LONG & FOSTER REAL ESTATE, INC nww
Copyright © 2026 Cape May County Association of Realtors. All rights reserved. All information provided by the listing agent/broker is deemed reliable but is not guaranteed and should be independently verified.
Discover More Great Communities
Select additional listings for more information
By providing your name and contact information and clicking the I'm Interested! button, you consent and agree to receive marketing communications from NewHomeSource and the builder(s) selected above, including emails, calls or text messages using an automatic telephone dialing system or an artificial or prerecorded voice. Your agreement is not a condition to purchasing any property, goods or services, and you may call us instead of submitting the information online. You also acknowledge and agree that you can revoke your authorization at any time. Your consent herein also applies to any future registration on national or state Do-No-Call lists. For mobile phones, standard message and data charges apply. Consult our Privacy Policy for additional information, including unsubscribe options. You also agree to our Privacy Policy, including TCPA Policy and Terms of Use.
Way to Go!
An agent will be in contact soon!