1111 LAKEWOOD Drive SW
ActiveVienna, VA 22180
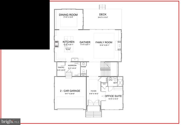
***Disclaimer: This home is still under construction! Please join us for a dusty boot open in Luka Design and Build's "Parade of Homes" on Saturday, May 2nd from 11am-3pm to view the property before it's complete. Homes to see: -511 Orrin St SE, Vienna, VA 22180 -350 Ayr Hill, Vienna, VA 22180 -1111 Lakewood Drive, Vienna, VA 22180 *** Welcome to 1111 Lakewood Drive SW, Vienna, VA 22180 Built by Luka Design and Build, this newly constructed residence offers over 6,000 square feet of well-planned living space on a 0.26-acre lot. Six bedrooms, six full baths, and two half baths are thoughtfully arranged across three levels, balancing scale, function, and modern design. Main Level | Designed for Daily Living Open, light-filled living spaces define the main level, supporting both everyday use and entertaining. The dining area connects directly to the deck, allowing for an easy transition to outdoor space. A main-level office suite adds flexibility for work or guest use. Access from the two-car garage leads into a mudroom and pantry, reinforcing an efficient and practical layout. Upper Level | Private Living Spaces Anchored by the primary suite, the upper level offers a private retreat with a spa-style bathroom and an oversized walk-in closet. Additional bedrooms include en suite bathrooms and walk-in closets, providing privacy and convenience for family and guests. Lower Level | Recreation and Flex Space Designed with versatility in mind, the lower level features a spacious recreation room suitable for gatherings or relaxation. A dedicated media or golf room adds functionality, while a wet bar supports entertaining. A private bedroom suite allows for guest accommodations or extended stays. Customization & Delivery Delivery is anticipated in early 2027, with time to personalize features and collaborate with the designer to tailor this home to your unique lifestyle. This is a rare opportunity to create a space that truly reflects your taste, priorities, and way of living. **** "Renderings are artistic visualizations intended only to illustrate the design concept only. Final materials, colors, textures, lighting, and architectural details may vary from what is shown in the images." ****

1/10
1111 LAKEWOOD Drive SW
$2,599,888
- 6 bedrooms
- 6 baths
- 6040 sq ft
- MLS# : VAFX2284436
- Built in 2026
Nearby schools
- Fairfax County Public Schools
Actual schools may vary. We recommend verifying with the local school district, the school assignment and enrollment process.
Map & directions
Mortgage rates & offers
Contact
FPO
Keller Williams Marketcenter 375
Copyright © 2026 Bright MLS. All rights reserved. All information provided by the listing agent/broker is deemed reliable but is not guaranteed and should be independently verified.
Discover More Great Communities
Select additional listings for more information
By providing your name and contact information and clicking the I'm Interested! button, you consent and agree to receive marketing communications from NewHomeSource and the builder(s) selected above, including emails, calls or text messages using an automatic telephone dialing system or an artificial or prerecorded voice. Your agreement is not a condition to purchasing any property, goods or services, and you may call us instead of submitting the information online. You also acknowledge and agree that you can revoke your authorization at any time. Your consent herein also applies to any future registration on national or state Do-No-Call lists. For mobile phones, standard message and data charges apply. Consult our Privacy Policy for additional information, including unsubscribe options. You also agree to our Privacy Policy, including TCPA Policy and Terms of Use.
Way to Go!
An agent will be in contact soon!