Adelaide Plan
Ready to build
College Station TX 77845
Custom Home by WGR Custom Homes
Last updated 4 days ago
The Price Range displayed reflects the base price of the homes built in this community.
You get to select from the many different types of homes built by this Builder and personalize your New Home with options and upgrades.
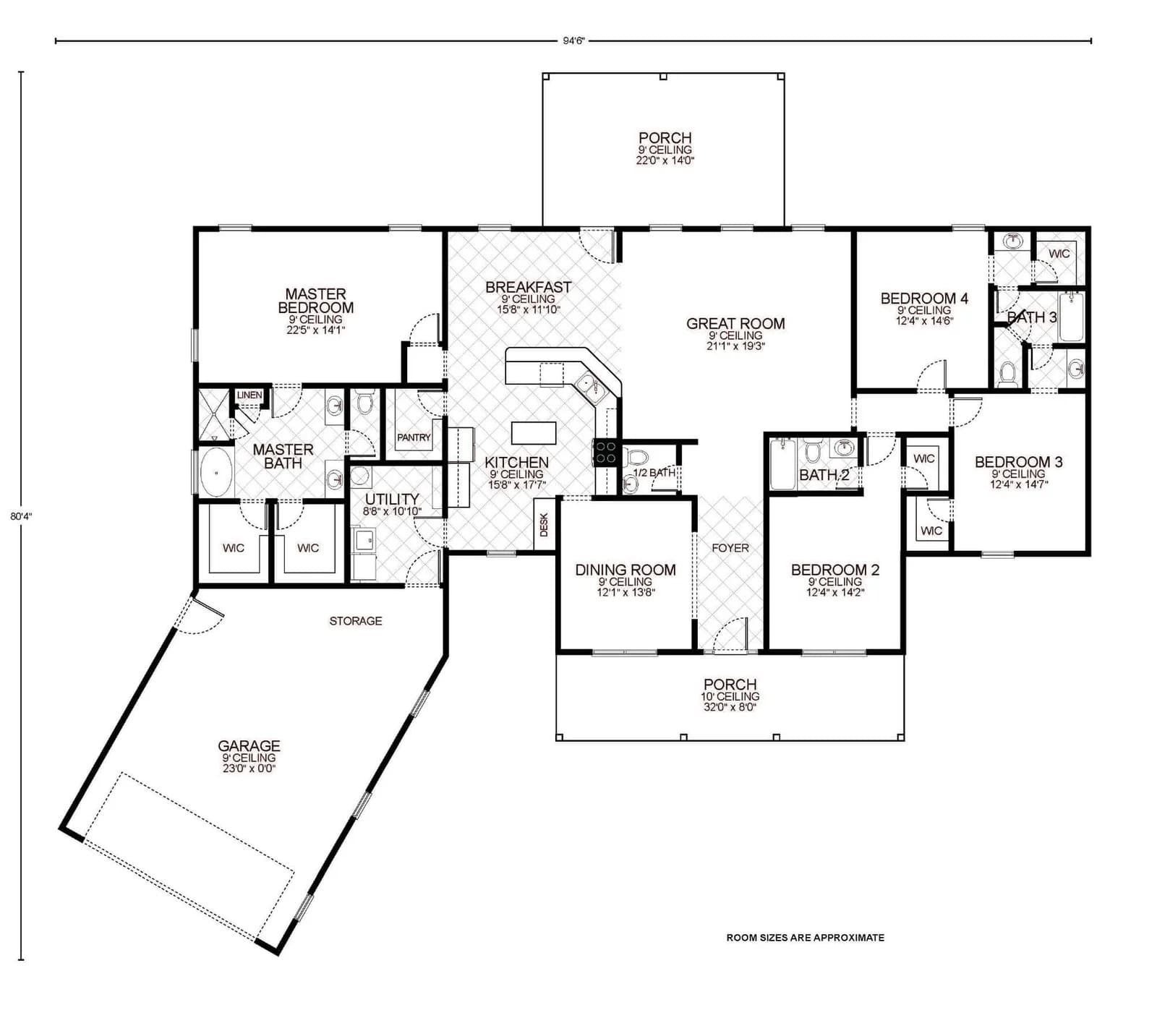
4 BR
3.5 BA
2 GR
2,816 SQ FT
Claim this listing to update information, get access to exclusive tools and more!

Exterior 1/1
Overview
1 Half Bathroom
2 Car Garage
2816 Sq Ft
3 Bathrooms
4 Bedrooms
Single Family
Adelaide Plan Info
This exquisite floor plan presents an inviting design that balances open spaces with private retreats perfect for those looking to build a custom home thats both luxurious and practical. The heart of the home is the spacious great room with soaring ceilings providing the ideal backdrop for entertaining or relaxing family time.
Neighborhood
Community location & sales center
College Station, TX 77845
College Station, TX 77845
888-790-3488
Schools near Southwest Homes
- College Station Independent School District
Actual schools may vary. Contact the builder for more information.
Builder details
WGR Custom Homes
More new homes in College Station, Texas
Adelaide Plan by WGR Custom Homes
saved to favorites!
To see all the homes you’ve saved, visit the My Favorites section of your account.
Discover More Great Communities
Select additional listings for more information
Way to Go!
An agent will be in contact soon!