AISLE Plan
Ready to build
1221 Mosser Drive, Columbia SC 29203
Home by D.R. Horton
at Grand Oaks
Last updated 2 days ago
The Price Range displayed reflects the base price of the homes built in this community.
You get to select from the many different types of homes built by this Builder and personalize your New Home with options and upgrades.
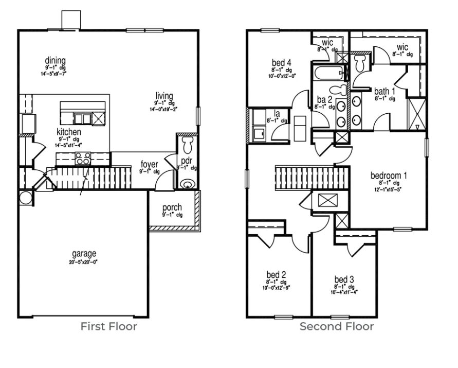
4 BR
2.5 BA
2 GR
1,927 SQ FT
Claim this listing to update information, get access to exclusive tools and more!

Floorplan 0 1/1
Overview
1 Half Bathroom
2 Stories
Single Family
AISLE Plan Info
Find your new home in the Aisle! The Aisle plan features a completely open concept first floor with plenty of room for large gatherings. The kitchen boasts a versatile floating island, lots of cabinet space, and a spacious pantry. On the second floor is the impressive primary bedroom, laundry room, and three additional bedrooms. *The photos you see here are for illustration purposes only, interior and exterior features, options, colors and selections will differ. Please see sales agent for options.
Floor plan center
View floor plan details for this property.
- Floor Plans
- Exterior Images
- Interior Images
- Other Media
Neighborhood
Community location & sales center
1221 Mosser Drive
Columbia, SC 29203
1221 Mosser Drive
Columbia, SC 29203
888-355-8096
Schools near Grand Oaks
- Richland 01
- A. J. Lewis Greenview Elementary School
- W. G. Sanders Middle School
- W.j. Keenan High School
Actual schools may vary. Contact the builder for more information.
Amenities
Home details
Ready to build
Build the home of your dreams with the AISLE plan by selecting your favorite options. For the best selection, pick your lot in Grand Oaks today!
Nearby schools
Richland 01
A. J. Lewis Greenview Elementary School
Elementary school. Grades PK to 5.
Public school
Teacher - student ratio: 1:13
Students enrolled: 375
803-735-3417
726 Easter St, Columbia, SC, 29203
W. G. Sanders Middle School
Middle school. Grades 6 to 8.
Public school
Teacher - student ratio: 1:11
Students enrolled: 533
803-738-7575
3455 Pine Belt Rd, Columbia, SC, 29204
W.j. Keenan High School
High school. Grades 9 to 12.
Public school
Teacher - student ratio: 1:12
Students enrolled: 725
803-714-2500
361 Pisgah Church Rd, Columbia, SC, 29203
Actual schools may vary. We recommend verifying with the local school district, the school assignment and enrollment process.
Neighborhood amenities
Walmart Supercenter
1.62 miles away
321 Killian Rd
Kroger Marketplace
2.18 miles away
1028 Roberts Branch Pkwy
ALDI
2.41 miles away
1240 Longreen Pkwy
Food Lion
2.83 miles away
9003 Two Notch Rd
Royal India Bazaar
2.85 miles away
9221 Two Notch Rd
Walmart Bakery
1.62 miles away
321 Killian Rd
Mesha's Sinful Cakes & More
2.83 miles away
9003 Two Notch Rd
Bakeries USA Bimbo
2.98 miles away
251 Corporate Park Blvd
Tiffany's Bakery & Eatery
3.65 miles away
9704 Two Notch Rd
Southern Belle Bakery LLC
3.68 miles away
333 Westmoreland Rd
SONIC Drive-in
1.02 miles away
8821 Farrow Rd
Subway
1.09 miles away
8810 Farrow Rd
Bojangles'
1.10 miles away
8710 Farrow Rd
Wendy's
1.15 miles away
2360 Legrand Rd
Cracker Barrel Old Country Store
1.17 miles away
2300 Legrand Rd
Scooter's Coffeehouse
1.77 miles away
81 Tulip Oak Dr
Starbucks
2.03 miles away
1033 Roberts Branch Pkwy
Tropical Smoothie Cafe
2.03 miles away
1033 Roberts Branch Pkwy
Starbucks
2.18 miles away
1028 Roberts Branch Pkwy
Starbucks
2.88 miles away
9007 Two Notch Rd
Family Dollar
1.23 miles away
8374 Wilson Blvd
Rare Maniere
1.31 miles away
8602 Farrow Rd
Cato Fashions
1.34 miles away
327 Killian Rd
Jd'd Fashion II
1.34 miles away
327 Killian Rd
Shoe Dept
1.34 miles away
327 Killian Rd
Quick Stop
1.25 miles away
9102 Farrow Rd
Applebee's Grill + Bar
1.85 miles away
437 Killian Rd
Chili's
2.87 miles away
7715 Two Notch Rd
Hooters
2.89 miles away
7711 Two Notch Rd
Racks Restaurant & Sports Bar
2.90 miles away
108 Columbia Northeast Dr
Please note this information may vary. If you come across anything inaccurate, please contact us.
Builder details
D.R. Horton
In 1978, D.R. Horton broke ground on our first home in Fort Worth, Texas. Since that day, the company has defined its success not by bricks and mortar, but by the satisfaction of the families that make our houses their homes. Our foundation is a single, guiding principle: a value-first dedication to the individual needs of each and every one of our nation’s homebuyers.
From first-time homebuyers to empty nesters, our family of brands provides a home for every stage in life. Our highly-trained, market experts are where you want to live, from New Jersey to Hawaii, providing unique, personalized services tailored to your individual needs. But the real value comes from the quality construction we put into every home, and the peace of mind that comes with a premium-backed warranty from America’s Number One Homebuilder.
We’ve come a long way, and while more people choose our family of brands over any other builder in the country, we never forget the most important thing of all – the families that choose us for their place to call home.
So continue to live out those dreams, America, and know we’ll be here for you every step of the way.
More new homes in Columbia, South Carolina
AISLE Plan by D.R. Horton
saved to favorites!
To see all the homes you’ve saved, visit the My Favorites section of your account.
Discover More Great Communities
Select additional listings for more information
Way to Go!
An agent will be in contact soon!
