AISLE Plan
Ready to build
201 Roocroft Court, Fountain Inn SC 29644
Home by D.R. Horton
at Cedar Gap
Last updated 1 day ago
The Price Range displayed reflects the base price of the homes built in this community.
You get to select from the many different types of homes built by this Builder and personalize your New Home with options and upgrades.
4 BR
2.5 BA
2 GR
1,927 SQ FT
Claim this listing to update information, get access to exclusive tools and more!

Floorplan 0 1/2
Overview
1 Half Bathroom
2 Stories
Single Family
AISLE Plan Info
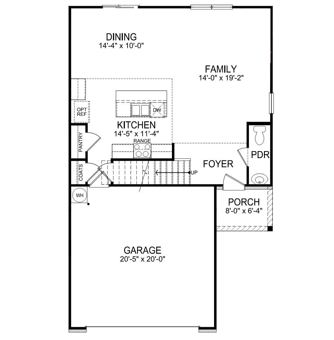
The Aisle is one of our two-story plans at Cedar Gap in Fountain Inn, SC offering 5 elevations. The Aisle is a spacious and modern two-story home designed with open concept living in mind. This home features four bedrooms, two and a half bathrooms and a two-car garage. Upon entering the home, you'll be greeted by an inviting foyer that leads directly into heart of the home. This impressive space features a family room, dining area, and well-appointed kitchen. The kitchen is equipped with a pantry, stainless steel appliances, and a large island with a breakfast bar, making it perfect for both cooking and entertaining. Upstairs this home also features a primary suite, complete with a large walk-in closet and en suite bathroom featuring dual vanities and a spacious shower. The additional three bedrooms share a full bath that includes dual vanities. Outback is a patio, perfect for outdoor entertaining or enjoying beautiful weather. With its thoughtful design, spacious layout, and modern conveniences, the Aisle is the perfect place to call home at Cedar Gap.
Floor plan center
View floor plan details for this property.
- Floor Plans
- Exterior Images
- Interior Images
- Other Media
Neighborhood
Community location & sales center
201 Roocroft Court
Fountain Inn, SC 29644
201 Roocroft Court
Fountain Inn, SC 29644
888-790-3488
Schools near Cedar Gap
- Greenville 01 School District
- Bryson Elementary School
- Bryson Middle School
- Hillcrest High School
Actual schools may vary. Contact the builder for more information.
Amenities
Home details
Ready to build
Build the home of your dreams with the AISLE plan by selecting your favorite options. For the best selection, pick your lot in Cedar Gap today!
Nearby schools
Greenville 01 School District
Bryson Elementary School
Elementary school. Grades KG to 5.
Public school
Teacher - student ratio: 1:15
Students enrolled: 911
864-355-3600
703 Bryson Dr, Simpsonville, SC, 29681
Bryson Middle School
Middle school. Grades 6 to 8.
Public school
Teacher - student ratio: 1:16
Students enrolled: 920
864-355-2100
3657 S Industrial Dr, Simpsonville, SC, 29681
Hillcrest High School
High school. Grades 9 to 12.
Public school
Teacher - student ratio: 1:19
Students enrolled: 2192
864-355-3500
3665 S Industrial Dr, Simpsonville, SC, 29681
Actual schools may vary. We recommend verifying with the local school district, the school assignment and enrollment process.
Builder details
D.R. Horton
In 1978, D.R. Horton broke ground on our first home in Fort Worth, Texas. Since that day, the company has defined its success not by bricks and mortar, but by the satisfaction of the families that make our houses their homes. Our foundation is a single, guiding principle: a value-first dedication to the individual needs of each and every one of our nation’s homebuyers.
From first-time homebuyers to empty nesters, our family of brands provides a home for every stage in life. Our highly-trained, market experts are where you want to live, from New Jersey to Hawaii, providing unique, personalized services tailored to your individual needs. But the real value comes from the quality construction we put into every home, and the peace of mind that comes with a premium-backed warranty from America’s Number One Homebuilder.
We’ve come a long way, and while more people choose our family of brands over any other builder in the country, we never forget the most important thing of all – the families that choose us for their place to call home.
So continue to live out those dreams, America, and know we’ll be here for you every step of the way.
More new homes in Fountain Inn, South Carolina
AISLE Plan by D.R. Horton
saved to favorites!
To see all the homes you’ve saved, visit the My Favorites section of your account.
Discover More Great Communities
Select additional listings for more information
Way to Go!
An agent will be in contact soon!
