Aisle Plan
Ready to build
26 Horatio Lane, Lugoff SC 29078
Home by D.R. Horton
Last updated 2 days ago
The Price Range displayed reflects the base price of the homes built in this community.
You get to select from the many different types of homes built by this Builder and personalize your New Home with options and upgrades.
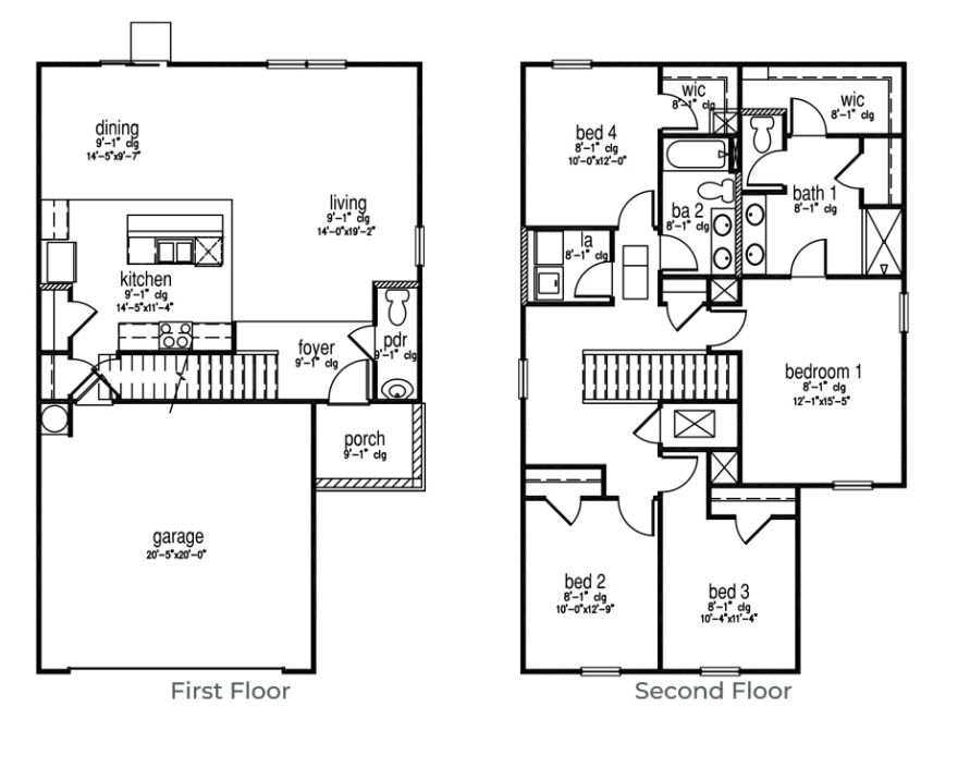
4 BR
2.5 BA
2 GR
1,927 SQ FT
Claim this listing to update information, get access to exclusive tools and more!

Floorplan 0 1/1
Overview
1 Half Bathroom
1927 Sq Ft
2 Bathrooms
2 Car Garage
2 Stories
4 Bedrooms
Single Family
Aisle Plan Info
Welcome to the Aisle in Gates Village! With 4 bedrooms and 2.5 bathrooms, the Aisle floorplan provides plenty of living space. The main level is open-concept design with a stunning modern kitchen, including granite countertops, shaker-style cabinetry, a floating kitchen island, and a spacious kitchen pantry. Upstairs, you will find the bedrooms, 2 bathrooms, and the conveniently located laundry room. Don't miss the chance to call the Aisle home! All of our homes include D.R. Horton's Home is Connected® package, an industry leading suite of smart home products that keeps homeowners connected with the people and place they value the most. The technology allows homeowners to monitor and control their home from the couch or across the globe. *The photos you see here are for illustration purposes only, interior and exterior features, options, colors and selections will differ. Please see sales agent for options.
Floor plan center
View floor plan details for this property.
- Floor Plans
- Exterior Images
- Interior Images
- Other Media
Neighborhood
Community location & sales center
26 Horatio Lane
Lugoff, SC 29078
26 Horatio Lane
Lugoff, SC 29078
888-355-8096
Schools near Gates Village
- Kershaw 01 School District
- Lugoff Elementary School
- Lugoff Elgin Middle School
- Lugoff Elgin High School
Actual schools may vary. Contact the builder for more information.
Amenities
Home details
Ready to build
Build the home of your dreams with the Aisle plan by selecting your favorite options. For the best selection, pick your lot in Gates Village today!
Nearby schools
Kershaw 01 School District
Elementary school. Grades KG to 5.
- Public school
- Teacher - student ratio: 1:14
- Students enrolled: 526
994 Ridgeway Rd, Lugoff, SC, 29078
803-438-8000
Middle school. Grades 6 to 8.
- Public school
- Teacher - student ratio: 1:13
- Students enrolled: 668
1244 Highway 1 S, Lugoff, SC, 29078
803-438-3591
High school. Grades 9 to 12.
- Public school
- Teacher - student ratio: 1:20
- Students enrolled: 1744
1284 Highway 1 S, Lugoff, SC, 29078
803-438-3481
Actual schools may vary. We recommend verifying with the local school district, the school assignment and enrollment process.
Neighborhood amenities
Food Lion
2.26 miles away
610 Highway 1 S
Walmart Supercenter
3.23 miles away
2240 W Dekalb St
Rivera Supermarket
5.28 miles away
1109 Fairlawn Dr
Piggly Wiggly
6.01 miles away
50 E Dekalb St
Food Lion
6.01 miles away
2529 Broad St
Walmart Bakery
3.23 miles away
2240 W Dekalb St
GNC
3.51 miles away
1670 Springdale Dr
Gadgets of Lugoff
0.48 mile away
96 Highway 601 S
Cook Out
0.81 mile away
920 Highway 1 S
McDonald's
0.86 mile away
906 Highway 1 S
Sub Station II
1.03 miles away
870 Highway 1 S
KFC
1.10 miles away
857 Highway 1 S
Scooter's Coffeehouse
1.32 miles away
812 Highway 1 S
Books on Broad and Coffee
5.16 miles away
944 Broad St
Starbucks
5.28 miles away
2184 W Dekalb St
Walmart Supercenter
3.23 miles away
2240 W Dekalb St
Marshalls
3.25 miles away
2209 W Dekalb St
Hibbett Sports
3.43 miles away
1640 Springdale Dr
Bealls
3.51 miles away
1670 Springdale Dr
Belk
3.51 miles away
1670 Springdale Dr
Gadgets of Lugoff
0.48 mile away
96 Highway 601 S
Chili's
3.33 miles away
1635A Springdale Dr
Broad & Vine
5.13 miles away
1025 Broad St
Beaver's Den at Beaver Creek Bar & Grill
5.28 miles away
3482 John G Richards Rd
Haile Street Grill
6.14 miles away
1350 Haile St
Please note this information may vary. If you come across anything inaccurate, please contact us.
Builder details
D.R. Horton
In 1978, D.R. Horton broke ground on our first home in Fort Worth, Texas. Since that day, the company has defined its success not by bricks and mortar, but by the satisfaction of the families that make our houses their homes. Our foundation is a single, guiding principle: a value-first dedication to the individual needs of each and every one of our nation’s homebuyers.
From first-time homebuyers to empty nesters, our family of brands provides a home for every stage in life. Our highly-trained, market experts are where you want to live, from New Jersey to Hawaii, providing unique, personalized services tailored to your individual needs. But the real value comes from the quality construction we put into every home, and the peace of mind that comes with a premium-backed warranty from America’s Number One Homebuilder.
We’ve come a long way, and while more people choose our family of brands over any other builder in the country, we never forget the most important thing of all – the families that choose us for their place to call home.
So continue to live out those dreams, America, and know we’ll be here for you every step of the way.
More new homes in Lugoff, South Carolina
Aisle Plan by D.R. Horton
saved to favorites!
To see all the homes you’ve saved, visit the My Favorites section of your account.
Discover More Great Communities
Select additional listings for more information
Way to Go!
An agent will be in contact soon!
