ALLEX Plan
Ready to build
1614 Calks Ferry Road, Lexington SC 29072
Home by D.R. Horton
at Ferry Grove
Last updated 1 day ago
The Price Range displayed reflects the base price of the homes built in this community.
You get to select from the many different types of homes built by this Builder and personalize your New Home with options and upgrades.
3 BR
2 BA
2 GR
1,459 SQ FT
Claim this listing to update information, get access to exclusive tools and more!

Floorplan 0 1/1
Overview
1 Story
Single Family
ALLEX Plan Info
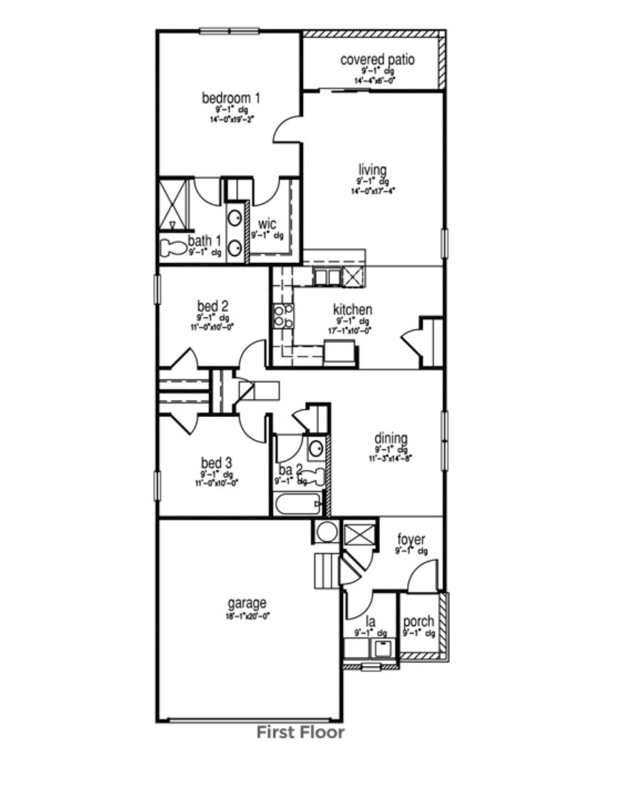
Welcome to the Allex in Ferry Grove! The Allex is a thoughtfully designed ranch-style home that combines modern convenience with timeless charm. With 1,459 square feet of living space, this home features an open-concept layout, perfect for both relaxing and entertaining. The heart of the home is the spacious kitchen, complete with modern countertops, a kitchen bar, and plenty of counter space. The kitchen flows seamlessly into the dining and living areas, creating a bright and airy central hub filled with natural light. The split-bedroom design ensures privacy, with the primary suite tucked at the rear of the home. This tranquil retreat boasts a large walk-in closet and a well-appointed en-suite bathroom. Two additional bedrooms and a second full bathroom are located toward the front of the home, offering space for even guests or a home office. Enjoy your outdoor space with a covered back patio and a welcoming covered front entry. The home also includes a 2-car garage for added convenience and storage. The Allex is the perfect blend of comfort and functionality, designed to suit your lifestyle. Contact us today to learn how you can make the Allex in Ferry Grove your new home! All of our homes include D.R. Horton's Home is Connected® package, an industry leading suite of smart home products that keeps homeowners connected with the people and place they value the most. This technology allows homeowners to monitor and control their home from the couch or across the globe.
Floor plan center
View floor plan details for this property.
- Floor Plans
- Exterior Images
- Interior Images
- Other Media
Neighborhood
Community location & sales center
1614 Calks Ferry Road
Lexington, SC 29072
1614 Calks Ferry Road
Lexington, SC 29072
888-355-8096
Schools near Ferry Grove
- Lexington 01 School District
- Gilbert Elementary School
- Gilbert Middle School
- Gilbert High School
Actual schools may vary. Contact the builder for more information.
Amenities
Home details
Ready to build
Build the home of your dreams with the ALLEX plan by selecting your favorite options. For the best selection, pick your lot in Ferry Grove today!
Nearby schools
Lexington 01 School District
Gilbert Elementary School
Elementary school. Grades PK to 5
Public school
Class ratio: 1: 11
Enrollment: 768
803-821-1600
520 Main St, Gilbert, SC, 29054
Gilbert Middle School
Middle school. Grades 6 to 8
Public school
Class ratio: 1: 13
Enrollment: 822
803-821-1700
120 Rikard Cir, Gilbert, SC, 29054
Gilbert High School
High school. Grades 9 to 12
Public school
Class ratio: 1: 14
Enrollment: 1118
803-821-1900
840 Main St, Gilbert, SC, 29054
Actual schools may vary. We recommend verifying with the local school district, the school assignment and enrollment process.
Builder details
D.R. Horton
In 1978, D.R. Horton broke ground on our first home in Fort Worth, Texas. Since that day, the company has defined its success not by bricks and mortar, but by the satisfaction of the families that make our houses their homes. Our foundation is a single, guiding principle: a value-first dedication to the individual needs of each and every one of our nation’s homebuyers.
From first-time homebuyers to empty nesters, our family of brands provides a home for every stage in life. Our highly-trained, market experts are where you want to live, from New Jersey to Hawaii, providing unique, personalized services tailored to your individual needs. But the real value comes from the quality construction we put into every home, and the peace of mind that comes with a premium-backed warranty from America’s Number One Homebuilder.
We’ve come a long way, and while more people choose our family of brands over any other builder in the country, we never forget the most important thing of all – the families that choose us for their place to call home.
So continue to live out those dreams, America, and know we’ll be here for you every step of the way.
More new homes in Lexington, South Carolina
ALLEX Plan by D.R. Horton
saved to favorites!
To see all the homes you’ve saved, visit the My Favorites section of your account.
Discover More Great Communities
Select additional listings for more information
Way to Go!
An agent will be in contact soon!
