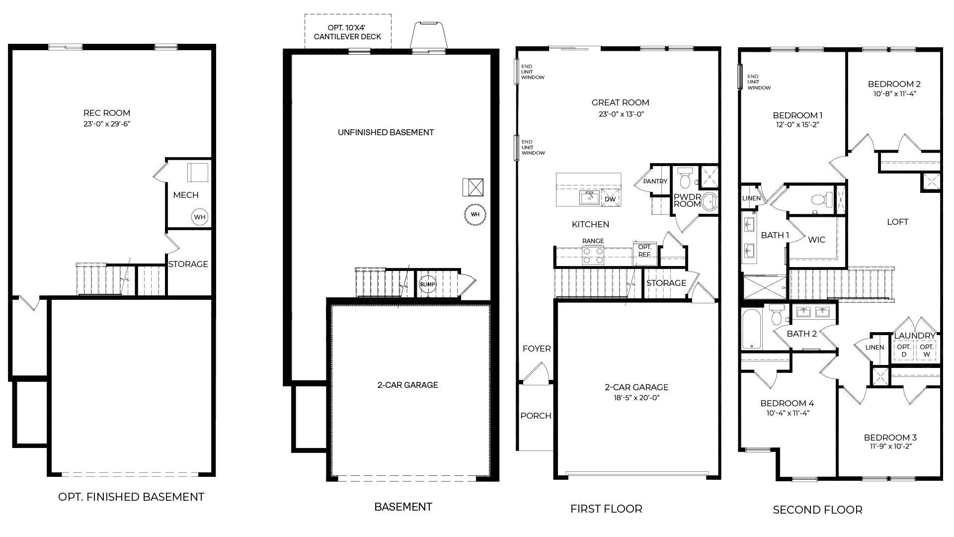
138 Scotland Lane (Andrews II - Finished Basement)
Under Construction
Harmony, PA 16037
Home by D.R. Horton
at Seneca Hills
Last updated 2 days ago
The Price Range displayed reflects the base price of the homes built in this community.
You get to select from the many different types of homes built by this Builder and personalize your New Home with options and upgrades.
4 BR
2.5 BA
2 GR
2,642 SQ FT
Claim this listing to update information, get access to exclusive tools and more!

Floor Plan 1/1
Overview
1 Half Bathroom
2 Bathrooms
2 Car Garage
2 Stories
2642 Sq Ft
4 Bedrooms
Multi Family
138 Scotland Lane (Andrews II - Finished Basement) Home Info
Newly constructed luxury Townhome located in Seneca Hills community. This home offers 4 bedrooms, a 2-car attached garage, a finished basement and a composite 10X4 cantilevered deck. There are also many upgrades included, including upgraded kitchen cabinets, stainless steel appliances, Quartz countertops, large island, 9ft ceilings, LVP flooring throughout the main level, and much more! Located a mile away from Historic Harmony with shopping, restaurants, and entertainment, and minutes ways from Seneca Valley High School, I 79 and Rt 19. This Townhome community is a must see!
Floor plan center
View floor plan details for this property.
- Floor Plans
- Exterior Images
- Interior Images
- Other Media
Neighborhood
Community location & sales center
101 Scotland Lane
Harmony, PA 16037
101 Scotland Lane
Harmony, PA 16037
888-790-3488
Schools near Seneca Hills
- Seneca Valley School District
- Connoquenessing Valley Elementary School
- Seneca Valley Middle School
Actual schools may vary. Contact the builder for more information.
Amenities
Home details
Now building
This home is currently under construction at 138 Scotland Lane and will soon be available for move-in at Seneca Hills. Contact D.R. Horton today to lock in your options!
Nearby schools
Seneca Valley School District
Elementary school. Grades KG to 4.
- Public school
- Teacher - student ratio: 1:14
- Students enrolled: 744
300 S Pittsburgh St, Zelienople, PA, 16063
724-452-8280
Elementary-Middle-High school. Grades KG to 12.
- Public school
- Students enrolled: 50
126 Seneca School Rd, Harmony, PA, 16037
724-452-6040
Actual schools may vary. We recommend verifying with the local school district, the school assignment and enrollment process.
Neighborhood amenities
Northgate Bi-Lo Foods & Pharmacy
1.32 miles away
115 Perry Hwy
South West Butler County Food
2.45 miles away
557 Perry Hwy
Evans City Comm Food Cupboard
4.38 miles away
202 Van Buren St
Cal's General Store
7.72 miles away
1250 Perry Hwy
Giant Eagle
7.83 miles away
289 Route 288
Lagerhaus Bakery
0.97 mile away
534 Main St
Tin Man Sweets
1.36 miles away
100 Perry Hwy
Health Naturale
1.36 miles away
114 Perry Hwy
Tin Man Sweets Bake Shoppe
1.77 miles away
205 Main St
Baldinger's Market
2.18 miles away
519 Perry Way
Domino's
0.70 mile away
115 Perry Highway Route 19 N
The Ridge Pub & Restaurant
0.70 mile away
135 McNulty LN Strawberry Ridg
Harmony Inn
0.91 mile away
230 Mercer St
The Shubrewery
0.93 mile away
733 Spring St
Neff Haus Ice Cream
1.01 miles away
550 Main St
Wunderbar Coffee House
0.84 mile away
253 Mercer St
Spring & Main Cafe
1.64 miles away
109 N Main St
Dunkin'
1.77 miles away
301 U.S. 19
Coffee Brake
4.10 miles away
111 E Main St
Dunkin'
8.19 miles away
20411 Route 19
Moon Phases & Co Boutique
0.97 mile away
528 Main St
Harry's Joint
1.36 miles away
100 Perry Hwy
Whitey's General Store & Clothing
1.70 miles away
137 S Main St
Boutique 16063
1.70 miles away
200 S Main St
One Enchanted Evening
2.61 miles away
22406 Perry Hwy
Fisher's Bar
1.70 miles away
131 S Main St
Three B's Lounge
1.83 miles away
309 S Main St
Bakers Backstreet Tavern
4.20 miles away
113 Jefferson St
T J's Hideaway
5.38 miles away
346 Spithaler School Rd
North Park Lounge Cranberry
6.79 miles away
20810 Route 19
Please note this information may vary. If you come across anything inaccurate, please contact us.
Builder details
D.R. Horton
In 1978, D.R. Horton broke ground on our first home in Fort Worth, Texas. Since that day, the company has defined its success not by bricks and mortar, but by the satisfaction of the families that make our houses their homes. Our foundation is a single, guiding principle: a value-first dedication to the individual needs of each and every one of our nation’s homebuyers.
From first-time homebuyers to empty nesters, our family of brands provides a home for every stage in life. Our highly-trained, market experts are where you want to live, from New Jersey to Hawaii, providing unique, personalized services tailored to your individual needs. But the real value comes from the quality construction we put into every home, and the peace of mind that comes with a premium-backed warranty from America’s Number One Homebuilder.
We’ve come a long way, and while more people choose our family of brands over any other builder in the country, we never forget the most important thing of all – the families that choose us for their place to call home.
So continue to live out those dreams, America, and know we’ll be here for you every step of the way.
More new homes in Harmony, Pennsylvania
138 Scotland Lane (Andrews II - Finished Basement) by D.R. Horton
saved to favorites!
To see all the homes you’ve saved, visit the My Favorites section of your account.
Discover More Great Communities
Select additional listings for more information
Way to Go!
An agent will be in contact soon!
