1308 EIDSON STREET (Aria)
Under Construction
Athens, AL 35611
Home by D.R. Horton
at Water's Edge
Last updated 20 hours ago
The Price Range displayed reflects the base price of the homes built in this community.
You get to select from the many different types of homes built by this Builder and personalize your New Home with options and upgrades.
3 BR
2 BA
2 GR
1,683 SQ FT
Claim this listing to update information, get access to exclusive tools and more!

Floor Plan 1/1
Overview
1 Story
Single Family
1308 EIDSON STREET (Aria) Home Info
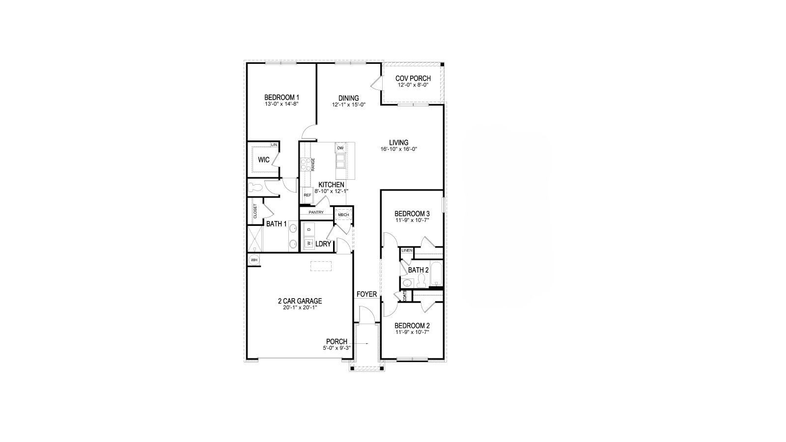
Welcome to 1308 Eidson Street, one of our new homes at Water's Edge in Athens, Alabama. This Aria floorplan is a 3-bedroom, 2-bathroom home, offers over 1,600 square feet of comfortable living. This single-story layout optimizes living space with an open concept kitchen overlooking the living area, dining room, porch. This home includes luxury vinyl plank in all the common and wet areas. With this home, entertaining is a breeze, as this popular home features the living and dining area in the heart of the home and a porch just steps away. The heart of the home lies in the kitchen, which boasts beautiful granite or quartz countertops and stainless steel appliances. Designed with an open floor plan, the kitchen flows effortlessly into the dining room and spacious living room-perfect for entertaining. The living room opens to the semi-private back patio, creating an ideal space for both relaxation and social gatherings. Every bedroom has carpeted floors and a closet in each room. Two additional bedrooms share a second bathroom. This home also features a nice laundry room space with privacy doors and a two-car garage for parking or storage. Like all D.R. Horton homes in Water's Edge, the Aria includes a Home is Connected smart home technology package which allows you to control your home with your smart device while near or away. Pictures may be of a similar home and not necessarily of the subject property. Pictures are representational only. The Aria is a must-see floor pla
Floor plan center
View floor plan details for this property.
- Floor Plans
- Exterior Images
- Interior Images
- Other Media
Neighborhood
Community location & sales center
1235 Eidson Street
Athens, AL 35611
1235 Eidson Street
Athens, AL 35611
888-790-3488
Schools near Water's Edge
- Athens City Schools
Actual schools may vary. Contact the builder for more information.
Amenities
Home details
Now building
This home is currently under construction at 1308 EIDSON STREET and will soon be available for move-in at Water's Edge. Contact D.R. Horton today to lock in your options!
Neighborhood amenities
Walmart Supercenter
0.67 mile away
1011 US Highway 72 E
Augustine Market
0.81 mile away
935 US Highway 72 E
Publix
1.15 miles away
22031 US Highway 72
ALDI
1.18 miles away
115 US Highway 72 E
Hometown Market
1.34 miles away
100 US Highway 31 S
Walmart Bakery
0.67 mile away
1011 US Highway 72 E
Cash & Jack's
1.06 miles away
1406 Lindsay Ln S
Herbs & More
1.57 miles away
622 S Jefferson St
Cake Art Creations By Jane
2.61 miles away
400 Buckeye St
Flowers Bakery Company of Birmingham LLC
3.82 miles away
25282 Will McComb Dr
Smoothie King
0.20 mile away
1260 US Highway 72 E
Hunt Brothers Pizza
0.26 mile away
1100 US Highway 72 E
Bojangles'
0.27 mile away
1316 US Highway 72 E
Chipotle Mexican Grill
0.27 mile away
1289 US Highway 72 E
Chick-fil-A
0.28 mile away
1291 US Highway 72 E
Starbucks
0.23 mile away
1286 US Highway 72 E
K May Donuts
0.24 mile away
1102 US Highway 72 E
Dunkin'
0.83 mile away
1700 US Highway 72 E
Athens Nutrition
1.61 miles away
621 US Highway 72 W
Scooter's Coffeehouse
1.90 miles away
547 US Highway 72 W
Shoe Dept
0.62 mile away
229 French Farms Blvd
Walmart Supercenter
0.67 mile away
1011 US Highway 72 E
Hibbett Sports
0.76 mile away
1001 US Highway 72 E
Factory Connection
1.34 miles away
100 US Highway 31 S
Bealls
1.50 miles away
605 US Highway 72 W
Applebee's Grill + Bar
0.48 mile away
1331 US Highway 72 E
Buffalo Wild Wings
1.19 miles away
22099 US Highway 72
Lake Ida Naturally
1.52 miles away
101 Lindsay Ln S
Mozza Pizza
1.87 miles away
202 S Jefferson St
Salty Cod
1.93 miles away
309 W Market St
Please note this information may vary. If you come across anything inaccurate, please contact us.
Builder details
D.R. Horton
In 1978, D.R. Horton broke ground on our first home in Fort Worth, Texas. Since that day, the company has defined its success not by bricks and mortar, but by the satisfaction of the families that make our houses their homes. Our foundation is a single, guiding principle: a value-first dedication to the individual needs of each and every one of our nation’s homebuyers.
From first-time homebuyers to empty nesters, our family of brands provides a home for every stage in life. Our highly-trained, market experts are where you want to live, from New Jersey to Hawaii, providing unique, personalized services tailored to your individual needs. But the real value comes from the quality construction we put into every home, and the peace of mind that comes with a premium-backed warranty from America’s Number One Homebuilder.
We’ve come a long way, and while more people choose our family of brands over any other builder in the country, we never forget the most important thing of all – the families that choose us for their place to call home.
So continue to live out those dreams, America, and know we’ll be here for you every step of the way.
More new homes in Athens, Alabama
1308 EIDSON STREET (Aria) by D.R. Horton
saved to favorites!
To see all the homes you’ve saved, visit the My Favorites section of your account.
Discover More Great Communities
Select additional listings for more information
Way to Go!
An agent will be in contact soon!
