1910 Crumhorn Ave (Arlington)
Under Construction
Boiling Springs, SC 29316
Home by D.R. Horton
Last updated 1 day ago
The Price Range displayed reflects the base price of the homes built in this community.
You get to select from the many different types of homes built by this Builder and personalize your New Home with options and upgrades.
3 BR
2 BA
2 GR
1,588 SQ FT
Claim this listing to update information, get access to exclusive tools and more!

Floor Plan 1/2
Overview
1 Story
1588 Sq Ft
2 Bathrooms
2 Car Garage
3 Bedrooms
Single Family
1910 Crumhorn Ave (Arlington) Home Info
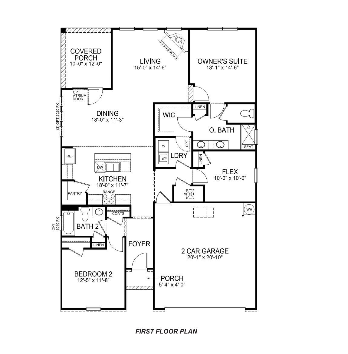
Check out 1910 Crumhorn Avenue, a new home in our Villas at Pine Valley community. This single-story home features a charming and functional design, perfect for those seeking comfortable and accessible living space. This home features an open floor plan, creating a spacious and inviting atmosphere. This home includes two bedrooms, two full bathrooms, and a two-car garage. The moment you step inside the home; you'll be greeted by an inviting foyer which leads you into the center of the home. The dining room seamlessly connects with the family room and kitchen, providing space for you to grow. The chef's kitchen is equipped with modern appliances, pantry closet, and a breakfast bar. The primary suite features an en-suite bathroom with dual vanities and a walk in closet. The additional bedroom has an en-suite bathroom. A flex room is a versatile space that can serve as a media room, home gym, or playroom. Out back is a covered porch perfect for outdoor entertaining or enjoying the weather. Pictures are representative.
Floor plan center
View floor plan details for this property.
- Floor Plans
- Exterior Images
- Interior Images
- Other Media
Neighborhood
Community location & sales center
1903 Crumhorn Avenue
Boiling Springs, SC 29316
1903 Crumhorn Avenue
Boiling Springs, SC 29316
888-790-3488
Schools near The Villas at Pine Valley
- Spartanburg 02 School District
- Sugar Ridge Elementary
- Boiling Springs Middle School
- Boiling Springs High School
Actual schools may vary. Contact the builder for more information.
Amenities
Home details
Now building
This home is currently under construction at 1910 Crumhorn Ave and will soon be available for move-in at The Villas at Pine Valley. Contact D.R. Horton today to lock in your options!
Nearby schools
Spartanburg 02 School District
Elementary school. Grades PK to 5.
- Public school
- Teacher - student ratio: 1:17
- Students enrolled: 813
2055 Hanging Rock Rd, Boiling Springs, SC, 29316
864-578-2884
Middle school. Grades 6 to 8.
- Public school
- Teacher - student ratio: 1:16
- Students enrolled: 1068
4801 Highway 9, Inman, SC, 29349
864-578-5954
High school. Grades 9 to 12.
- Public school
- Teacher - student ratio: 1:19
- Students enrolled: 2671
2251 Old Furnace Rd, Boiling Spgs, SC, 29316
864-578-8465
Actual schools may vary. We recommend verifying with the local school district, the school assignment and enrollment process.
Builder details
D.R. Horton
In 1978, D.R. Horton broke ground on our first home in Fort Worth, Texas. Since that day, the company has defined its success not by bricks and mortar, but by the satisfaction of the families that make our houses their homes. Our foundation is a single, guiding principle: a value-first dedication to the individual needs of each and every one of our nation’s homebuyers.
From first-time homebuyers to empty nesters, our family of brands provides a home for every stage in life. Our highly-trained, market experts are where you want to live, from New Jersey to Hawaii, providing unique, personalized services tailored to your individual needs. But the real value comes from the quality construction we put into every home, and the peace of mind that comes with a premium-backed warranty from America’s Number One Homebuilder.
We’ve come a long way, and while more people choose our family of brands over any other builder in the country, we never forget the most important thing of all – the families that choose us for their place to call home.
So continue to live out those dreams, America, and know we’ll be here for you every step of the way.
More new homes in Boiling Springs, South Carolina
1910 Crumhorn Ave (Arlington) by D.R. Horton
saved to favorites!
To see all the homes you’ve saved, visit the My Favorites section of your account.
Discover More Great Communities
Select additional listings for more information
Way to Go!
An agent will be in contact soon!
