2142 EDWIN DR (Asheville)
Under Construction
Chesapeake, VA 23322
Home by D.R. Horton
Last updated 21 hours ago
The Price Range displayed reflects the base price of the homes built in this community.
You get to select from the many different types of homes built by this Builder and personalize your New Home with options and upgrades.
3 BR
3 BA
2 GR
1,986 SQ FT
Claim this listing to update information, get access to exclusive tools and more!

Floor Plan 1/2
Overview
1 Story
1986 Sq Ft
2 Car Garage
3 Bathrooms
3 Bedrooms
Single Family
2142 EDWIN DR (Asheville) Home Info
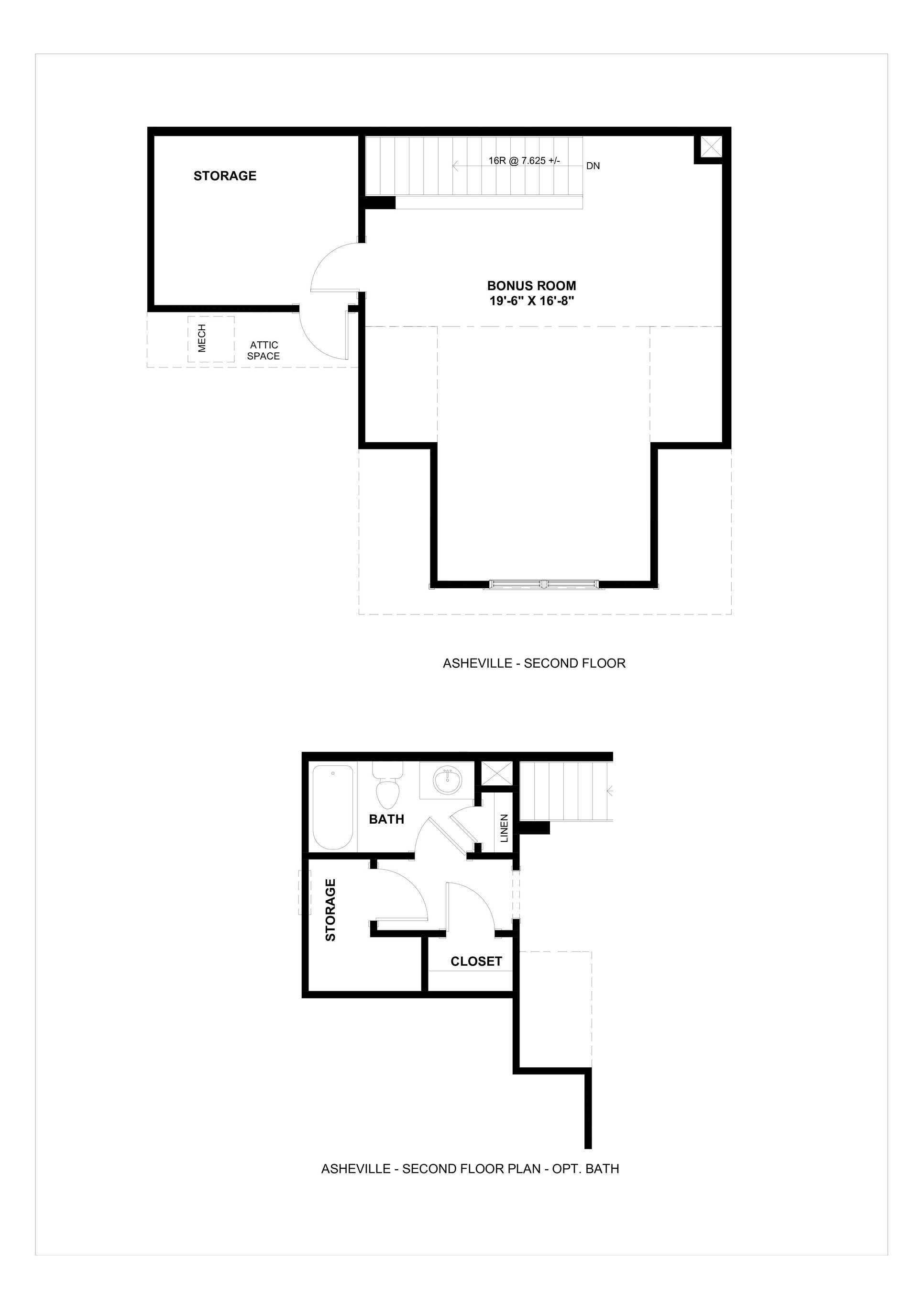
The Asheville is a beautifully designed quad-style home offering 1,986 square feet of single-level living at its finest. Featuring three spacious bedrooms and three full bathrooms, this home exudes a charming cottage-like feel that's perfect for comfortable living. A welcoming covered front porch leads into a spacious living room with a cozy fireplace, setting the tone for relaxation. The heart of the home is the open-concept kitchen, which is conveniently located near the dining room, pantry, laundry room, and direct access to the two-car garage. The modern kitchen is accented with Shaker-style cabinets, quartz countertops, a stylish tile backsplash, and high-end stainless steel appliances. The primary bedroom boasts a luxurious ensuite bathroom with a spacious walk-in closet, tiled shower with a glass enclosure, counter-height vanity with double sinks, and a separate water closet for added privacy. For guests or a home office, the secondary bedroom is complemented by an adjacent full bathroom, ensuring both comfort and convenience. An upstairs bonus room/bedroom suite with full bath and closet offers ample additional living space or guest space when you need it! This home is perfect for those seeking a balance of style and functionality with easy living and modern amenities. The photos you see here are for illustration purposes only, interior and exterior features, options, colors and selections will vary from the homes as built.
Floor plan center
View floor plan details for this property.
- Floor Plans
- Exterior Images
- Interior Images
- Other Media
Neighborhood
Community location & sales center
2000 Nicole Ln
Chesapeake, VA 23322
2000 Nicole Ln
Chesapeake, VA 23322
888-355-8096
Schools near Retreat at Edinburgh Farms
- Chesapeake City Public Schools
- Hickory Elementary School
- Hickory Middle School
- Hickory High School
Actual schools may vary. Contact the builder for more information.
Amenities
Home details
Now building
This home is currently under construction at 2142 EDWIN DR and will soon be available for move-in at Retreat at Edinburgh Farms. Contact D.R. Horton today to lock in your options!
Nearby schools
Chesapeake City Public Schools
Elementary school. Grades PK to 5.
- Public school
- Teacher - student ratio: 1:16
- Students enrolled: 585
109 Benefit Rd, Chesapeake, VA, 23322
757-421-7080
Middle school. Grades 6 to 8.
- Public school
- Teacher - student ratio: 1:13
- Students enrolled: 1336
1997 Hawk Blvd, Chesapeake, VA, 23322
757-421-0468
High school. Grades 9 to 12.
- Public school
- Teacher - student ratio: 1:14
- Students enrolled: 1581
1996 Hawk Blvd, Chesapeake, VA, 23322
757-421-4295
Actual schools may vary. We recommend verifying with the local school district, the school assignment and enrollment process.
Neighborhood amenities
Walmart Supercenter
0.20 mile away
201 Hillcrest Pkwy
Harris Teeter
2.41 miles away
237 Hanbury Rd E
Precise Auto Corp
3.37 miles away
625 Corby Glen Ave
Food Lion
3.46 miles away
717 Battlefield Blvd S
Walmart Neighborhood Market
4.39 miles away
673 Cedar Rd
Walmart Bakery
0.20 mile away
201 Hillcrest Pkwy
Sweethart Cakes & Creations
3.97 miles away
741 Denver Ave
Lady Marmalade
4.17 miles away
309 Johnstown Rd
Sharon's Cake Design
4.36 miles away
318 Battlefield Blvd S
Walmart Bakery
4.39 miles away
673 Cedar Rd
Subway
0.20 mile away
201 Hillcrest Pkwy
J S & J Resturants Inc
0.28 mile away
209 Hillcrest Pkwy
McDonald's
0.28 mile away
209 Hillcrest Pkwy
Dunkin'
0.31 mile away
215 Hillcrest Pkwy
Arby's
0.35 mile away
225 Hillcrest Pkwy
Dunkin'
0.31 mile away
215 Hillcrest Pkwy
Starbucks
0.53 mile away
233 Carmichael Way
Starbucks
2.48 miles away
249 Hanbury Rd E
Taxus Street Coffee
3.03 miles away
845 Battlefield Blvd S
Starbucks
4.11 miles away
201 Carmichael Way
Walmart Supercenter
0.20 mile away
201 Hillcrest Pkwy
Target
0.53 mile away
233 Carmichael Way
Great Exchange
2.28 miles away
1116 Hillwell Rd
Citrine Bride
2.41 miles away
237 Hanbury Rd E
Cato Fashions
4.50 miles away
237 Battlefield Blvd S
Gran Rodeo Mexican Bar & Grill
0.65 mile away
236 Carmichael Way
Big Ugly Brewing
3.03 miles away
845 Battlefield Blvd S
Buffalo Wild Wings
4.11 miles away
216 Carmichael Way
Chili's
4.50 miles away
237 Battlefield Blvd S
Please note this information may vary. If you come across anything inaccurate, please contact us.
Builder details
D.R. Horton
In 1978, D.R. Horton broke ground on our first home in Fort Worth, Texas. Since that day, the company has defined its success not by bricks and mortar, but by the satisfaction of the families that make our houses their homes. Our foundation is a single, guiding principle: a value-first dedication to the individual needs of each and every one of our nation’s homebuyers.
From first-time homebuyers to empty nesters, our family of brands provides a home for every stage in life. Our highly-trained, market experts are where you want to live, from New Jersey to Hawaii, providing unique, personalized services tailored to your individual needs. But the real value comes from the quality construction we put into every home, and the peace of mind that comes with a premium-backed warranty from America’s Number One Homebuilder.
We’ve come a long way, and while more people choose our family of brands over any other builder in the country, we never forget the most important thing of all – the families that choose us for their place to call home.
So continue to live out those dreams, America, and know we’ll be here for you every step of the way.
More new homes in Chesapeake, Virginia
2142 EDWIN DR (Asheville) by D.R. Horton
saved to favorites!
To see all the homes you’ve saved, visit the My Favorites section of your account.
Discover More Great Communities
Select additional listings for more information
Way to Go!
An agent will be in contact soon!
