Atlanta Plan
Ready to build
813 CR 313, Jarrell TX 76537
Home by D.R. Horton
Last updated 2 days ago
The Price Range displayed reflects the base price of the homes built in this community.
You get to select from the many different types of homes built by this Builder and personalize your New Home with options and upgrades.
3 BR
2 BA
2 GR
1,156 SQ FT
Claim this listing to update information, get access to exclusive tools and more!

Floorplan 0 1/1
Overview
1 Story
1156 Sq Ft
2 Bathrooms
2 Car Garage
3 Bedrooms
Single Family
Atlanta Plan Info
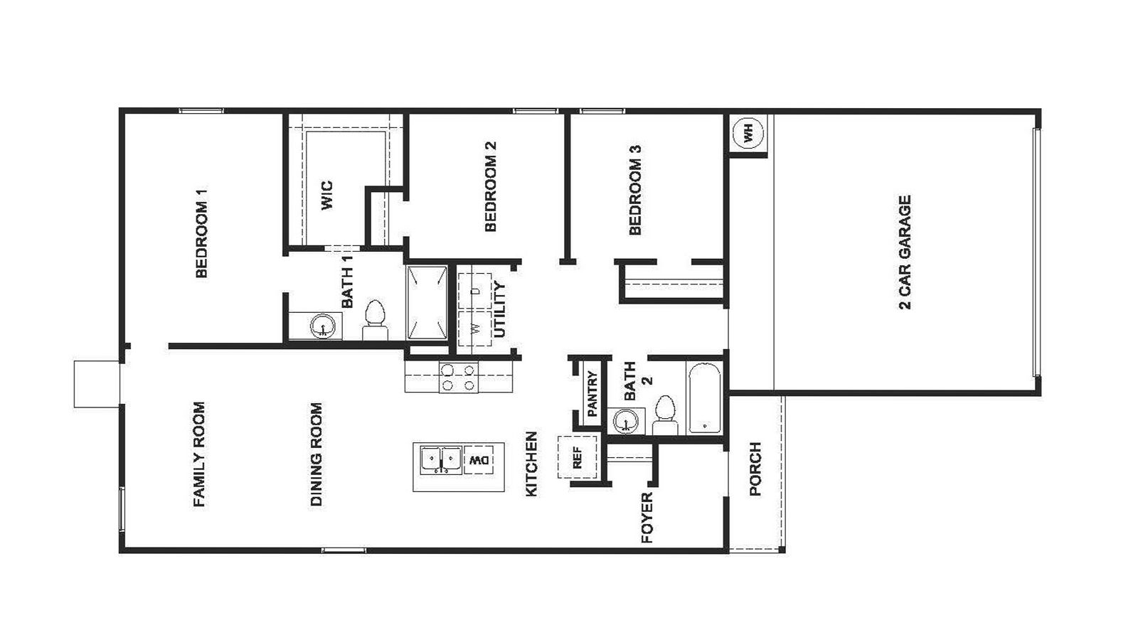
Welcome to the Atlanta, a beautifully designed one-story home in The Villages at Schwertner Ranch community in Jarrell, TX. Offering approximately 1,156 sq. ft., this thoughtfully crafted 3-bedroom, 2-bath layout is the perfect blend of comfort, style, and functionality. As you step through the foyer, you'll find a convenient coat closet before entering the open-concept heart of the home - the kitchen and family room. The kitchen features a spacious island, stainless steel appliances, and plenty of counter space for both meal prep and casual dining. Just off the kitchen are two secondary bedrooms and a secondary bathroom, with easy access to the laundry room. Natural light fills the living room from large rear-facing windows, creating a warm and inviting space for relaxing or entertaining. Tucked away off the living room, the primary bedroom offers a peaceful retreat, complete with a walk-in shower and walk-in closet for plenty of storage space. Every D.R. Horton home has smart home technology built in. Feel connected as you control and secure your home through the Qolsys smart panel, through your phone, or even with your voice. Discover how the Atlanta can be the perfect place to call home. Contact us today to make it yours at The Villages at Schwertner Ranch.
Floor plan center
View floor plan details for this property.
- Floor Plans
- Exterior Images
- Interior Images
- Other Media
Neighborhood
Community location & sales center
813 CR 313
Jarrell, TX 76537
813 CR 313
Jarrell, TX 76537
888-355-8096
Schools near The Villages at Schwertner Ranch
- Jarrell Independent School District
- Jarrell Elementary School
- Jarrell Middle School
- Jarrell High School
Actual schools may vary. Contact the builder for more information.
Amenities
Home details
Ready to build
Build the home of your dreams with the Atlanta plan by selecting your favorite options. For the best selection, pick your lot in The Villages at Schwertner Ranch today!
Nearby schools
Jarrell Independent School District
Elementary school. Grades PK to 5.
- Public school
- Teacher - student ratio: 1:14
- Students enrolled: 785
1615 County Road 313, Jarrell, TX, 76537
512-746-2170
Middle school. Grades 6 to 8.
- Public school
- Teacher - student ratio: 1:14
- Students enrolled: 741
101 E Avenue F, Jarrell, TX, 76537
512-746-4180
High school. Grades 9 to 12.
- Public school
- Teacher - student ratio: 1:13
- Students enrolled: 868
1100 W Fm 487, Jarrell, TX, 76537
512-746-2188
Actual schools may vary. We recommend verifying with the local school district, the school assignment and enrollment process.
Neighborhood amenities
Bavarian Forest Bakery
1.62 miles away
12820 Interstate 35 Service Rd
Maldonado's Bakery
1.62 miles away
105 N 5th St
Resturaunte Mexicano Grille
0.63 mile away
205 Sonterra Blvd
Golden Chick
0.77 mile away
11620 N Interstate 35
McDonald's
0.78 mile away
11640 N Interstate 35
Burger King
0.83 mile away
11710 N Interstate 35
Denny's
0.83 mile away
11710 N Interstate 35
Daylight Donuts
0.95 mile away
531 Town Center Loop
Daylight Donuts
1.62 miles away
11759 N Interstate 35
Starbucks
1.62 miles away
109 Slowbes Way
Lucky Penny Lounge
0.63 mile away
305 Limestone Ter
Speedway Inn
1.62 miles away
12803 N Interstate 35
Wriggley's Pub
9.29 miles away
1530 Sun City Blvd
Please note this information may vary. If you come across anything inaccurate, please contact us.
Builder details
D.R. Horton
In 1978, D.R. Horton broke ground on our first home in Fort Worth, Texas. Since that day, the company has defined its success not by bricks and mortar, but by the satisfaction of the families that make our houses their homes. Our foundation is a single, guiding principle: a value-first dedication to the individual needs of each and every one of our nation’s homebuyers.
From first-time homebuyers to empty nesters, our family of brands provides a home for every stage in life. Our highly-trained, market experts are where you want to live, from New Jersey to Hawaii, providing unique, personalized services tailored to your individual needs. But the real value comes from the quality construction we put into every home, and the peace of mind that comes with a premium-backed warranty from America’s Number One Homebuilder.
We’ve come a long way, and while more people choose our family of brands over any other builder in the country, we never forget the most important thing of all – the families that choose us for their place to call home.
So continue to live out those dreams, America, and know we’ll be here for you every step of the way.
More new homes in Jarrell, Texas
Atlanta Plan by D.R. Horton
saved to favorites!
To see all the homes you’ve saved, visit the My Favorites section of your account.
Discover More Great Communities
Select additional listings for more information
Way to Go!
An agent will be in contact soon!
