34327 Red Oak Ct (BRENTWOOD)
Under Construction
Millville, DE 19967
Home by D.R. Horton
Last updated 2 days ago
The Price Range displayed reflects the base price of the homes built in this community.
You get to select from the many different types of homes built by this Builder and personalize your New Home with options and upgrades.
3 BR
2.5 BA
2 GR
1,676 SQ FT
Claim this listing to update information, get access to exclusive tools and more!

Floor Plan 1/2
Overview
1 Half Bathroom
1676 Sq Ft
2 Bathrooms
2 Car Garage
2 Stories
3 Bedrooms
Multi Family
34327 Red Oak Ct (BRENTWOOD) Home Info
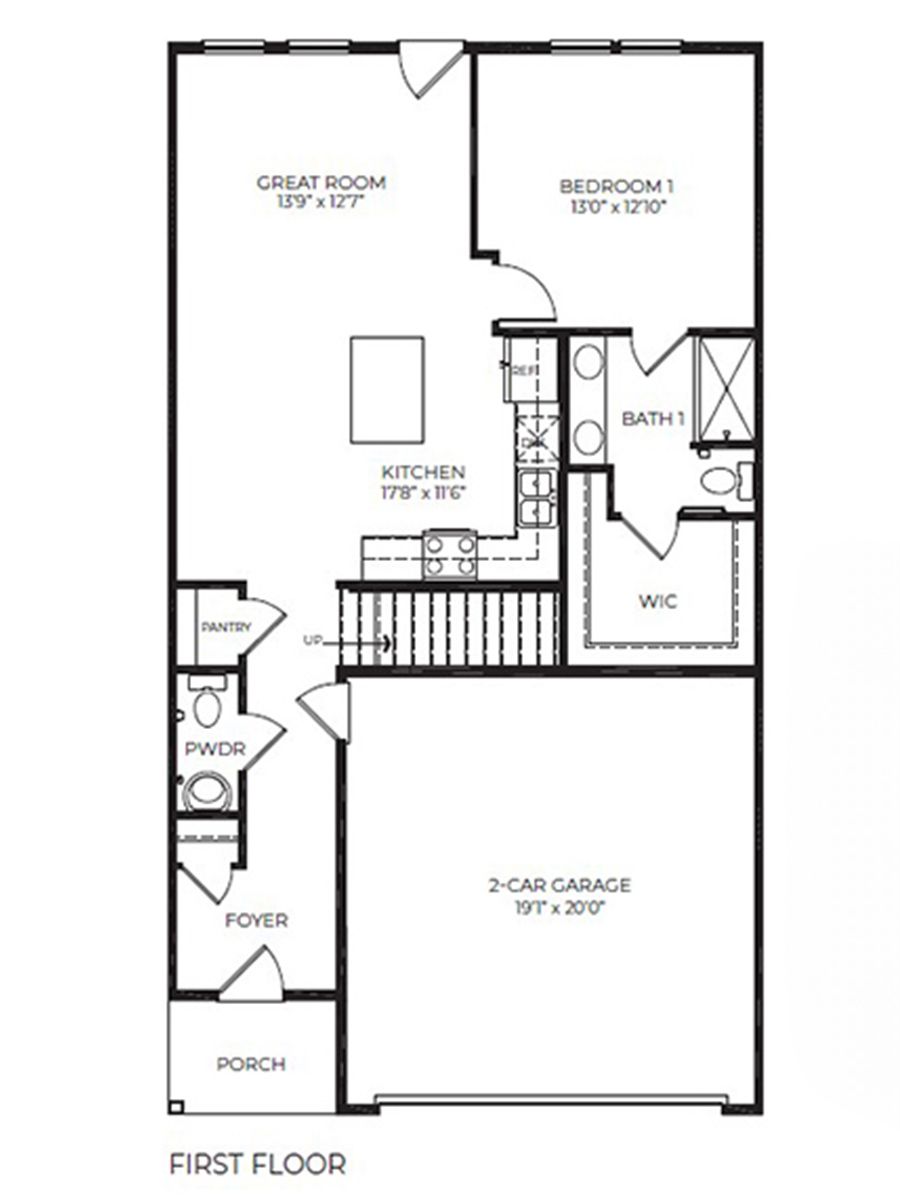
Located at 34327 Red Oak Court in the village of Belle Shoal, this new end-of-unit townhome on a corner homesite in Millville by the Sea offers modern living in Millville, DE. The Brentwood is a stunning 1,676 square foot two-story townhome designed for open-concept living that boasts three bedrooms, two and a half baths, and a convenient two-car garage. This home is the epitome of modern comfort. As you step into the welcoming foyer, you'll find a handy coat closet and easy access to a well-placed powder room. The heart of the home, a beautifully designed eat-in kitchen, beckons with stylish gray cabinetry, a spacious center island perfect for casual dining, luxurious quartz countertops, a pantry closet, and top-of-the-line stainless-steel appliances. The kitchen seamlessly flows into the great room, offering not only a delightful space for relaxation but also direct access to your backyard. Retreat to the generously sized first-floor bedroom tucked away at the rear of the home. Here, an oversized walk-in closet provides ample storage, and laundry hook-ups, while the ensuite bathroom exudes sophistication with its double bowl vanity and spacious shower. Ascending the discreetly positioned stairs, you'll reach a landing area that unveils the convenience of an upstairs laundry closet. Two spacious guest bedrooms await, offering comfortable accommodation for family or guests. A second full bathroom and a linen closet add to the upstairs amenities. Your new home comes
Floor plan center
View floor plan details for this property.
- Floor Plans
- Exterior Images
- Interior Images
- Other Media
Neighborhood
Community location & sales center
31023 Coastal Living Lane
Millville, DE 19967
31023 Coastal Living Lane
Millville, DE 19967
888-790-3488
Schools near Belle Shoal at Millville by the Sea
- Indian River School District
Actual schools may vary. Contact the builder for more information.
Amenities
Home details
Now building
This home is currently under construction at 34327 Red Oak Ct and will soon be available for move-in at Belle Shoal at Millville by the Sea. Contact D.R. Horton today to lock in your options!
Neighborhood amenities
Hocker's Grocery & Deli
0.94 mile away
34960 Atlantic Ave
Hocker's SuperCenter
0.94 mile away
34960 Atlantic Ave
Good Earth Market
1.14 miles away
31806 Good Earth Ln
Giant Food
1.46 miles away
38069 Town Center Dr
Weis Markets
1.56 miles away
36731 Old Mill Rd
Morning Buns Bake Shop
1.62 miles away
35715 Atlantic Ave
Beach Break Bakery & Cafe
2.66 miles away
7 Canal Ct
Three Blonde Bakers
3.62 miles away
5 Garfield Pkwy
Nadine's Coastal Cupcakes & Sweets
4.68 miles away
38130 Jetty Ln
Sweet Disposition
5.12 miles away
38290 London Ave
Birch Tree Cafe
0.99 mile away
31826 Good Earth Ln
Shaka Shack LLC
1.02 miles away
35308 Atlantic Ave
Al Casapulla's Subs Steaks-PZZ
1.11 miles away
35265 Atlantic Ave
Agape Creamery LLC
1.21 miles away
35287 Atlantic Ave
Perucci's
1.31 miles away
35507 Atlantic Ave
Starbucks
1.46 miles away
38069 Town Center Dr
Fractured Prune
1.57 miles away
210 Town Center Dr
Drifting Grounds Coffee House
1.84 miles away
117 Atlantic Ave
Dunkin'
4.12 miles away
33364 S Pennsylvania Ave
Starbucks
4.68 miles away
31221 Americana Pkwy
R Lynne Boutique
1.82 miles away
35849 Atlantic Ave
The Coastal Cottage
1.96 miles away
101 Atlantic Ave
Lete
2.44 miles away
1934 Route 1
Crazy Ladyz
2.69 miles away
9 Atlantic Ave
Delaware Surf Co
2.73 miles away
7 Town Rd
Hooked Up Ale House & Raw Bar
1.46 miles away
38069 Town Center Dr
Sedona
4.05 miles away
26 N Pennsylvania Ave
Bethany Boathouse
4.09 miles away
39817 Hickman Plaza Rd
Scotty's Bayside Tavern
4.61 miles away
36666 Bluewater Run W
Signatures at Bayside
4.88 miles away
12021 N Haven Dr
Please note this information may vary. If you come across anything inaccurate, please contact us.
Builder details
D.R. Horton
In 1978, D.R. Horton broke ground on our first home in Fort Worth, Texas. Since that day, the company has defined its success not by bricks and mortar, but by the satisfaction of the families that make our houses their homes. Our foundation is a single, guiding principle: a value-first dedication to the individual needs of each and every one of our nation’s homebuyers.
From first-time homebuyers to empty nesters, our family of brands provides a home for every stage in life. Our highly-trained, market experts are where you want to live, from New Jersey to Hawaii, providing unique, personalized services tailored to your individual needs. But the real value comes from the quality construction we put into every home, and the peace of mind that comes with a premium-backed warranty from America’s Number One Homebuilder.
We’ve come a long way, and while more people choose our family of brands over any other builder in the country, we never forget the most important thing of all – the families that choose us for their place to call home.
So continue to live out those dreams, America, and know we’ll be here for you every step of the way.
More new homes in Millville, Delaware
34327 Red Oak Ct (BRENTWOOD) by D.R. Horton
saved to favorites!
To see all the homes you’ve saved, visit the My Favorites section of your account.
Discover More Great Communities
Select additional listings for more information
Way to Go!
An agent will be in contact soon!
