Briarfield Lot 34 RH
Under Construction
Blacklick, OH 43004
Home by Romanelli and Hughes Homes
at Briarfield
The Price Range displayed reflects the base price of the homes built in this community.
You get to select from the many different types of homes built by this Builder and personalize your New Home with options and upgrades.
2 BR
3 BA
3 GR
2,662 SQ FT
Claim this listing to update information, get access to exclusive tools and more!

Exterior 1/2
Overview
Single Family
Briarfield Lot 34 RH Home Info
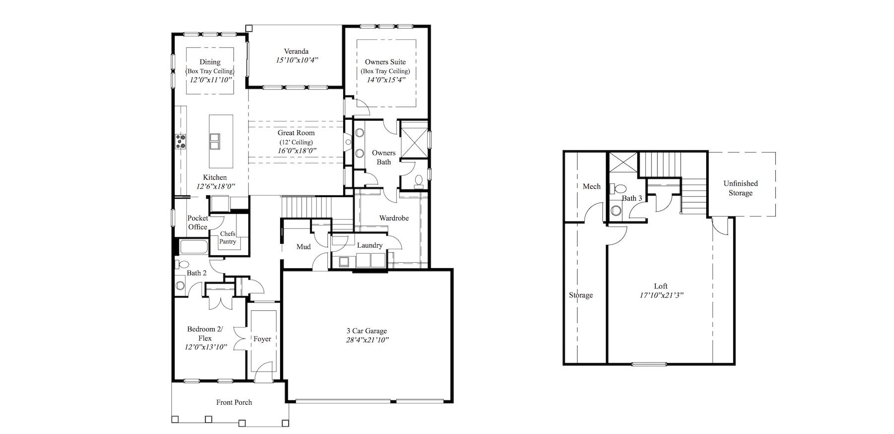
10 ceilings and 8 doors are throughout the first floor. The kitchen includes a pocket office and chefs pantry. The owners suite features a bath w/oversized shower optional pocket door and a huge wardrobe w/optional laundry access. A 1st flr guest bedroom/flex room w/french doors a covered veranda and a large upper level loft w/full bath & extra storage complete this beautiful home.
Neighborhood
Community location & sales center
<br/> Blacklick, OH 43004
<br/> Blacklick, OH 43004
888-790-3488
Schools near Briarfield
- Gahanna-jefferson City Schools
- Blacklick Elementary School
- South Middle School
- Lincoln High School
- Licking Heights Local Schools
Actual schools may vary. Contact the builder for more information.
Amenities
The Briarfield community in Gahanna Jefferson Township, Franklin County, Ohio is home to a variety of schools that serve the needs of students in the area. The schools in the Briarfield community are Briarfield Elementary School, Briarfield Middle School, Gahanna Lincoln High School. The Briarfield community in Gahanna Jefferson Township is home to a number of historical landmarks, natural parks and recreation areas, museums, and other destinations that are perfect for a day trip or weekend getaway.
The Briarfield community in Gahanna Jefferson Township, Ohio is home to many shopping malls and restaurants that cater to the needs of the residents. One of the most popular shopping destinations in the area is the Easton Town Center, which houses over 250 stores and restaurants. The Easton Town Center is a great place to find anything you need, whether it’s a new outfit or a delicious meal. If you are looking for a place to call home that has everything you need, Briarfield is the perfect community for you More info about Briarfield
Home details
Now building
This home is currently under construction at Briarfield Lot 34 RH and will soon be available for move-in at Briarfield. Contact Romanelli and Hughes Homes today to lock in your options!
Community & neighborhood
Community services & perks
- Community Center
Nearby schools
Gahanna-jefferson City Schools
Blacklick Elementary School
Elementary school. Grades PK to 5.
Public school
Teacher - student ratio: 1:20
Students enrolled: 641
614-759-5100
6540 Havens Corners Rd, Blacklick, OH, 43004
South Middle School
Middle school. Grades 6 to 8.
Public school
Teacher - student ratio: 1:18
Students enrolled: 611
614-337-3730
349 Shady Spring Dr, Gahanna, OH, 43230
Lincoln High School
High school. Grades 9 to 12.
Public school
Teacher - student ratio: 1:19
Students enrolled: 2363
614-478-5500
140 S Hamilton Rd, Gahanna, OH, 43230
Actual schools may vary. We recommend verifying with the local school district, the school assignment and enrollment process.
Neighborhood amenities
Kroger
0.79 mile away
7000 E Broad St
Yummy Nummyz LLC
0.79 mile away
6956 E Broad St
Giant Eagle
1.11 miles away
6867 E Broad St
Meijer
1.29 miles away
8000 E Broad St
ALDI
1.71 miles away
8301 E Broad St
C Krueger's
0.57 mile away
6845 Commerce Court Dr
Aunt Millie's Bakeries
0.61 mile away
6720 Commerce Court Dr
Kroger Bakery
0.79 mile away
7000 E Broad St
GNC
1.11 miles away
6843 E Broad St
Meijer Bakery
1.29 miles away
8000 E Broad St
Stadz Pizzeria
0.40 mile away
6755 Taylor Rd
Domino's
0.79 mile away
6928 E Broad St
Peking House
0.79 mile away
6946 E Broad St
Subway
0.79 mile away
6994 E Broad St
Bob Evans
0.80 mile away
50 Reynoldsburg New Albany Rd
Starbucks
0.79 mile away
7000 E Broad St
Krispy Kreme Doughnuts
0.88 mile away
6990 E Broad St
Tim Hortons
1.27 miles away
6532 E Broad St
Starbucks
1.46 miles away
8100 E Broad St
Starbucks
1.51 miles away
8070 E Broad St
Keene's
1.18 miles away
274 Shallotte Dr
Target
1.46 miles away
8100 E Broad St
Torrid
1.47 miles away
8123 E Broad St
Cato Fashions
1.56 miles away
8122 E Broad St
maurices
1.66 miles away
8157 E Broad St
Lantern Chinese Restaurant Inc
0.87 mile away
7163 E Broad St
Donericks Pub House
1.11 miles away
6935 E Broad St
Winking Lizard Tavern
1.34 miles away
7995 E Broad St
Wings and Rings
1.57 miles away
6325 E Broad St
Robey's Pub
2.69 miles away
1318 Aida Dr
Please note this information may vary. If you come across anything inaccurate, please contact us.
Builder details
Romanelli and Hughes Homes
More new homes in Blacklick, Ohio
Briarfield Lot 34 RH by Romanelli and Hughes Homes
saved to favorites!
To see all the homes you’ve saved, visit the My Favorites section of your account.
Discover More Great Communities
Select additional listings for more information
Way to Go!
An agent will be in contact soon!