133 Red Deer Trace Unit 3 (BUCKHEAD PALM B)
Under Construction
Dothan, AL 36301
Home by D.R. Horton
Last updated 1 day ago
The Price Range displayed reflects the base price of the homes built in this community.
You get to select from the many different types of homes built by this Builder and personalize your New Home with options and upgrades.
3 BR
2.5 BA
1 GR
1,490 SQ FT
Claim this listing to update information, get access to exclusive tools and more!

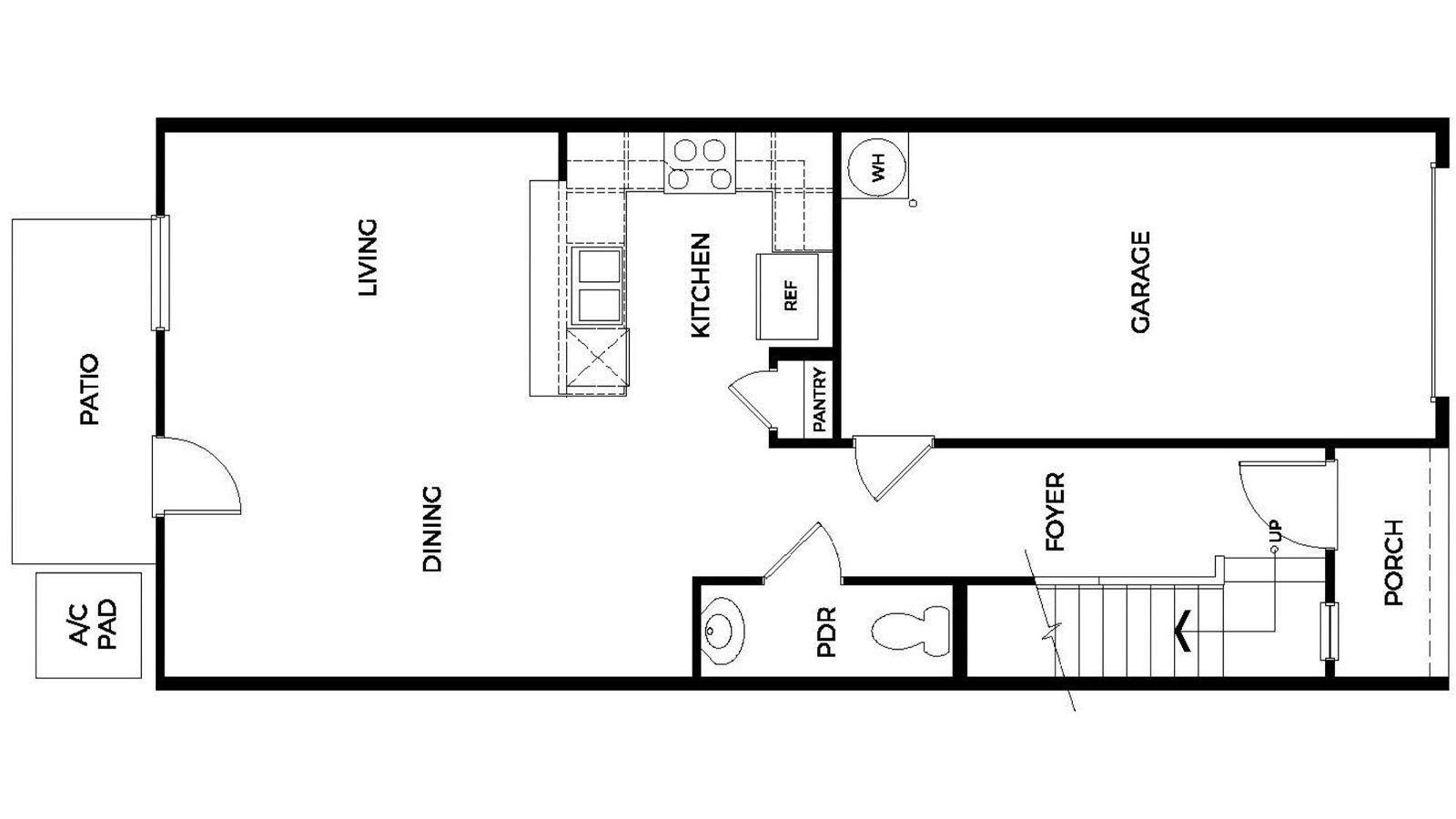
Floor Plan 1/2
Overview
1 Car Garage
1 Half Bathroom
1490 Sq Ft
2 Bathrooms
2 Stories
3 Bedrooms
Multi Family
133 Red Deer Trace Unit 3 (BUCKHEAD PALM B) Home Info
Welcome to 133 Red Deer Trace Unit 3 at our Buckhead community featuring two-story Townhomes in Dothan, Alabama. These townhomes offer 3-bedrooms, 2.5-bathrooms, and 1-car garage with over 1,400 square feet of living. When you enter the home, you'll be greeted by an open-concept first floor with a great room, dining area, and kitchen. The kitchen features quartz countertops, stainless steel appliances and a spacious walk-in pantry which are sure to make meal prep easy. The island is the perfect spot for your guests to sit and visit. Walking through the home, you can enter the 1-car garage near the kitchen. The first floor also features a powder room and outdoor patio looking out to your backyard. As we head up to the second floor, we are greeted to your right with the primary bedroom that features a bathroom as well as two additional bedrooms, a full bathroom, and a laundry area. In every bedroom you'll have carpeted floors and a closet. Whether these rooms become bedrooms, office spaces, or other bonus rooms, there is sure to be comfort. All of Buckhead Townhomes includes a Home is Connected smart home technology package which allows you to control your home with your smart device while near or away. Pictures may be of a similar home and not necessarily of the subject property. Pictures are representational only. Talk to us today to find out how you can make this Townhome your new home.
Floor plan center
View floor plan details for this property.
- Floor Plans
- Exterior Images
- Interior Images
- Other Media
Neighborhood
Sales office location
117 Fawnfield Lane Unit 1
Dothan, AL 36301
117 Fawnfield Lane Unit 1
Dothan, AL 36301
888-790-3488
Schools near Buckhead Townhomes
- Dothan City Schools
- Dothan City Early Education Center
- Selma Street Elementary School
- Dothan Preparatory Academy
- Dothan High School
Actual schools may vary. Contact the builder for more information.
Amenities
Home details
Now building
This home is currently under construction at 133 Red Deer Trace Unit 3 and will soon be available for move-in at Buckhead Townhomes. Contact D.R. Horton today to lock in your options!
Nearby schools
Dothan City Schools
Elementary school. Grades PK to PK.
- Public school
- Teacher - student ratio: 1:14
- Students enrolled: 168
1665 Honeysuckle Rd, Dothan, AL, 36301
334-794-1420
Elementary-Middle school. Grades KG to 6.
- Public school
- Teacher - student ratio: 1:15
- Students enrolled: 413
1501 W Selma St, Dothan, AL, 36301
334-794-1463
Middle-High school. Grades 7 to 9.
- Public school
- Teacher - student ratio: 1:18
- Students enrolled: 1133
1236 South Oates Street, Dothan, AL, 36301
334-794-1400
High school. Grades 10 to 12.
- Public school
- Teacher - student ratio: 1:18
- Students enrolled: 1454
3209 Reeves St, Dothan, AL, 36303
334-794-1410
Actual schools may vary. We recommend verifying with the local school district, the school assignment and enrollment process.
Neighborhood amenities
Walmart Supercenter
0.93 mile away
3300 S Oates St
T C's Petro
1.06 miles away
2329 S Park Ave
Roney's U-Sav Food Outlet
1.49 miles away
1919 S Oates St
Tienda Latina Guatemex
1.83 miles away
1505 S Oates St
Piggly Wiggly
1.85 miles away
767 W Selma St
MidSouth Bank
0.82 mile away
2224 Ross Clark Cir
Walmart Bakery
0.93 mile away
3300 S Oates St
Colonial Bakery Store
1.51 miles away
1870 S Oates St
Flowers Baking Co
2.43 miles away
1735 Ross Clark Cir
Desserts By Jolando
2.87 miles away
545 W Main St
Hunt Brothers Pizza
0.28 mile away
3731 S Park Ave
Taqueria Mi Rancho
0.81 mile away
2413 Ross Clark Cir
Subway
0.81 mile away
2336 Ross Clark Cir
Rodeo Mexican Restaurant-Dothan
0.83 mile away
2240 Ross Clark Cir
Captain D's
0.83 mile away
2236 Ross Clark Cir
Dunkin'
1.10 miles away
2141 Ross Clark Cir
Tropical Smoothie Cafe
2.67 miles away
1640 Ross Clark Cir
Mural City Coffee Co
2.91 miles away
192 S Foster St
Krispy Kreme Doughnuts
3.04 miles away
3095 Ross Clark Cir
Bird & Bean
3.04 miles away
144 N Foster St
Walmart Supercenter
0.93 mile away
3300 S Oates St
Cato Fashions
1.05 miles away
301 W Inez Rd
Shoe Show
1.05 miles away
301 W Inez Rd
Frou Frou Frocks Boutique
1.39 miles away
2355 Hartford Hwy
Sadie Grea Boutique
1.82 miles away
1910 Ross Clark Cir
Rodeo Mexican Restaurant-Dothan
0.83 mile away
2240 Ross Clark Cir
Cowboys
2.05 miles away
4657 S Oates St
Crazy Monkey Bar & Grill
2.24 miles away
2855 Ross Clark Cir
Outback Steakhouse
2.39 miles away
2925 Ross Clark Cir
Applebee's Grill + Bar
2.75 miles away
3050 Ross Clark Cir
Please note this information may vary. If you come across anything inaccurate, please contact us.
Builder details
D.R. Horton
In 1978, D.R. Horton broke ground on our first home in Fort Worth, Texas. Since that day, the company has defined its success not by bricks and mortar, but by the satisfaction of the families that make our houses their homes. Our foundation is a single, guiding principle: a value-first dedication to the individual needs of each and every one of our nation’s homebuyers.
From first-time homebuyers to empty nesters, our family of brands provides a home for every stage in life. Our highly-trained, market experts are where you want to live, from New Jersey to Hawaii, providing unique, personalized services tailored to your individual needs. But the real value comes from the quality construction we put into every home, and the peace of mind that comes with a premium-backed warranty from America’s Number One Homebuilder.
We’ve come a long way, and while more people choose our family of brands over any other builder in the country, we never forget the most important thing of all – the families that choose us for their place to call home.
So continue to live out those dreams, America, and know we’ll be here for you every step of the way.
More new homes in Dothan, Alabama
133 Red Deer Trace Unit 3 (BUCKHEAD PALM B) by D.R. Horton
saved to favorites!
To see all the homes you’ve saved, visit the My Favorites section of your account.
Discover More Great Communities
Select additional listings for more information
Way to Go!
An agent will be in contact soon!
