Burrow Plan
Ready to build
9413 Baron Way, McKinney TX 75071
Home by D.R. Horton
Last updated 22 hours ago
The Price Range displayed reflects the base price of the homes built in this community.
You get to select from the many different types of homes built by this Builder and personalize your New Home with options and upgrades.
4 BR
3 BA
2 GR
2,560 SQ FT
Claim this listing to update information, get access to exclusive tools and more!

Floorplan 0 1/1
Overview
2 Stories
Single Family
Burrow Plan Info
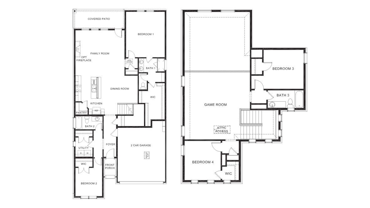
The Burrow is one of our two-story floorplans featured at our Hidden Lakes community in McKinney, TX. The Burrow offers an impressive 2,560 sq. ft. of living space across 4 bedrooms, 3 bathrooms, and a 2-car garage. As you walk through the long foyer to the open layout of the home, you will find the large kitchen that is open to the spacious family room and dining area. The soaring ceilings in the living room are sure to grab your attention. The kitchen features granite or quartz countertops, decorative tile backsplash, stainless steel appliances and a large kitchen island. The main bedroom, bedroom 1, is located downstairs and features a large walk in shower and huge walk in closet. Upstairs you will find a large loft that is open to the living room below. Utilize this space as a media room, game room, or home gym. This home comes included with a professionally designed landscape package and a full irrigation system as well as our Home is Connected® base package that offers devices such as offers devices such as the Amazon Echo Pop, a Video Doorbell, Deako Smart Light Switch, a Honeywell Thermostat, and more. Images are representative of plan and may vary as built. Contact us today and find your home at Hidden Lakes.
Floor plan center
View floor plan details for this property.
- Floor Plans
- Exterior Images
- Interior Images
- Other Media
Neighborhood
Community location & sales center
9413 Baron Way
McKinney, TX 75071
9413 Baron Way
McKinney, TX 75071
888-790-3488
Schools near The Landing at Hidden Lakes
- Prosper Independent School District
- Furr Elementary School
- Hays Middle School
- Rock Hill High School
Actual schools may vary. Contact the builder for more information.
Amenities
Home details
Ready to build
Build the home of your dreams with the Burrow plan by selecting your favorite options. For the best selection, pick your lot in The Landing at Hidden Lakes today!
Nearby schools
Prosper Independent School District
Furr Elementary School
Elementary school. Grades PK to 5
Public school
Class ratio: 1: 14
Enrollment: 880
469-219-2000
551 S Bluestem Dr, Mckinney, TX, 75072
Hays Middle School
Middle school. Grades 6 to 8
Public school
Class ratio: 1: 16
Enrollment: 1699
469-219-2260
14441 Hillcrest Rd, Frisco, TX, 75035
Rock Hill High School
High school. Grades 9 to 12
Public school
Class ratio: 1: 15
Enrollment: 2832
469-219-2300
16061 Coit Rd, Frisco, TX, 75035
Actual schools may vary. We recommend verifying with the local school district, the school assignment and enrollment process.
Neighborhood amenities
Walmart Supercenter
0.25 mile away
1721 N Custer Rd
Sprouts Farmers Market
1.00 miles away
9241 Virginia Pkwy
Wild Fork
1.64 miles away
2351 E University Dr
Tom Thumb
2.25 miles away
6800 Virginia Pkwy
Kroger
2.75 miles away
12221 Custer Rd
Walmart Bakery
0.25 mile away
1721 N Custer Rd
Nutri-West of Texas
1.08 miles away
2479 County Road 856
Einstein Bros Bagels
1.24 miles away
12025 University Dr
Nothing Bundt Cakes
1.66 miles away
2381 E University Dr
Rice & Noodle
0.31 mile away
1521 N Custer Rd
Wingstop
0.31 mile away
1521 N Custer Rd
Whataburger
0.35 mile away
9053 W University Dr
Golden Chick
0.35 mile away
1545 N Custer Rd
B & B Cafe
0.38 mile away
1411 N Custer Rd
Starbucks
0.30 mile away
4261 E University Dr
Dutch Bros Coffee
0.43 mile away
1401 N Custer Rd
I Love Juice Bar-McKinney
0.88 mile away
301 N Custer Rd
Dunkin'
1.04 miles away
116 S Custer Rd
Jai Meladi Donut of Dallas
1.04 miles away
116 S Custer Rd
Claire's Inside Walmart
0.25 mile away
1721 N Custer Rd
Walmart Supercenter
0.25 mile away
1721 N Custer Rd
Luxury Couture LLC
0.30 mile away
4261 E University Dr
Southern Royall Boutique
1.01 miles away
509 Kappa Way
Annie Jax Boutique
1.73 miles away
10617 Broken Spoke Ln
E.J. Wills Gastropub
1.11 miles away
1910 N Stonebridge Dr
Cigar Lounge
2.19 miles away
6840 Virginia Pkwy
Zin Zen Wine Bistro
2.30 miles away
6841 Virginia Pkwy
Mi Chante Mexican Cuisine
2.61 miles away
1090 N Coit Rd
Chili's
3.31 miles away
1081 S Preston Rd
Please note this information may vary. If you come across anything inaccurate, please contact us.
Builder details
D.R. Horton
In 1978, D.R. Horton broke ground on our first home in Fort Worth, Texas. Since that day, the company has defined its success not by bricks and mortar, but by the satisfaction of the families that make our houses their homes. Our foundation is a single, guiding principle: a value-first dedication to the individual needs of each and every one of our nation’s homebuyers.
From first-time homebuyers to empty nesters, our family of brands provides a home for every stage in life. Our highly-trained, market experts are where you want to live, from New Jersey to Hawaii, providing unique, personalized services tailored to your individual needs. But the real value comes from the quality construction we put into every home, and the peace of mind that comes with a premium-backed warranty from America’s Number One Homebuilder.
We’ve come a long way, and while more people choose our family of brands over any other builder in the country, we never forget the most important thing of all – the families that choose us for their place to call home.
So continue to live out those dreams, America, and know we’ll be here for you every step of the way.
More new homes in McKinney, Texas
Burrow Plan by D.R. Horton
saved to favorites!
To see all the homes you’ve saved, visit the My Favorites section of your account.
Discover More Great Communities
Select additional listings for more information
Way to Go!
An agent will be in contact soon!
