135 Dockside Road (Cali)
Under Construction
Freeport, FL 32439
Home by D.R. Horton
Last updated 24 hours ago
The Price Range displayed reflects the base price of the homes built in this community.
You get to select from the many different types of homes built by this Builder and personalize your New Home with options and upgrades.
4 BR
2 BA
2 GR
1,799 SQ FT
Claim this listing to update information, get access to exclusive tools and more!

Floor Plan 1/1
Overview
1 Story
1799 Sq Ft
2 Bathrooms
2 Car Garage
4 Bedrooms
Single Family
135 Dockside Road (Cali) Home Info
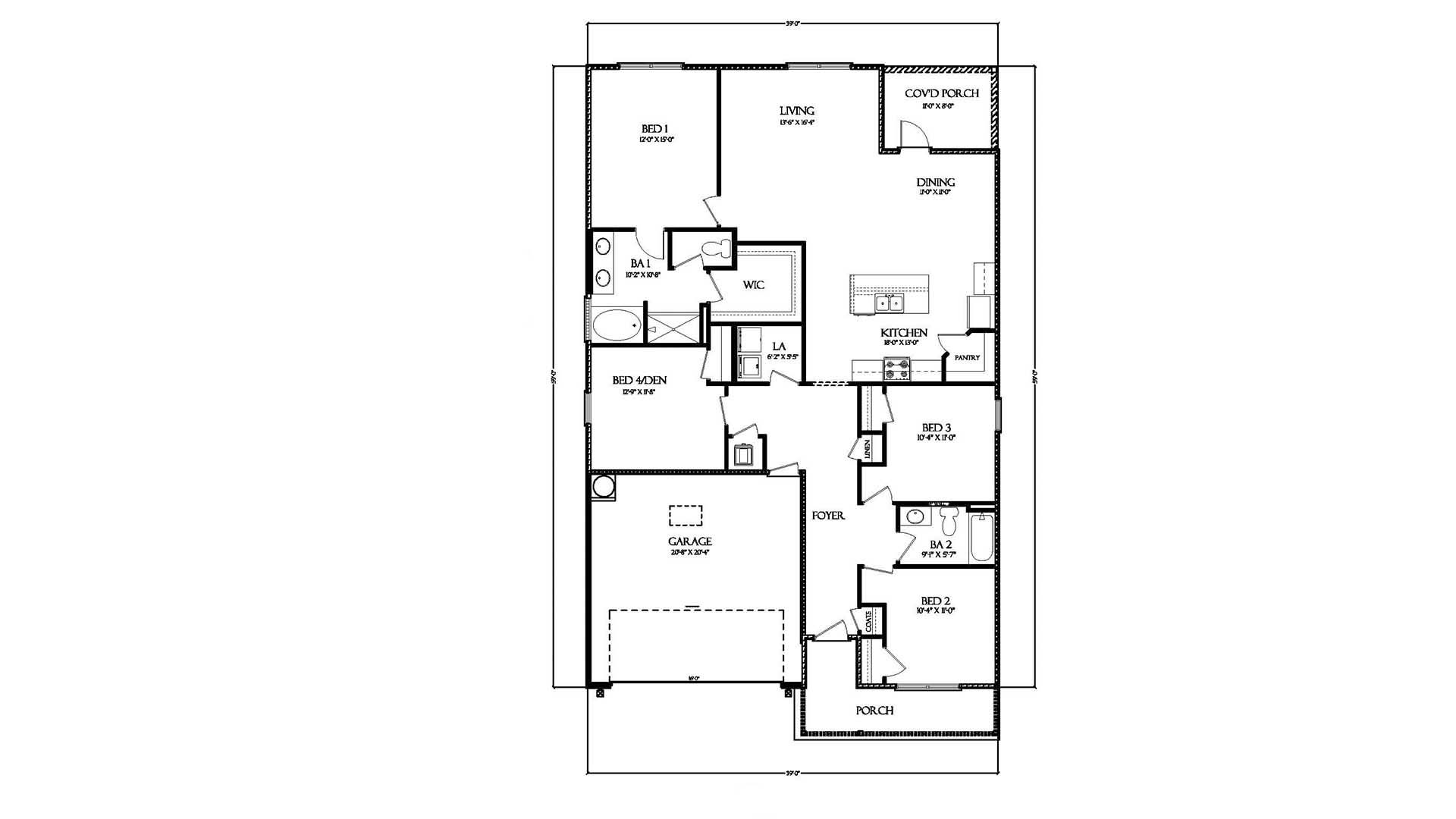
Welcome to 135 Dockside Road a new home at Magnolia at the Bluffs Phase III in Freeport, Florida. This home has 4-bedrooms and 2-bathrooms home and a two-car garage. As you approach this home you will find a sidewalk leading to the covered front porch with space for a sitting area. Entering this this home you will find a long hallway leading to the main living area that has EVP flooring. Two bedrooms are off the entry with a full bathroom in between. Across the hall is a fourth bedroom and large laundry room. The fourth bedroom is a perfect space for a den or even a home office. Each bedroom has plush carpet. Continuing down the hall, you will find yourself at an open kitchen with center island that has upper and lower cabinetry for storage. A large dining space and comfortable living area allow for comfortable living for family and guests. The primary bedroom is found at the back of the home and features a large bathroom with dual sink vanity, separate shower, large soak tub and a large closet. Interior finishes include granite countertops and beautiful white cabinetry as well as chrome plumbing fixtures. The kitchen has appliances including stove, microwave and dishwasher. A Smart Home Technology package finishes out this home with a Qolsys IQ Touch panel, a DEAK0 Smart Switch, smart thermostat and KwikSet Keyless entry. Outside you will find a landscaped front entry with flower beds along the sidewalk as well as vinyl siding and dimension 30-year shingles.
Floor plan center
View floor plan details for this property.
- Floor Plans
- Exterior Images
- Interior Images
- Other Media
Neighborhood
Community location & sales center
51 Dockside Road
Freeport, FL 32439
51 Dockside Road
Freeport, FL 32439
888-790-3488
Schools near The Bluffs at Magnolia Phase III
- Walton
Actual schools may vary. Contact the builder for more information.
Amenities
Home details
Now building
This home is currently under construction at 135 Dockside Road and will soon be available for move-in at The Bluffs at Magnolia Phase III. Contact D.R. Horton today to lock in your options!
Builder details
D.R. Horton
In 1978, D.R. Horton broke ground on our first home in Fort Worth, Texas. Since that day, the company has defined its success not by bricks and mortar, but by the satisfaction of the families that make our houses their homes. Our foundation is a single, guiding principle: a value-first dedication to the individual needs of each and every one of our nation’s homebuyers.
From first-time homebuyers to empty nesters, our family of brands provides a home for every stage in life. Our highly-trained, market experts are where you want to live, from New Jersey to Hawaii, providing unique, personalized services tailored to your individual needs. But the real value comes from the quality construction we put into every home, and the peace of mind that comes with a premium-backed warranty from America’s Number One Homebuilder.
We’ve come a long way, and while more people choose our family of brands over any other builder in the country, we never forget the most important thing of all – the families that choose us for their place to call home.
So continue to live out those dreams, America, and know we’ll be here for you every step of the way.
More new homes in Freeport, Florida
135 Dockside Road (Cali) by D.R. Horton
saved to favorites!
To see all the homes you’ve saved, visit the My Favorites section of your account.
Discover More Great Communities
Select additional listings for more information
Way to Go!
An agent will be in contact soon!
