Camden Plan
Ready to build
3537 Golden Wheat Ln, Plant City FL 33565
Home by D.R. Horton
Last updated 23 hours ago
The Price Range displayed reflects the base price of the homes built in this community.
You get to select from the many different types of homes built by this Builder and personalize your New Home with options and upgrades.
4 BR
3.5 BA
3 GR
2,794 SQ FT
Claim this listing to update information, get access to exclusive tools and more!

Floorplan 0 1/1
Overview
1 Half Bathroom
1 Story
2794 Sq Ft
3 Bathrooms
3 Car Garage
4 Bedrooms
Single Family
Camden Plan Info
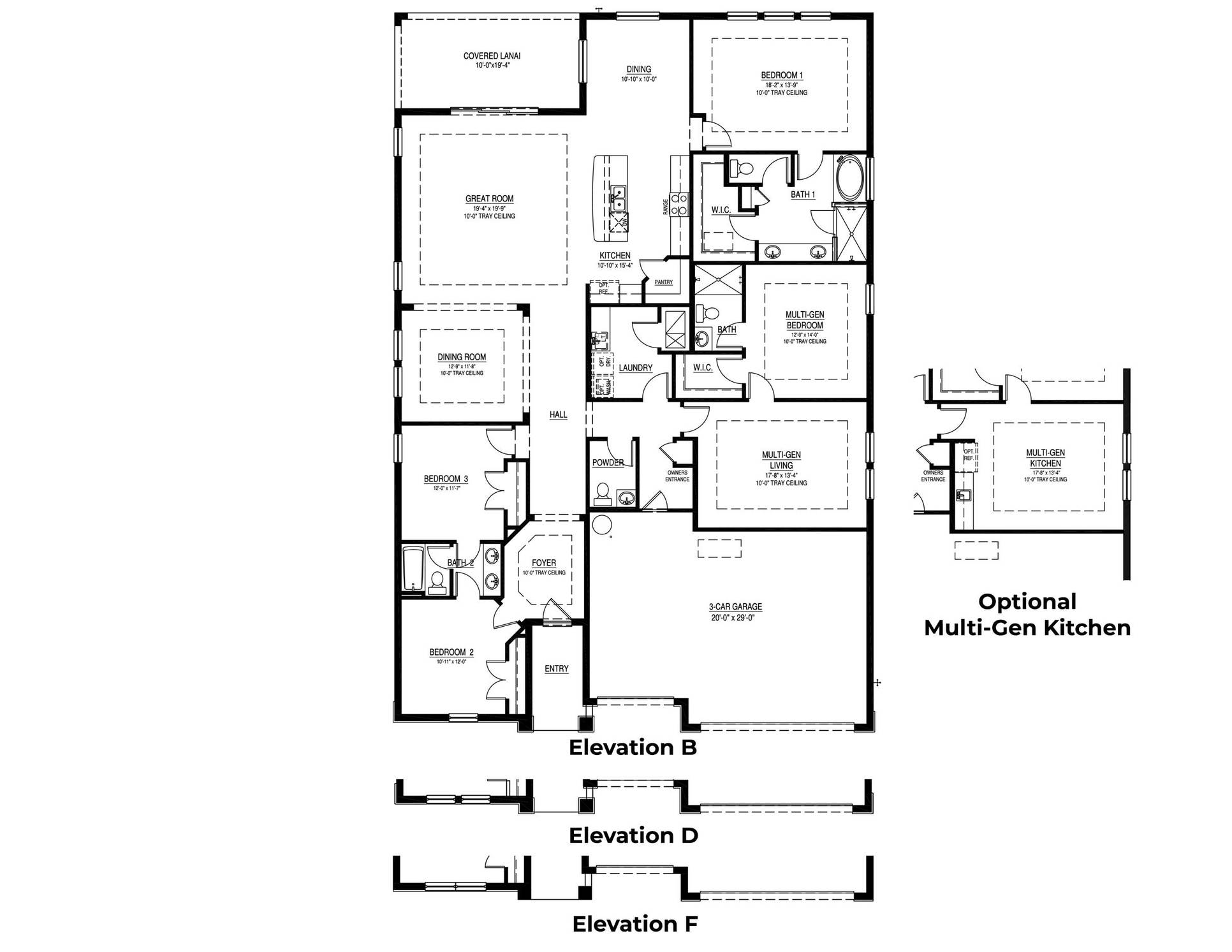
This one-story, all concrete block constructed home features a large great room with a formal dining room and a well-appointed kitchen with a dinette, all of which overlook a spacious covered lanai that is perfect for extending entertaining space outdoors. This single-story plan features two bedrooms that share a jack-and-jill full bathroom and which are located at the front of the home. The multi-gen living space is located beyond the powder bath and laundry room. Bedroom 1 with an ensuite bath is located on the back of the home for privacy, offering beautiful views of the backyard. This home includes a stainless-steel range, microwave, and dishwasher. Pictures, photographs, colors, features, and sizes are for illustration purposes only and will vary from the homes as built. Home and community information including pricing, included features, terms, availability and amenities are subject to change and prior sale at any time without notice or obligation. CBC039052.
Floor plan center
View floor plan details for this property.
- Floor Plans
- Exterior Images
- Interior Images
- Other Media
Neighborhood
Community location & sales center
3537 Golden Wheat Ln
Plant City, FL 33565
3537 Golden Wheat Ln
Plant City, FL 33565
888-355-8096
Schools near Farm at Varrea
- Hillsborough County School District
Actual schools may vary. Contact the builder for more information.
Amenities
Home details
Ready to build
Build the home of your dreams with the Camden plan by selecting your favorite options. For the best selection, pick your lot in Farm at Varrea today!
Builder details
D.R. Horton
In 1978, D.R. Horton broke ground on our first home in Fort Worth, Texas. Since that day, the company has defined its success not by bricks and mortar, but by the satisfaction of the families that make our houses their homes. Our foundation is a single, guiding principle: a value-first dedication to the individual needs of each and every one of our nation’s homebuyers.
From first-time homebuyers to empty nesters, our family of brands provides a home for every stage in life. Our highly-trained, market experts are where you want to live, from New Jersey to Hawaii, providing unique, personalized services tailored to your individual needs. But the real value comes from the quality construction we put into every home, and the peace of mind that comes with a premium-backed warranty from America’s Number One Homebuilder.
We’ve come a long way, and while more people choose our family of brands over any other builder in the country, we never forget the most important thing of all – the families that choose us for their place to call home.
So continue to live out those dreams, America, and know we’ll be here for you every step of the way.
More new homes in Plant City, Florida
Camden Plan by D.R. Horton
saved to favorites!
To see all the homes you’ve saved, visit the My Favorites section of your account.
Discover More Great Communities
Select additional listings for more information
Way to Go!
An agent will be in contact soon!
