Carlsbad Plan
Ready to build
1259 Coco Drive, Carson City NV 89705
Home by D.R. Horton
at Artemis
Last updated 1 day ago
The Price Range displayed reflects the base price of the homes built in this community.
You get to select from the many different types of homes built by this Builder and personalize your New Home with options and upgrades.
3 BR
2 BA
2 GR
1,608 SQ FT
Claim this listing to update information, get access to exclusive tools and more!

Floorplan 0 1/2
Overview
1 Story
1608 Sq Ft
2 Bathrooms
2 Car Garage
3 Bedrooms
Single Family
Carlsbad Plan Info
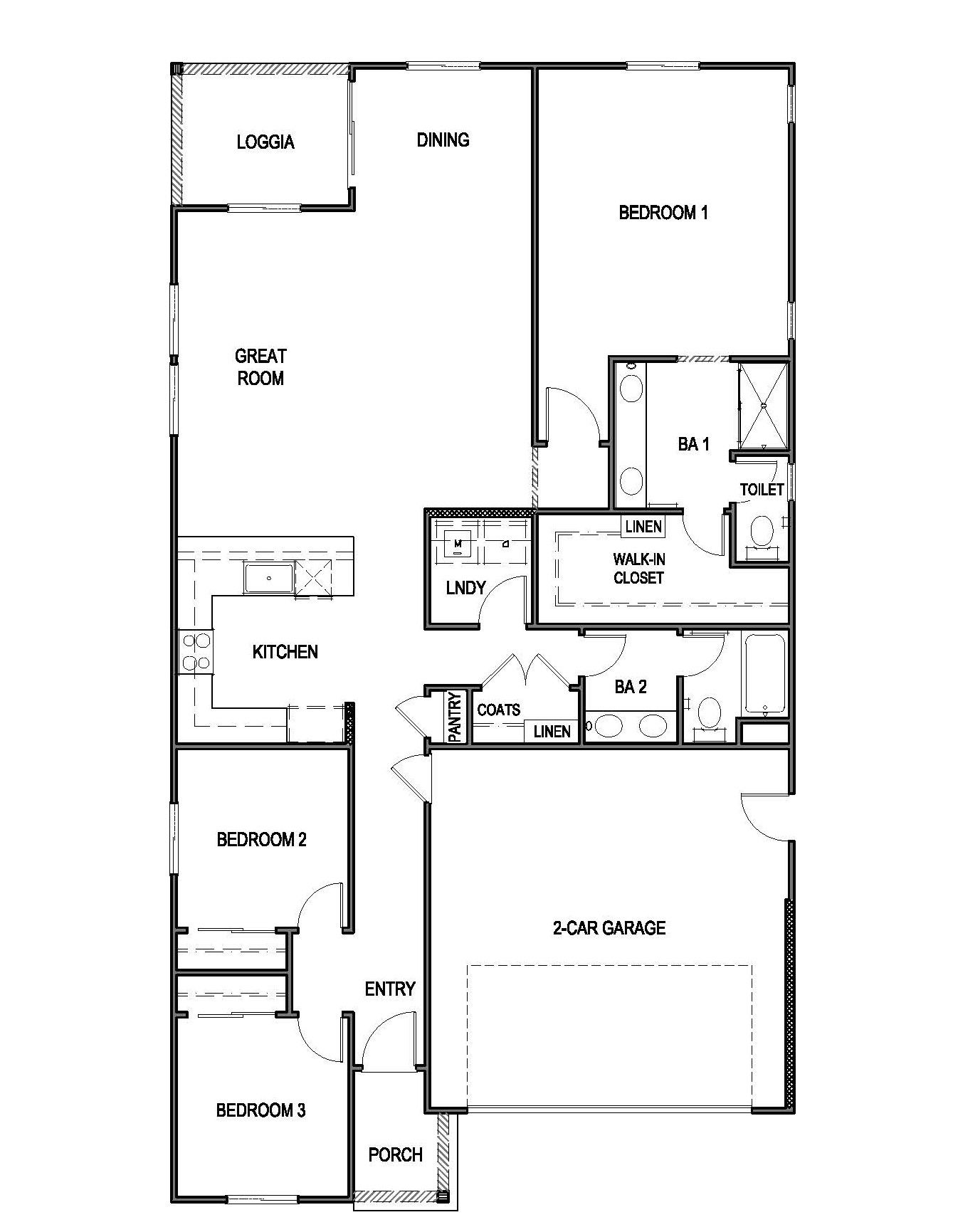
The Carlsbad floorplan is a thoughtfully-designed single-story that features 3 bedrooms, 2 bathrooms, and a 2-car garage, making the most of its 1,608 sq.ft. Exterior elevation designs include Modern Agrarian, Contemporary, and West Coast. The living space is open-concept, with the kitchen leading into the great room and dining area. The kitchen features a large pantry and kitchen island with built-in sink. The primary bedroom is made for your comfort. The attached primary bathroom has a large walk-in closet, double vanity, and a separate water closet for privacy. You'll never be too far from home with our smart home technology integration. Find security and control through the Qolsys panel, your phone, or voice and when you want to add additional smart home tech. Contact us to find your Carlsbad at Artemis today!
Floor plan center
View floor plan details for this property.
- Floor Plans
- Exterior Images
- Interior Images
- Other Media
Neighborhood
Community location & sales center
1259 Coco Drive
Carson City, NV 89705
1259 Coco Drive
Carson City, NV 89705
888-355-8096
Schools near Artemis
- Douglas County School District
Actual schools may vary. Contact the builder for more information.
Amenities
Home details
Ready to build
Build the home of your dreams with the Carlsbad plan by selecting your favorite options. For the best selection, pick your lot in Artemis today!
Builder details
D.R. Horton
In 1978, D.R. Horton broke ground on our first home in Fort Worth, Texas. Since that day, the company has defined its success not by bricks and mortar, but by the satisfaction of the families that make our houses their homes. Our foundation is a single, guiding principle: a value-first dedication to the individual needs of each and every one of our nation’s homebuyers.
From first-time homebuyers to empty nesters, our family of brands provides a home for every stage in life. Our highly-trained, market experts are where you want to live, from New Jersey to Hawaii, providing unique, personalized services tailored to your individual needs. But the real value comes from the quality construction we put into every home, and the peace of mind that comes with a premium-backed warranty from America’s Number One Homebuilder.
We’ve come a long way, and while more people choose our family of brands over any other builder in the country, we never forget the most important thing of all – the families that choose us for their place to call home.
So continue to live out those dreams, America, and know we’ll be here for you every step of the way.
More new homes in Carson City, Nevada
Carlsbad Plan by D.R. Horton
saved to favorites!
To see all the homes you’ve saved, visit the My Favorites section of your account.
Discover More Great Communities
Select additional listings for more information
Way to Go!
An agent will be in contact soon!
