Chatham Plan
Ready to build
1797 Jacko Lane, Circleville OH 43113
Home by D.R. Horton
at River Ridge
Last updated 1 day ago
The Price Range displayed reflects the base price of the homes built in this community.
You get to select from the many different types of homes built by this Builder and personalize your New Home with options and upgrades.
4 BR
2 BA
2 GR
1,771 SQ FT
Claim this listing to update information, get access to exclusive tools and more!

Floorplan 0 1/1
Overview
1 Story
Single Family
Chatham Plan Info
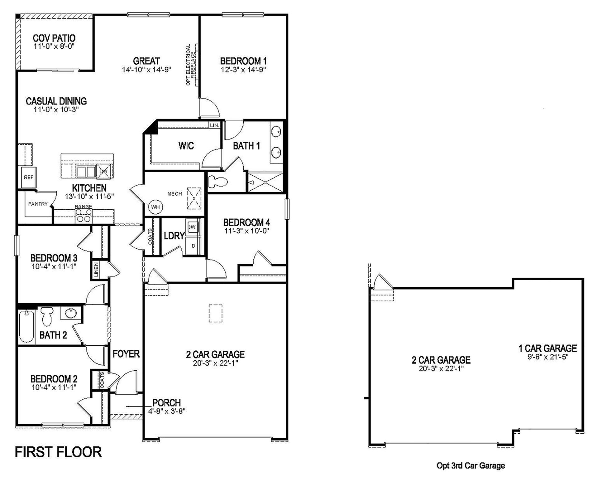
Welcome to the Chatham floor plan, a beautifully designed single-story home that offers an efficient and spacious layout perfect for modern living. This new construction home features four bedrooms and two full bathrooms within 1,771 square feet, making it an ideal choice for growing families or those seeking a comfortable, move-in ready residence. The Chatham features an open-concept design that seamlessly integrates the spacious kitchen, dining area, and great room, creating a bright and inviting space perfect for hosting guests or enjoying family time. The well-appointed kitchen welcomes a large built-in island with breakfast bar seating, a convenient walk-in corner pantry, and ample cabinet and counter space, providing both style and functionality. The primary bedroom serves as a private retreat with an en-suite bathroom that includes a spacious walk-in shower, double bowl vanity, private water closet, and a generously sized walk-in closet. Additional highlights include a covered rear patio ideal for morning coffee or relaxing evenings, a two-car garage for additional storage, and a dedicated laundry room that enhances utility and organization. Take advantage of added security in your new D.R. Horton home with our Home is Connected features. Using one central hub that talks to all the devices in your home, you can control the lights, thermostat, and locks, all from your cellular device. Convenience lies at your fingertips.
Floor plan center
View floor plan details for this property.
- Floor Plans
- Exterior Images
- Interior Images
- Other Media
Neighborhood
Community location & sales center
1797 Jacko Lane
Circleville, OH 43113
1797 Jacko Lane
Circleville, OH 43113
888-790-3488
Schools near River Ridge
- Circleville City Schools
- Circleville Middle School
- Circleville High School
Actual schools may vary. Contact the builder for more information.
Amenities
Home details
Ready to build
Build the home of your dreams with the Chatham plan by selecting your favorite options. For the best selection, pick your lot in River Ridge today!
Nearby schools
Circleville City Schools
Circleville Middle School
Middle school. Grades 6 to 8
Public school
Enrollment: 512
740-474-2345
360 Clark Dr, Circleville, OH, 43113
Circleville High School
High school. Grades 9 to 12
Public school
Class ratio: 1: 23
Enrollment: 615
740-474-4846
380 Clark Dr, Circleville, OH, 43113
Actual schools may vary. We recommend verifying with the local school district, the school assignment and enrollment process.
Neighborhood amenities
Kroger
2.78 miles away
175 Lancaster Pike
ALDI
3.27 miles away
23455 US Highway 23 S
Walmart Supercenter
3.70 miles away
1470 S Court St
Just Save
4.56 miles away
24799 US Highway 23 S
Ashville IGA
5.77 miles away
300 Long St
Daily Bread LLC
1.54 miles away
912 Lincoln Dr
Cupcakes By Val LLC
1.89 miles away
428 Holiday Ln
Lindsey's Bakery
2.34 miles away
127 W Main St
Health Food Cupboard
2.54 miles away
214 1/2
Walmart Bakery
3.70 miles away
1470 S Court St
Bamboo House Restaurant
1.05 miles away
1234 N Court St
Pizza Hut
1.05 miles away
1240 N Court St
Wing Street
1.05 miles away
1240 N Court St
Subway
1.09 miles away
1211 N Court St
Buck Spot Inc
1.34 miles away
505 Northfield Dr
Scioto Valley Coffee
2.26 miles away
216 W Main St
Joy House Coffee
2.35 miles away
202 N Pickaway St
Starbucks
2.78 miles away
175 Lancaster Pike
Tim Hortons
3.67 miles away
23923 US Highway 23 S
Starbucks
3.90 miles away
1641 S Court St
We the People Clothing Co
2.34 miles away
119 W Main St
Uniquely Yours
2.36 miles away
103 W Main St
Shoe Sensation
2.54 miles away
23573 US South 23
maurices
3.63 miles away
1468 Circleville Plaza Dr
Walmart Supercenter
3.70 miles away
1470 S Court St
Woody's Place
0.90 mile away
2575 N Court St
Main Street Pub
2.30 miles away
207 W Main St
Gibby's
2.31 miles away
126 W Main St
Wyatt Street Tavern
2.31 miles away
115 Watt St
Gant's Pizza and Pub
2.39 miles away
114 S Court St
Please note this information may vary. If you come across anything inaccurate, please contact us.
Builder details
D.R. Horton
In 1978, D.R. Horton broke ground on our first home in Fort Worth, Texas. Since that day, the company has defined its success not by bricks and mortar, but by the satisfaction of the families that make our houses their homes. Our foundation is a single, guiding principle: a value-first dedication to the individual needs of each and every one of our nation’s homebuyers.
From first-time homebuyers to empty nesters, our family of brands provides a home for every stage in life. Our highly-trained, market experts are where you want to live, from New Jersey to Hawaii, providing unique, personalized services tailored to your individual needs. But the real value comes from the quality construction we put into every home, and the peace of mind that comes with a premium-backed warranty from America’s Number One Homebuilder.
We’ve come a long way, and while more people choose our family of brands over any other builder in the country, we never forget the most important thing of all – the families that choose us for their place to call home.
So continue to live out those dreams, America, and know we’ll be here for you every step of the way.
More new homes in Circleville, Ohio
Chatham Plan by D.R. Horton
saved to favorites!
To see all the homes you’ve saved, visit the My Favorites section of your account.
Discover More Great Communities
Select additional listings for more information
Way to Go!
An agent will be in contact soon!
