Chatham Plan
Ready to build
102 Cedarhurst Court, Pickerington OH 43147
Home by D.R. Horton
Last updated 1 day ago
The Price Range displayed reflects the base price of the homes built in this community.
You get to select from the many different types of homes built by this Builder and personalize your New Home with options and upgrades.
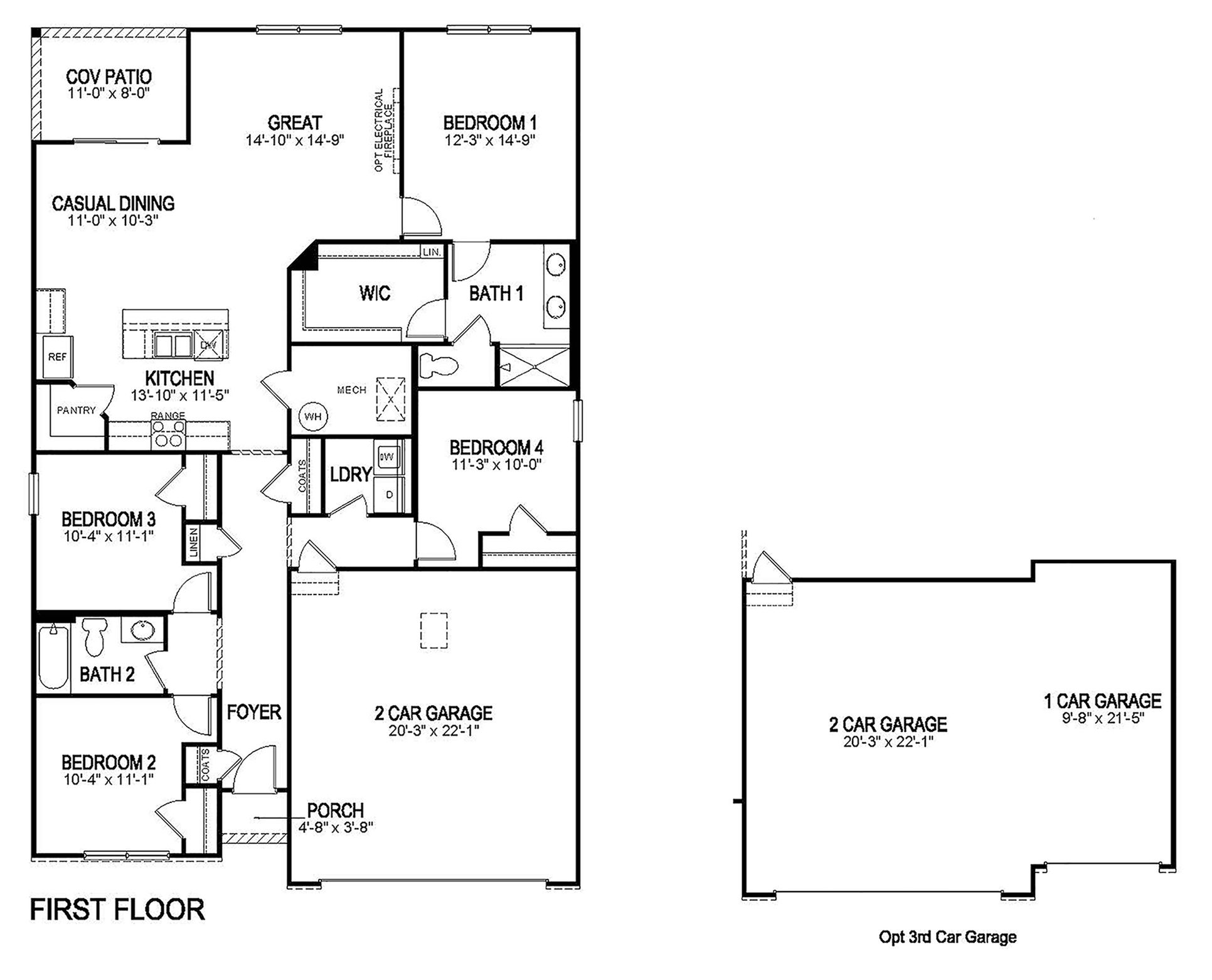
4 BR
2 BA
2 GR
1,771 SQ FT
Claim this listing to update information, get access to exclusive tools and more!

Floorplan 0 1/1
Overview
1 Story
Single Family
Chatham Plan Info
Take a look at our Chatham floor plan. This single story home provides an efficient, four bedroom, two bath design in 1,771 square feet. One of the unique features is the seamless integration of the kitchen, casual dining area, and great room in an open-concept design perfect for entertaining. The well-appointed kitchen has a convenient, walk-in corner pantry, a large built-in island and provides ample cabinet and counter space. Enjoy early morning coffee or quiet evenings under the rear covered patio. The primary bedroom features an ensuite bathroom with a large shower, double bowl vanity, private water closet, and spacious walk-in closet. The two car garage and laundry room provide a brilliant combination of utility and storage. Take advantage of added security in your new D.R. Horton home with our Home is Connected features. Using one central hub that talks to all the devices in your home, you can control the lights, thermostat, and locks, all from your cellular device. Convenience lies at your fingertips.
Floor plan center
View floor plan details for this property.
- Floor Plans
- Exterior Images
- Interior Images
- Other Media
Neighborhood
Community location & sales center
102 Cedarhurst Court
Pickerington, OH 43147
102 Cedarhurst Court
Pickerington, OH 43147
888-790-3488
Schools near Longview Highlands
- Pickerington Local Schools
- Pickerington Elementary School
- Diley Middle School
- Ridgeview Stem Junior High School
- Pickerington High School Central
Actual schools may vary. Contact the builder for more information.
Amenities
Home details
Ready to build
Build the home of your dreams with the Chatham plan by selecting your favorite options. For the best selection, pick your lot in Longview Highlands today!
Nearby schools
Pickerington Local Schools
Pickerington Elementary School
Elementary school. Grades PK to 4.
Public school
Teacher - student ratio: 1:28
Students enrolled: 527
614-548-1400
775 Long Rd, Pickerington, OH, 43147
Diley Middle School
Elementary-Middle school. Grades 5 to 6.
Public school
Teacher - student ratio: 1:24
Students enrolled: 583
614-830-2900
750 Preston Trails Dr, Pickerington, OH, 43147
Ridgeview Stem Junior High School
Middle school. Grades 7 to 8.
Public school
Teacher - student ratio: 1:19
Students enrolled: 846
614-548-1700
130 Hill Rd S, Pickerington, OH, 43147
Pickerington High School Central
High school. Grades 9 to 12.
Public school
Teacher - student ratio: 1:20
Students enrolled: 1808
614-548-1800
300 Opportunity Way, Pickerington, OH, 43147
Actual schools may vary. We recommend verifying with the local school district, the school assignment and enrollment process.
Neighborhood amenities
Kroger
0.93 mile away
1045 Hill Rd N
G N International Market
0.94 mile away
859 Windmiller Dr
Giant Eagle
1.12 miles away
873 Refugee Rd
ALDI
1.68 miles away
1400 Hill Rd N
Kamana Grocery
2.04 miles away
6840 Refugee Rd
GNC
1.19 miles away
1203 Hill Rd N
Baker Houz on 8 Inc
1.73 miles away
350 Payne Ave
Cakes Creatively By Crystal LLC
1.84 miles away
201 Clint Dr
Kroger Bakery
2.12 miles away
3588 Gender Rd
Omg Sweets
2.23 miles away
8561 Refugee Rd
Carry the F1R3
0.55 mile away
927 Washington St
Rule 3
0.78 mile away
650 Windmiller Dr
Pizzeria New York
0.94 mile away
833 Hill Rd N
Jhapali Kitchen & Bar
0.94 mile away
859 Windmiller Dr
Old Bag of Nails
0.95 mile away
797 Hill Rd N
Starbucks
0.93 mile away
1045 Hill Rd N
Tim Hortons
1.05 miles away
1085 Hill Rd N
Fresh Donut
1.25 miles away
1130 Hill Rd N
Vitality Bowls
1.45 miles away
1510 Stonecreek Dr S
Porters Coffee House and Bakery
1.62 miles away
194 W Church St
Cato Fashions
0.97 mile away
1061 Hill Rd N
Kohl's
1.54 miles away
175 Postage Cir
The Footworks Store
1.60 miles away
1302 Hill Rd N
Team Xpress LLC
2.12 miles away
10076 Oxford Dr
Rule 3
0.78 mile away
650 Windmiller Dr
Finnegan's Wake
0.95 mile away
841 Hill Rd N
Old Bag of Nails
0.95 mile away
797 Hill Rd N
Happy Endings Pub
1.25 miles away
1128 Hill Rd N
Squeeks
1.25 miles away
1160 Hill Rd N
Please note this information may vary. If you come across anything inaccurate, please contact us.
Builder details
D.R. Horton
In 1978, D.R. Horton broke ground on our first home in Fort Worth, Texas. Since that day, the company has defined its success not by bricks and mortar, but by the satisfaction of the families that make our houses their homes. Our foundation is a single, guiding principle: a value-first dedication to the individual needs of each and every one of our nation’s homebuyers.
From first-time homebuyers to empty nesters, our family of brands provides a home for every stage in life. Our highly-trained, market experts are where you want to live, from New Jersey to Hawaii, providing unique, personalized services tailored to your individual needs. But the real value comes from the quality construction we put into every home, and the peace of mind that comes with a premium-backed warranty from America’s Number One Homebuilder.
We’ve come a long way, and while more people choose our family of brands over any other builder in the country, we never forget the most important thing of all – the families that choose us for their place to call home.
So continue to live out those dreams, America, and know we’ll be here for you every step of the way.
More new homes in Pickerington, Ohio
Chatham Plan by D.R. Horton
saved to favorites!
To see all the homes you’ve saved, visit the My Favorites section of your account.
Discover More Great Communities
Select additional listings for more information
Way to Go!
An agent will be in contact soon!
