Clifton II Plan
Ready to build
136 Cirsium Way GPS use 432 LG Griffin Rd, Locust Grove GA 30248
Home by D.R. Horton
Last updated 1 day ago
The Price Range displayed reflects the base price of the homes built in this community.
You get to select from the many different types of homes built by this Builder and personalize your New Home with options and upgrades.
2 BR
2 BA
2 GR
2,218 SQ FT
Claim this listing to update information, get access to exclusive tools and more!

Elevation 2 1/2
Overview
2 Bathrooms
2 Bedrooms
2 Car Garage
2 Stories
2218 Sq Ft
Single Family
Clifton II Plan Info
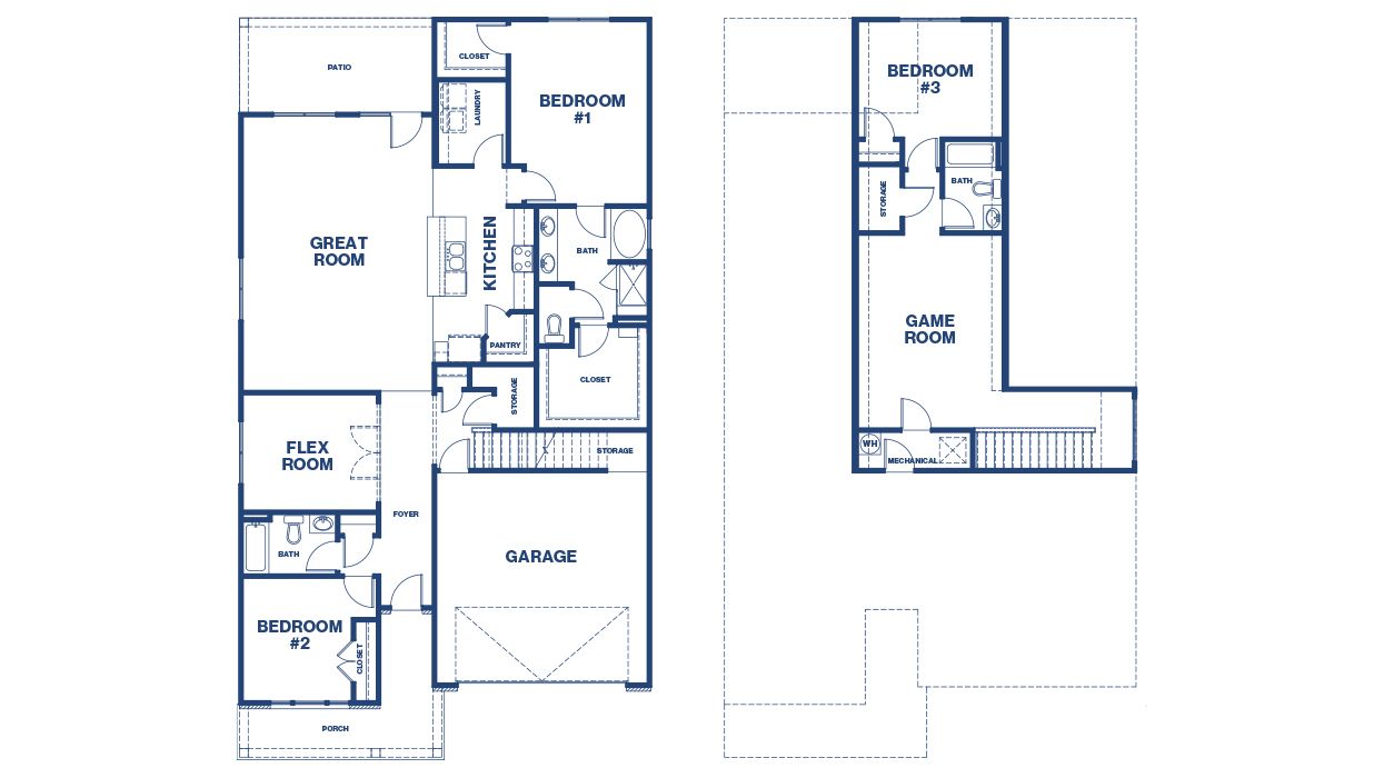
The Clifton II floorplan at Oak Ridge Meadows is a 3 bedroom, 2 bath single level home covering 2,218 sq. ft. This plan includes a bonus space on the second level with a rec room plus an optional bedroom with full bath. The 2-car garage ensures plenty of space for vehicles and storage. As you walk inside, there is a spacious bedroom and a full bathroom located at the front of the home for privacy. Additionally, there is a flex room that is ideal for a dedicated home office, art studio or craft room. The end of the foyer opens to an expansive family room, then out to a large covered patio, perfect for enjoying the great outdoors throughout the seasons. An island kitchen offers room for bar top seating and features modern cabinetry, stainless-steel appliances and quartz countertops. On the rear of the home you'll find the primary bedroom with en suite bath including a low entry shower and dual vanities, plus an oversized closet for plenty of storage. And if extra space is what you need for family and guests, this design also offers a bonus area upstairs that includes a spacious rec room, as well as the option for a generous bedroom and a full bath plus additional storage. Our homes are not only well designed, they're also smart, as each comes standard with our industry-leading suite of smart home technology that allows you to monitor your home. Photos used for illustrative purposes and do not depict actual home.
Floor plan center
View floor plan details for this property.
- Floor Plans
- Exterior Images
- Interior Images
- Other Media
Neighborhood
Community location & sales center
136 Cirsium Way GPS use 432 LG Griffin Rd
Locust Grove, GA 30248
136 Cirsium Way GPS use 432 LG Griffin Rd
Locust Grove, GA 30248
888-355-8096
Schools near Oak Ridge Meadows
- Henry County Schools
Actual schools may vary. Contact the builder for more information.
Amenities
Home details
Ready to build
Build the home of your dreams with the Clifton II plan by selecting your favorite options. For the best selection, pick your lot in Oak Ridge Meadows today!
Neighborhood amenities
Ingles Market
2.21 miles away
4920 Bill Gardner Pkwy
Walmart Supercenter
2.56 miles away
4949 Bill Gardner Pkwy
Publix
4.95 miles away
2730 Highway 155
Publix
7.30 miles away
3479 Highway 81 E
Ingles Market
7.64 miles away
1305 W 3rd St
Black Rose Cafe & Bar
1.85 miles away
3836 Highway 42
Crumbles
1.92 miles away
3988 Georgia 42
Cake GN Shake
1.97 miles away
1000 Tanger Dr
Papa Johns
0.99 mile away
2800 Tanger Blvd
K & J Wings & More
1.54 miles away
4120 Highway 42
Slices Pizzeria-Locust Grove
1.80 miles away
3844 Highway 42
The French Market
1.82 miles away
3840 Highway 42
Peach Pit Bar & Grill
1.84 miles away
3837 Highway 42
Maui Wowi Hawaiian
1.97 miles away
1000 Tanger Dr
Starbucks
2.21 miles away
4920 Bill Gardner Pkwy
Dunkin'
2.36 miles away
4841 Bill Gardner Pkwy
Starbucks
2.37 miles away
4837 Bill Gardner Pkwy
Planet Smoothie
2.47 miles away
4955 Bill Gardner Pkwy
Brighton Collectibles
1.59 miles away
67 Higgins Rd
Gap Factory
1.92 miles away
1000 Tanger Drive
Jockey Factory Outlet
1.92 miles away
1000 Stanley K Tanger Blvd
Aerie Outlet
1.97 miles away
1000 Tanger Dr
Aeropostale
1.97 miles away
1000 Tanger Dr
The French Market
1.82 miles away
3840 Highway 42
Tailgater's Sports Bar & Grill
6.79 miles away
1160 Highway 155 S
Goat Sports Lounge
7.19 miles away
402 Highway 155 S
Fusion Restaurant & Bar
7.28 miles away
380 Highway 155 S
Castillo Mexican Bar
7.42 miles away
14 Old Jackson Rd
Please note this information may vary. If you come across anything inaccurate, please contact us.
Builder details
D.R. Horton
In 1978, D.R. Horton broke ground on our first home in Fort Worth, Texas. Since that day, the company has defined its success not by bricks and mortar, but by the satisfaction of the families that make our houses their homes. Our foundation is a single, guiding principle: a value-first dedication to the individual needs of each and every one of our nation’s homebuyers.
From first-time homebuyers to empty nesters, our family of brands provides a home for every stage in life. Our highly-trained, market experts are where you want to live, from New Jersey to Hawaii, providing unique, personalized services tailored to your individual needs. But the real value comes from the quality construction we put into every home, and the peace of mind that comes with a premium-backed warranty from America’s Number One Homebuilder.
We’ve come a long way, and while more people choose our family of brands over any other builder in the country, we never forget the most important thing of all – the families that choose us for their place to call home.
So continue to live out those dreams, America, and know we’ll be here for you every step of the way.
More new homes in Locust Grove, Georgia
Clifton II Plan by D.R. Horton
saved to favorites!
To see all the homes you’ve saved, visit the My Favorites section of your account.
Discover More Great Communities
Select additional listings for more information
Way to Go!
An agent will be in contact soon!
