Copaiba Plan
Ready to build
By Appointment Only 8124 Danny Scarth Ln, Fort Worth TX 76120
Home by D.R. Horton
Last updated 2 days ago
The Price Range displayed reflects the base price of the homes built in this community.
You get to select from the many different types of homes built by this Builder and personalize your New Home with options and upgrades.
4 BR
3 BA
2 GR
2,239 SQ FT
Claim this listing to update information, get access to exclusive tools and more!

Floorplan 0 1/1
Overview
2 Stories
Single Family
Copaiba Plan Info
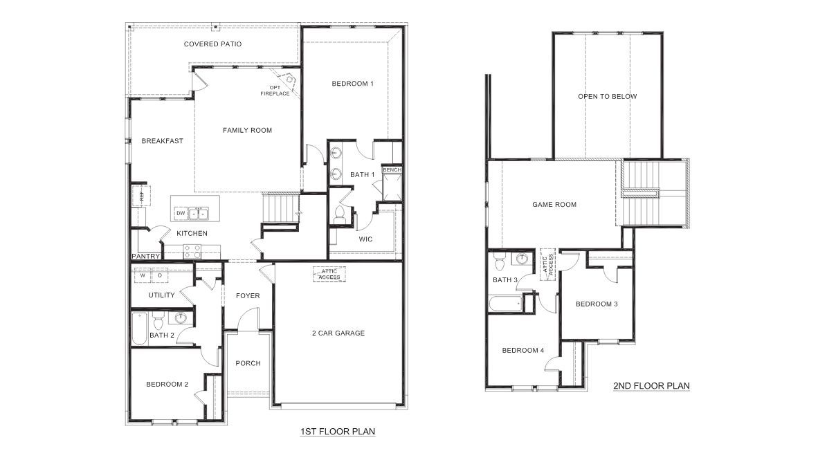
Find yourself at home in the Copaiba in our new phase of Augusta Square, located in Fort Worth Texas. When you step inside the Copaiba you're greeted by an open and inviting foyer, where natural light streams through the windows, setting a welcoming tone. To the left, a cozy secondary bedroom sits tucked away-perfect for guests or a quiet home office. Nearby, a full bathroom offers both convenience and privacy. Continuing into the home, the heart of the living space unfolds. The kitchen immediately catches the eye with its modern layout, complete with sleek countertops, a spacious island, and a walk-in pantry ready to store all your essentials. A large breakfast / dining area perfect for hosting brunch, allowing the aroma of freshly brewed coffee to flow seamlessly into the family room. The family room feels expansive and airy, perfect for cozy movie nights or entertaining friends. Just beyond, the covered patio is a peaceful retreat to unwind as the sun sets over the neighborhood. The primary suite, nestled on the main floor, offers a quiet sanctuary. With its walk-in closet and a spa-like ensuite bathroom featuring a double vanity and walk-in shower, perfect to unwinding after a long day. Heading upstairs, discover an open game room that feels full of possibilities-a space for the kids to play, a home gym, or even a second living area. Two additional bedrooms and a full bathroom complete the second floor, offering plenty of room for family or guests. Every corner of th
Floor plan center
View floor plan details for this property.
- Floor Plans
- Exterior Images
- Interior Images
- Other Media
Neighborhood
Community location & sales center
By Appointment Only 8124 Danny Scarth Ln
Fort Worth, TX 76120
By Appointment Only 8124 Danny Scarth Ln
Fort Worth, TX 76120
888-790-3488
Schools near Augusta Square
- Fort Worth Independent School District
- Bill J. Elliott Elementary School
- Jean Mcclung Middle School
- Eastern Hills High School
Actual schools may vary. Contact the builder for more information.
Amenities
Home details
Ready to build
Build the home of your dreams with the Copaiba plan by selecting your favorite options. For the best selection, pick your lot in Augusta Square today!
Nearby schools
Fort Worth Independent School District
Bill J. Elliott Elementary School
Elementary school. Grades PK to 5
Public school
Class ratio: 1: 15
Enrollment: 398
817-815-4600
2501 Cooks Ln, Fort Worth, TX, 76120
Jean Mcclung Middle School
Middle school. Grades 6 to 8
Public school
Class ratio: 1: 14
Enrollment: 708
817-815-5300
3000 Forest Ave, Fort Worth, TX, 76112
Eastern Hills High School
High school. Grades 9 to 12
Public school
Class ratio: 1: 16
Enrollment: 1194
817-815-4000
5701 Shelton St, Fort Worth, TX, 76112
Actual schools may vary. We recommend verifying with the local school district, the school assignment and enrollment process.
Neighborhood amenities
ALDI
0.40 mile away
1620 Eastchase Pkwy
OK Food Mart
0.68 mile away
8650 Meadowbrook Dr
Sam's Club
0.76 mile away
8351 Anderson Blvd
Walmart Supercenter
0.84 mile away
8401 Anderson Blvd
303 Mart
2.17 miles away
4801 W Pioneer Pkwy
Walmart Bakery
0.84 mile away
8401 Anderson Blvd
My Cake Joy
0.96 mile away
2701 Gardendale Dr
London Baker
1.31 miles away
7341 Yolanda Dr
B & B Donuts
1.36 miles away
7411 John T White Rd
Arby's
0.32 mile away
1772 Eastchase Pkwy
Popeyes
0.33 mile away
1760 Eastchase Pkwy
Gateway 62 Inc
0.34 mile away
6800 John T White Rd
SONIC Drive-in
0.34 mile away
6800 John T White Road
Pizza Hut
0.37 mile away
1801 Eastchase Pkwy
Eastchase Donuts
0.37 mile away
1801 Eastchase Pkwy
Starbucks
0.46 mile away
8550 East Fwy
Good Donuts
1.24 miles away
9051 Randol Mill Rd
Starbucks
2.41 miles away
850 E Loop 820
Grand Line Cafe Donuts
2.61 miles away
1110 S Bowen Rd
Target
0.34 mile away
8550 Tom Landry Fwy
Famous Footwear
0.46 mile away
8430 East Fwy
Marshalls
0.47 mile away
1454 Eastchase Pkwy
Ross Dress For Less
0.47 mile away
8560 East Fwy
Hibbett Sports
0.57 mile away
1450 Eastchase Pkwy
No Frills Grill & Sports Bar-Fort Worth
0.47 mile away
1550 Eastchase Pkwy
River Bottoms Pub
1.78 miles away
7920 Randol Mill Rd
Stumpy's
1.83 miles away
2811 W Division St
Pearl's Cherokee Lounge
1.96 miles away
2607 W Division St
Tanstaafl Pub
1.96 miles away
409 N Bowen Rd
Please note this information may vary. If you come across anything inaccurate, please contact us.
Builder details
D.R. Horton
In 1978, D.R. Horton broke ground on our first home in Fort Worth, Texas. Since that day, the company has defined its success not by bricks and mortar, but by the satisfaction of the families that make our houses their homes. Our foundation is a single, guiding principle: a value-first dedication to the individual needs of each and every one of our nation’s homebuyers.
From first-time homebuyers to empty nesters, our family of brands provides a home for every stage in life. Our highly-trained, market experts are where you want to live, from New Jersey to Hawaii, providing unique, personalized services tailored to your individual needs. But the real value comes from the quality construction we put into every home, and the peace of mind that comes with a premium-backed warranty from America’s Number One Homebuilder.
We’ve come a long way, and while more people choose our family of brands over any other builder in the country, we never forget the most important thing of all – the families that choose us for their place to call home.
So continue to live out those dreams, America, and know we’ll be here for you every step of the way.
More new homes in Fort Worth, Texas
Copaiba Plan by D.R. Horton
saved to favorites!
To see all the homes you’ve saved, visit the My Favorites section of your account.
Discover More Great Communities
Select additional listings for more information
Way to Go!
An agent will be in contact soon!
