Countryside II Plan
Ready to build
Kunkletown PA 18058
Home by Pocono Mountain Homes
at The Woods
The Price Range displayed reflects the base price of the homes built in this community.
You get to select from the many different types of homes built by this Builder and personalize your New Home with options and upgrades.
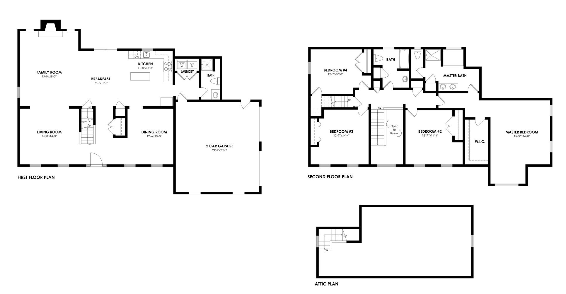
4 BR
3.5 BA
3,222 SQ FT
Claim this listing to update information, get access to exclusive tools and more!

Exterior 1/3
Overview
1 Half Bathroom
3 Bathrooms
3222 Sq Ft
4 Bedrooms
Single Family
Countryside II Plan Info
Taking the touch of traditional you love in the original countryside and ramping it up with even more living space and custom touches this 3222 sq. Ft. Home is ideal for large or extended families with the option to choose either four or five bedrooms. Beginning with a charming front porch that welcomes you inside this floorplan has been thoughtfully designed to maximize space for friends and family alike with both casual and formal living and dining areas. The second floor houses the family quarters for plenty of privacy and a large attic guarantees extra storage space. Lets get started on your dream home call today!.
Neighborhood
Community location & sales center
Kunkletown, PA 18058
Kunkletown, PA 18058
888-790-3488
Schools near The Woods
- Pleasant Valley School District
Actual schools may vary. Contact the builder for more information.
Amenities
The Woods, a wooded, full-acre lots community, is zoned to the Pleasant Valley school district. The schools in this district are top-rated schools with solid reputations. Homeowners in The Woods can easily find their way to and from town. It's only thirty minutes from Lehigh Valley and GW Bridge. Scattered around different strategic locations in The Woods are restaurants, entertainment centers, shopping venues, parks, and trails, amongst many others. Daily living in this unique community is like vacationing. More info about The Woods
Home details
Ready to build
Build the home of your dreams with the Countryside II plan by selecting your favorite options. For the best selection, pick your lot in The Woods today!
Community & neighborhood
Community services & perks
- Park
Neighborhood amenities
Kunkletown General Store
0.04 mile away
586 Kunkletown Rd
ShopRite of Brodheadsville
5.17 miles away
107 Kinsley Dr
Weis Markets
5.35 miles away
924 Weir Lake Rd
Lattemann Corner Store
5.39 miles away
2716 Community Dr
Miller's Market
5.75 miles away
1362 Blue Mountain Dr
Kiffle Kitchen Bakery
6.27 miles away
589 Moorestown Dr
Marylous Favorites Baked Goods
6.67 miles away
1920 Walnut Dr
Delightfully Irrational DSSRTS
8.82 miles away
3582 Penfield Way
Cozze Cakes
8.86 miles away
3523 Westminster Way
Mattie's Strudel Haus
8.90 miles away
126 W Main St
Kunkletown General Store
0.04 mile away
586 Kunkletown Rd
Dale's French Fries
0.59 mile away
192 Fiddletown Rd
Point Phillips Hotel
3.94 miles away
943 Point Phillips Rd
Covered Bridge Inn
4.04 miles away
4300 Little Gap Rd
American Lobster
4.41 miles away
1034 Interchange Rd
Dunkin'
5.35 miles away
118 Route 209
Perla Coffee Co & Eatery
5.58 miles away
1656 Route 209
Dunkin'
8.01 miles away
855 S Broadway
Dunkin'
8.63 miles away
555 Delaware Ave
248 Coffee Shack
8.67 miles away
4685 Lehigh Dr
Family Dollar
4.99 miles away
1421 Route 209
Label $hopper
4.99 miles away
1421 Route 209
Label $hopper
5.35 miles away
1421 Sr 209
Mike Male Repairs
6.30 miles away
512 Bauer Rd
Point Phillips Hotel
3.94 miles away
943 Point Phillips Rd
Mike's Pizzeria Italian Restaurant
4.99 miles away
1421 Route 209
Beltzville Bar & Grill LLC
6.34 miles away
7435 Pohopoco Dr
Sunset Bar & Grill
7.19 miles away
444 Route 115
Pennsville Tavern
7.44 miles away
3750 Lehigh Dr
Please note this information may vary. If you come across anything inaccurate, please contact us.
Builder details
Pocono Mountain Homes
More new homes in Kunkletown, Pennsylvania
Countryside II Plan by Pocono Mountain Homes
saved to favorites!
To see all the homes you’ve saved, visit the My Favorites section of your account.
Discover More Great Communities
Select additional listings for more information
Way to Go!
An agent will be in contact soon!